容纳多样场景和体验的“镜像花园”:由于各种历史原因,北京旧城区除了分布着四合院、大杂院之外,还混杂了一些单体建筑,这个项目就是对某处小型单体建筑进行的改造。原本平屋顶的房子被处理成坡屋顶建筑样式,缩小房屋体量以使其融入到胡同街区之中。房屋的使用功能设定为买手店,可以容纳展览、物品销售、轻餐甚至场地租赁等多种活动的使用。
设计的主要思路是运用镜面和植物庭院尽可能的让内与外产生联系,在略显局促的有限空间中创造无限视野,把建筑转变成容纳多样场景和体验的“花园”。三个庭院化的空间将建筑内部立体串联起来,让室内有充足的阳光和植物景观。
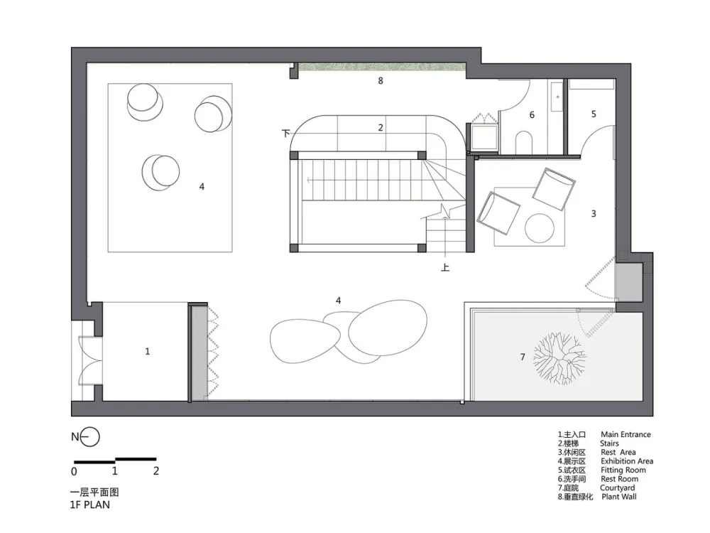
由胡同经一个带有天光的前厅转折进入建筑首层,这里是家具、产品的展示和售卖区。在这个镜面空间之内,人、器物、家具与植物景观相互映射,实像与镜像叠合交织于一处。沿着交错的楼梯向上,经过6米高的垂直绿化墙面可到达二层阁楼。
平面呈L型的厨台和餐桌由水磨石整体打造,让就餐者与厨师产生密切的互动。阁楼带有一南一北两个露台,室内活动随时可以向室外延展。

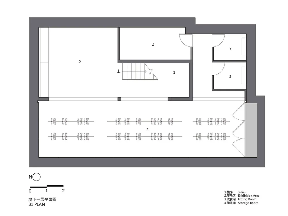
地下一层被改造为服装、鞋帽的展示和售卖区。发光地面作为鞋帽、产品的展台,同时补足地下空间的光。精选的服装悬挂于一个镜面空间之中,人与物产生有趣的关联。室内照明全部采用智能控制,镜面空间内嵌可变色的灯光,可以满足不同活动、场景的使用要求。
地下一层平面图
一层平面图
二层平面图
剖面图1
剖面图2
项目名称:镜花园
设计公司:建筑营设计工作室(www.archstudio.cn)
主设计师:韩文强、李晓明
设计团队:王同辉、黄涛、文琛涵
施工时间:2018.08—2019.04
项目位置:东四,北京
建筑面积: 283平米
主要材料:镜子、钢板、水磨石
摄影师:王宁、洪强

