ID Photo是一家约100平米的照相馆,彦文建筑工作室通过灵活的设计最大程度利用了空间,满足照相馆的功能性,创造了一个融合、互动、平衡的空间。
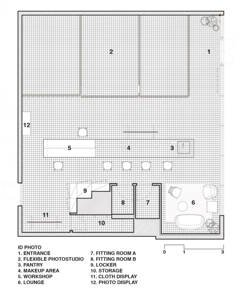
传统照相馆往往将各个功能区独立隔开,而在ID照相馆,更衣、化妆、拍摄、后期、顾客会谈休息区融合一体,将原本分割的一道道工序汇成一条整体动线,使得空间得以充分利用,也让顾客能够看到每一环节的情况,与工作人员和其他顾客形成空间上的互动交流。
整个空间最中心处放置一张长桌,提供了化妆、后期制作和茶水区域。长桌上方悬置而下的一面是镜子,背面则是一排储物柜。拍摄区域由布帘区隔,并可根据不同距离的拍摄要求灵活分隔成更小的空间。利用帘子的轨道,将灯带安装于轨道上向上打光,提供足够的环境光,又不干扰拍摄。
建筑师在灵活利用空间的同时,也注重空间的平衡感,使得整个工作室显得简洁而不凌乱。地面铺白色通体砖,墙面覆抹泥,靠街面的墙体则为玻璃,给人以简洁而宽阔的感觉。中间的长桌铺同色白砖,造成仿佛扎根于地面的效果,使长桌成为整个空间的重心,平衡了布帘、玻璃等轻质的材料。
照相馆的一个角落原有几根不规则的柱子,工作室在外围设计了一排更衣室和储物室,以遮掩这些柱子,但没有直封到顶,以免造成压抑的感觉。墙为通体镜面,方便化妆的同时,镜子的反射性也平衡了这一区域的重量感。天花板几乎没有装饰,仅刷了白漆,并交错悬挂了一些灯泡,与整个空间极简的风格一致。
建筑事务所:上海彦文建筑工作室
位置:上海嘉里不夜城二期企业广场
商业空间 照相馆 现代

