最近,一栋联排别墅闯入我们的视野,这个别墅有着古老砖头建筑的外观,同时又有着一种工业风格的美感。
这栋名为 D2 的联排别墅,位于爱尔兰都柏林的某一处商务区内,是由伦敦建筑师 Jake Moulson 进行翻修设计,同时也是他首个个人住宅项目。
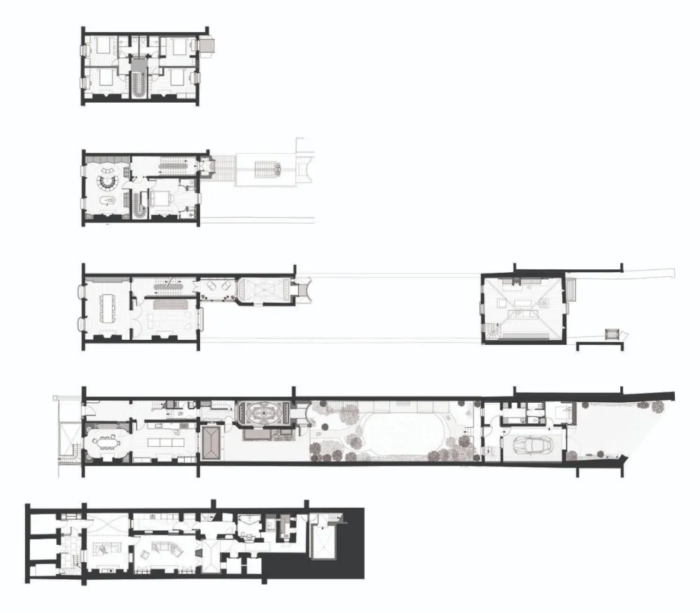
这是一栋共有五层楼的地区传统别墅,年久失修,附带一个庭院和带车库的小楼。
建筑师主导修复、扩建工作,用他工作室定制的各种家具和工艺完成了房屋的修缮。
建筑立面上的铸铁面板,有着重复的图案,这是建筑师采用数字化原型而设计,并用于花园中的栏杆和穿过房屋的门道。
建筑内部看似保留了原先的模样,但实际上有很多部分的设计风格迥异。有精致、科幻、极简、古典……全都融合在了这栋别墅当中。
起居室非常亮眼,闪闪发光的黄铜曲线和墙面,与相对立的深蓝色墙面形成对比,墙面上还有嵌入式的皮革座椅,下方有一些隐藏式橱柜。
另一个起居室则是采用了相对开阔的空间安排,并保留了原有的历史韵味,只用了一些软装简单刻画出一个自然的空间。
有的空间采用了黑白为主的设计,这里的墙上挂满了摄影作品,非常宽阔。
值得一提的是,这里的地板居然是由钢制成的,并且上面装饰有 Adamesque 风格的激光石刻设计,将 18 世纪的古典主义风格与现代元素融合起来。
图书室则保留了非常古典的风格,但天花板却异想天开地置入了一幅由艺术家 Morag Myerscough 绘制的作品。
厨房则是采用了现代的风格,工作台的表面由热成型的可丽耐材料制成,并压成波浪形状。
白色橱柜打开门才发现,原来是一台冰箱。
这个红色的更衣室结合了浴室的一些功能,整体的设计风格具有未来主义的气息。房间中央的柱状座椅非常特殊,下方隐藏着抽屉。
红色让整个空间充满一种难以言喻的迷幻感。
主卧室的设计非常简约,但在材料的选择上却有非常亮眼的部分。例如全定制的床具、紫蓝色大理石围成的盥洗室和淋浴间、用黄铜点缀的装饰效果……
类似主卧室采用色彩大理石创造梦幻卫生间的例子在别墅内的其他地方也能看到。
儿童房则采用了极简主义的手法,将一切精简到最合适的模样,并且利用白色、蓝色、粉色等适合小孩子的颜色,打造出纯净、明亮的空间。
这栋联排别墅还有地下室,入口利用垂下的植栽和玻璃窗营造出明亮的氛围。
地下室还有一个带有壁炉的起居室,这里墙上的挂画、明亮的沙发与绿色的大理石黄墙板相映成趣。
另一栋小楼则是由车库和卧房组成,这里保留了原本老旧的模样,舒适、明亮是其最大的特色
主卧室则是采用非常开放式而随心的设计,床摆在中正剑,一个玻璃盒罩住的艺术品和躺椅、电视机、摄影作品、摄影用照明灯……被安排在一个空间中,充满艺术气息。
车库上方则有一个延伸出来的结构窗户,下方的车库入口具有工业气息,破旧的模样反而与周围的环境特别相宜。
本文照片摄影师:Tim Crocker、Mitsuko Moulson
项目信息来源于设计师官网:https://jakemoulson.co.uk

