本公寓更新改造项目位于一座建于20世纪20年代的建筑内,翻新后的室内空间被分为了两个基本区域:一个是原先液压式六角形马赛克砖地板的修复区(即公共区),这里遍布着丰富的几何图形和颜色;另一个则是以光线和经济性为决定性因素的两居室的生活区。
因此,本项目的设计重点便集中在两片相对的墙体上。为此,建筑师采用40毫米厚的MDF板作为骨架,在其中填充金属轮廓线和石膏板,打造这两片相对的室内墙体。这种设计处理旨在强调隔墙作为非正式家具在室内空间中的作用,从而在这个简单的经济性居住空间内通过隔墙来完成空间的划分,这也呼应了原始空间的布局干预手段。




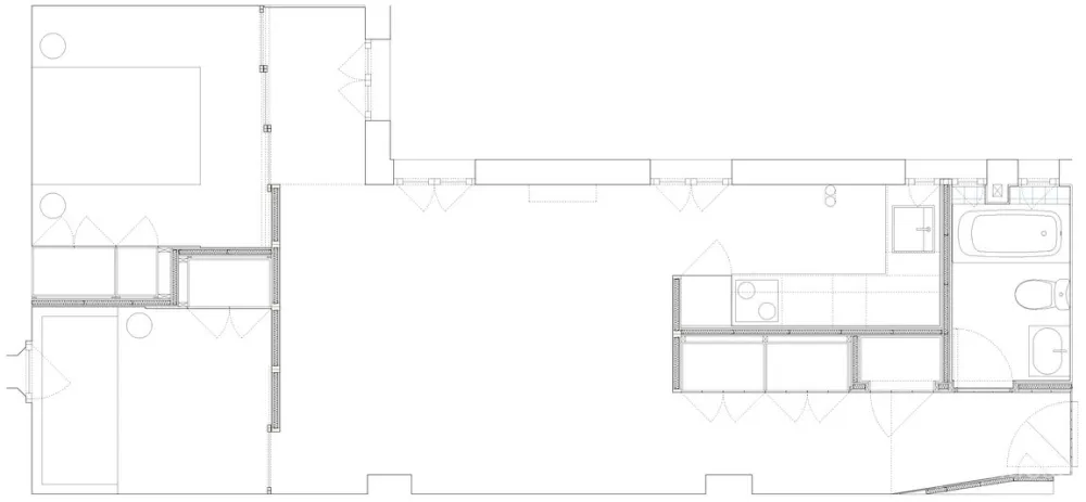
▼平面图
▼公寓室内空间示意图
地点:马德里,西班牙
客户:私人
设计团队: rubial·sanchez (Alberto Rubial Alonso, Sergio Sánchez Grande)

