过去被认为是朝九晚五的工作,在这段时间里,一个人单独坐在小隔间里,接听一部电话和一台电脑,但在今天的现实中已经发生了很大的变化。我们被一系列新的沟通方式所塑造,随之而来的是一种新的工作心态。
如今,全球互联网连接让我们可以在任何时间、任何地点工作,使固定的时间表近乎过时,员工在办公室工作的理由也越来越没有说服力。在工作中,我们每天都在计划、策划和设计。
创新和创造力已经成为通往成功的道路,这让我们把职业发展看作是一种个人的东西,现在这两种生活逐渐交织在一起。我们工作是为了生活,生活是为了工作而满足,把工作变成一种接近生活方式的东西,应该能够适应不同员工的个性。
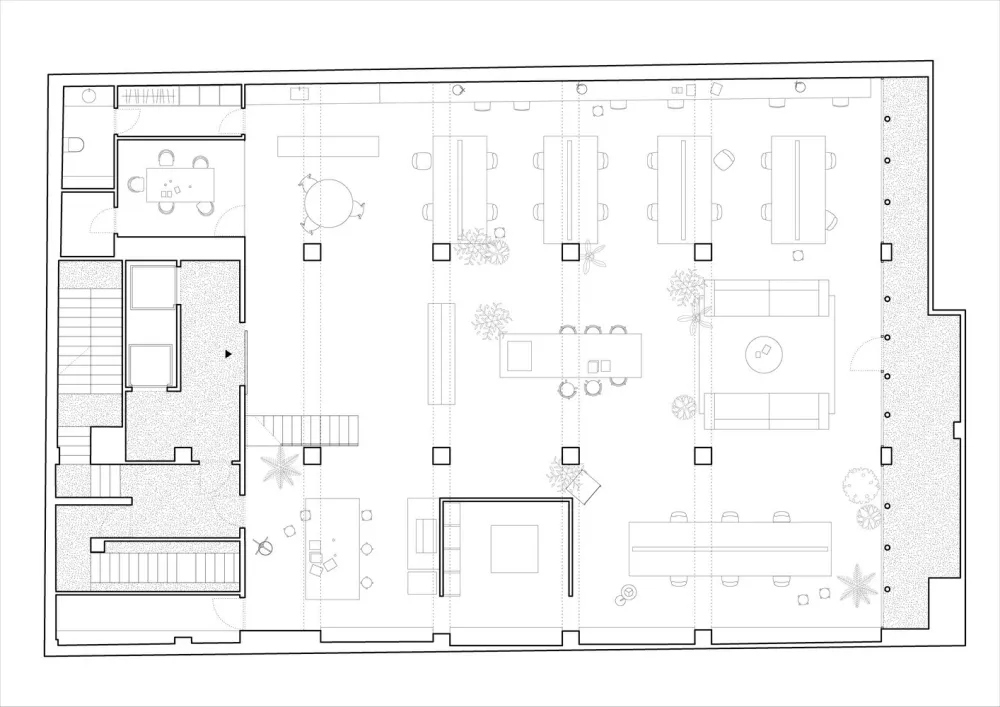
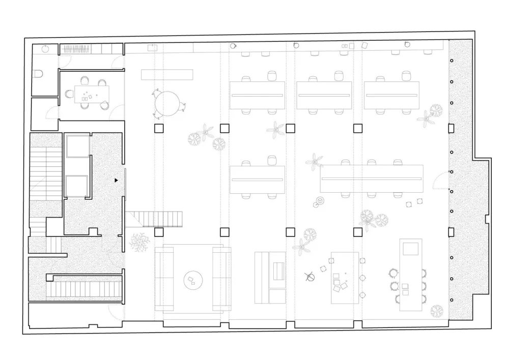
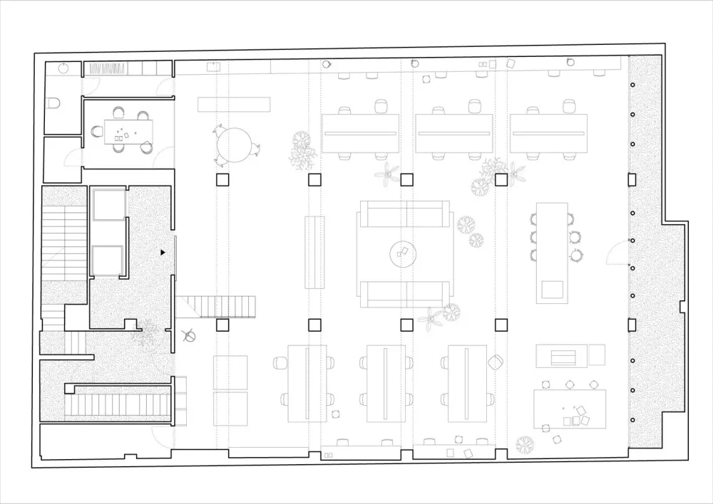
灵活性的关键概念设计已经成为每一个办公空间,无论是我们自己的工作区在巴塞罗那——一个邀请你来感觉自由的白色帆布,舒适和连接,或者客户的办公室有适合成千上万的个性和想法在一个公司在各种哲学和建筑。








项目位置:西班牙巴塞罗那
设计公司:MESURA
设计面积:135.0平方米
设计时间:2018
摄影师:Iris Humm

