这是一家一流的酒吧!在Rohanské路一侧新近完工的Rustonka办公综合体中,一处新的酒类销售、品鉴和展示空间——Kolby红酒酒吧——现在正式开始营业。除了作为面向广大消费群体的酒吧之外,它可以用于私人庆祝和公司活动。整个空间被设计成Kolby葡萄庄园出产的葡萄酒的展示空间。朴素的空间形成别致的背景,让顾客把注意力集中在最重要的物品,即葡萄酒上。
葡萄酒吧内部面积仅有59平方米,设计师将其构想为一处开放空间,可以根据顾客不同类型的活动进行多样化的使用和布置内部家具:从允许大众顾客使用的布局到进行品酒活动的中央空间,再到一系列用于接待和公司派对、私人庆祝活动使用的布置。这也是内部家具使用标准化产品与细木工制品相结合的原因。整个开放空间内部有一个连续的架子,主要用于展示和储存红酒瓶和盒子。其他的室内元素如使用CorTen钢的吧台、浇筑混凝土地面或家具(Vitra)都作为架子系统的附加元素,进一步增强了展出葡萄酒的特色。
葡萄酒吧内部面积仅有59平方米,设计师将其构想为一处开放空间,可以根据顾客不同类型的活动进行多样化的使用和布置内部家具:从允许大众顾客使用的布局到进行品酒活动的中央空间,再到一系列用于接待和公司派对、私人庆祝活动使用的布置。这也是内部家具使用标准化产品与细木工制品相结合的原因。整个开放空间内部有一个连续的架子,主要用于展示和储存红酒瓶和盒子。其他的室内元素如使用CorTen钢的吧台、浇筑混凝土地面或家具(Vitra)都作为架子系统的附加元素,进一步增强了展出葡萄酒的特色。






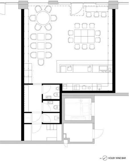
▼平面图与室内立面图

项目名称:科尔比酒吧
联系电子邮件:info@cmca.cz
项目地点:捷克共和国布拉格7号扬科夫科瓦1037/49,170 00
项目:2018
建设时间:2018年10月- 2019年1月
项目规模:74,3平方米
照片:Jakub Skokan, Martin Tůma / BoysPlayNice, www.boysplaynice.com

