工业革命的技术性进步,使得钢材和建筑的混凝土构件的使用促进了现代主义和静态负载平衡的自由,透明或是不透明,古怪的或是分离的电影显示了外部空间和内部空间的长久分离。
SB房屋作为生产者围绕建筑而建的,在内部和外部关系间、气候和私密性的考虑间调剂准确的用量,建筑从地面抬升起来,包围合所需的空间,如像面对重力、单薄和静止的挑战包裹般回到地面,且生成一个巨大的雪堆包围整个房子。房屋周围的水泥操作对开放与封闭体系间产生一种奇妙的平衡效应,并用各类强度的光线来填满房屋,混凝土的浇筑强调了它的感官性。
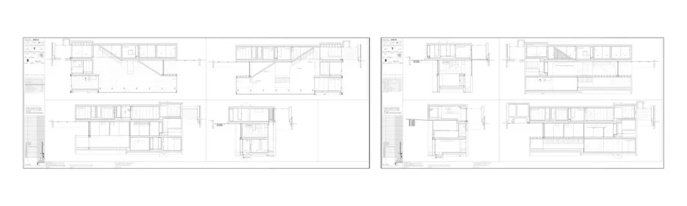
一种实在的方式虽未成为构造中的一个组件,但能支持钢梁和木板支柱的合成,用来覆盖组成所有混凝土建构的三种材料前的楼层及百叶窗,它们曾被拆除后再次在最后阶段组装起来并形成一种无法平衡的整体关系。
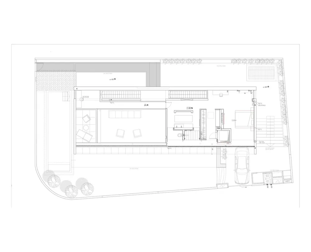
房屋的出入口位于街道层,这出入口穿过机动车道,把游人置于一堵由封闭变为开打的墙前。其它的贝壳墙生成了与不封闭和暴露间的不同关系,其共同点是在两个变量之间寻求一个微妙的平衡点。房子的立面可以理解为一幅抽象画,团状物和线条均排列成不规则的组合并产生一种房子本身回应1950年代的现代主义亦组织一个简约但不均衡的不对称构图的新秩序。靠墙站立的经验密封了埃及寺庙和城堡建筑、宫殿、教堂的出入口建筑,更多人希望游客基于不同理由出发的角度的改变,所有这些因素播放了一个选项并断开,移动和接近、国内和国外。
靠墙站立的经验密封了埃及寺庙和城堡建筑、宫殿、教堂的出入口建筑,更多人希望游客基于不同理由出发的角度的改变,所有这些因素播放了一个选项并断开,移动和接近、国内和国外。
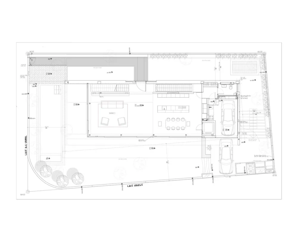
从入口大厅出来即是连结空间的汇合,在空间本身和大厅两边的走廊的汇合,像运动本身约束了两堵墙并对天空框架生成开放的视野,从而强调了室内室外间的转变,增加了对话且最初客厅明显展示了对花园开放、关闭、开打的状态。
起居空间和厨房区域生成了一系列公共空间包括厨房、起居室、花园、泳池,这些公共空间的开放程度令人惊讶,但并不会减弱空间体验。用天然木板覆盖地板—这些看起来像是落在经过铸造的混凝土屋顶的光并留以它裸露的成型。
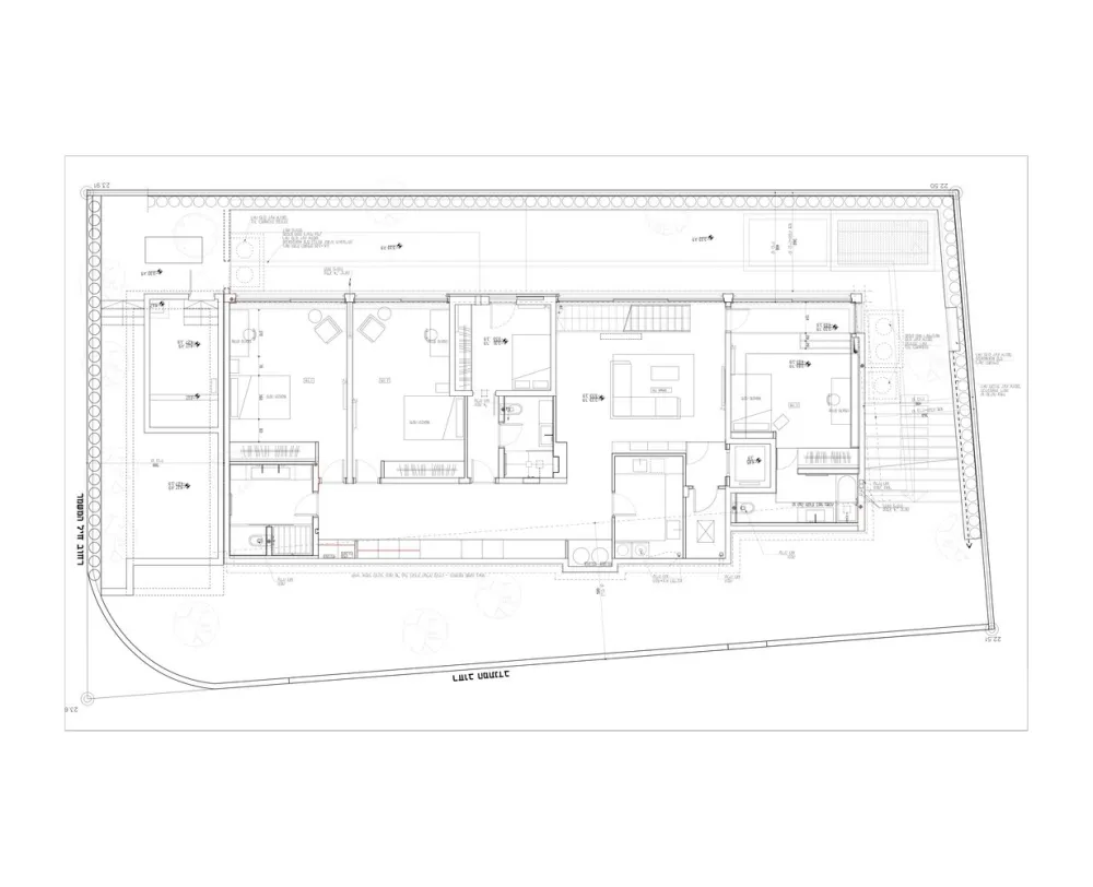
儿童房位于由下沉庭院穿越的较低层,能直接看到出入口,且主卧室位于朝北开放的上层,那边有木制百叶窗可调节光线和曝光量。通过屋顶延长brisolei百叶窗模糊化了内部空间的划分并突出了棱镜,解释了操作和皱褶的封面使居住空间周围的混凝土用它右边的室内和室外的页面元素,作为抽象的雕塑。



建筑师 Pitsou Kedem Architects
地址 Tel Aviv-Yafo, 以色列
类别 独立住宅
设计团队 Pitsou Kedem, Tamar Berger, Irene Goldberg, Hagar Arad Tsvi
建筑面积 511.0 m2
项目年份 2014
摄影师 Amit Geron


?