“我变轻,变凉,变碧绿,脑海的小气泡咕嘟破灭。
你是薄荷味的泡腾片,我一碰到,就爆炸成夏天。”
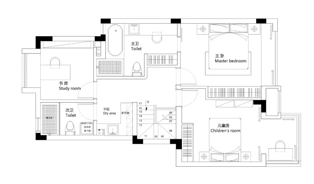
设计理念:本案是一家三口加上父母,三代同堂。屋主喜欢台式的结构感和北欧的色调,设计师在满足功能性的同时结合原木打造出清新惬意的舒适空间。
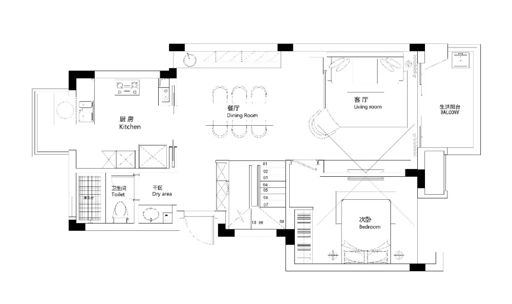
整个空间以白色为主点缀原木色,全屋地板鱼骨拼,
清新自然地感觉扑面而来。 沙发背景只用了简单的石膏线条,对应纯白的电视背景,
再搭配装饰画和旁边的绿植,无形之中为客厅增添了不少活力。
餐厅与客厅在同一水平线上, 而且之间也并没有做明显的隔断设计,然而这样的设计能让餐厅与客厅两个空间看起来都更加的宽敞。
西厨放在餐桌旁边不仅满足了操作空间的需求,还可以增加餐厅的收纳,摆放精致的餐具及装饰摆件,好看又实用。
小阳台包进厨房间放上置物架,光源充足。
橱柜延续原木色调,干净整洁。
窗外正对风景,采光充足,房间内没有做过多的设计,一面浅咖色的乳胶漆墙作为背景搭配上深色的家具,显得宁静又舒适。
干区墙面用的是经典百搭的小白转,搭配金边圆镜,小巧而精致。
楼梯设计采用了玻璃 木质包边,白色和木色的结合再加上玻璃的通透,再次提升了空间层次感。
灰色调的硬包背景墙搭配咖色皮质的床靠背,更突出家具的质感,卧室的另一侧是独立的卫生间,用隐藏式的吊轨门作为隔断。
主卫干区有超大的台面作为梳妆台也是绰绰有余,旁边还有超大的储物柜,女生看了都无法自拔吧~
女孩的房间背景用粉色和薄荷绿撞色作为背景,一边和薄荷绿的柜门形成一体,另一边放上暖黄色的单人椅跟家具呼应,趣味感十足。
木色书柜和黑色的搭配经典又更显质感,百叶窗的设计保证了充足的光线。
二楼公卫的干区也是一个水吧台,风格和一楼保持一致,简洁大方的设计,清爽又实用。
北欧 原木 收纳 绿植

