限制和诉求 项目位于浙江省舟山市嵊山镇,当地民宿类项目有明确的执行手册,对总面积,每层面积,建筑高度均有限制,乃至对建筑风格也有所限制。进而造成建筑造型以及空间打造均极其受限。 ▼民宿外观全景
嵊山岛作为中国最东边的有人居住的岛屿,空气潮湿,时有大风乃至台风,建筑选材受限,运输成本以及人力成本均较岛外有大幅上升。业主姐弟希望面积尽量用足,尽量每个客房要有不同的感受,并且每个房间都要有尽量多的看海界面;希望至少能打造成舟山地区排名前列的民宿项目,同时尽量控制造价。 ▼民宿外观远景,房间尽可能多的面向海界面
形体与景观 在概念设计沟通方案方向阶段,提供了十余概念方案供讨论,业主最终选择了这个几个体块咬合的方案。一年多时间里,陆续上岛十余次,一次业主提及,是不是还没去过荒村(当地一旅游景点),于是一并前往,到后一边闲聊一边继续讨论方案,此时业主提起,他们老家原本就在这个村,由于生活不便,村里人陆续才陆续搬离。她感觉实施方案里形体的错动咬合关系跟村落中散落错动的房子不无相似之处。或许是巧合,或许是相似形式牵引出了记忆。但可以明确的是,本案形体设计平面布局的出发点其实都是基于业主的诉求以及场地景观资源。 ▼民宿外观近景,院内路径弯折
▼民宿外观近景,院内路径适当拉长客人入住的行走路线
项目落成,七个房间各有不同,101有院有私享泳池区;201有画框海景,正对远处海中央岛屿;202有270度宽画幅海景;203有山色加海景;301是套房,客厅卧室均有宽画幅海景,卧室有整张床大小的星空天窗以及私家小院;302同样是复式套房,客厅270全景海面,卧室以及主卫均有星空天窗,另外还有海风露台以及宽敞独立小院。303躺在床上看山看海也能看星空。 ▼民宿外观局部,一层房间设有私享泳池区
▼民宿外观局部,大片的玻璃确保了室内的景观视野
路径与感受 项目本身其实面积不大,建筑只有四百平方左右,场地相对岛上其它民宿项目,用地会稍微宽松。方案通过拉长上山路径,以及将院内路径弯折,适当拉长客人入住的行走路线,沉淀心境,增加客人对入驻民宿的期许。 ▼民宿室外交通流线局部,拉长上山路径,将院内路径弯折 ▼室外庭院局部,蓝色的泳池和大海与白色的墙体和地面交相辉映
路径与感受 项目本身其实面积不大,建筑只有四百平方左右,场地相对岛上其它民宿项目,用地会稍微宽松。方案通过拉长上山路径,以及将院内路径弯折,适当拉长客人入住的行走路线,沉淀心境,增加客人对入驻民宿的期许。 ▼民宿室外交通流线局部,拉长上山路径,将院内路径弯折 ▼室外庭院局部,蓝色的泳池和大海与白色的墙体和地面交相辉映
▼室外庭院局部,采用白色混凝土片墙限定景观视野
▼室外庭院局部,部分步道采用木板铺地 空间与时间 通过空间水平向以及竖向的多层渗透,加上开窗位置的变化,让进入室内的光线有控制的出现,将视线无限拉长,让空间流动。希望在小空间里,通过设计手法,将感知空间放大,将时间放缓,将空间类型做丰富。以期避免常规走廊串房间类型的项目里相对单调无趣的体验。 ▼室外公共露台空间
▼室外庭院局部,部分步道采用木板铺地 空间与时间 通过空间水平向以及竖向的多层渗透,加上开窗位置的变化,让进入室内的光线有控制的出现,将视线无限拉长,让空间流动。希望在小空间里,通过设计手法,将感知空间放大,将时间放缓,将空间类型做丰富。以期避免常规走廊串房间类型的项目里相对单调无趣的体验。 ▼室外公共露台空间
▼室内用餐区及室外露台区,享有极致的海景
▼室内公共休息区 ▼从客房室内透过玻璃窗俯瞰室外景色 ▼二层客房局部,设有画框海景 ▼二层客房局部,享有山景和海景
▼二层客房局部,享有270度宽画幅海景
▼三层套房的起居室空间俯视图
▼三层套房客房局部,享有270°全景海面
▼三层套房的起居室空间,设有宽画幅海景
▼三层客房的卧室空间,具有极好的景观视野
▼三层客房的卧室空间,设有整张床大小的星空天窗
▼三层的私人室外露台 房子与人 业主用了一年时间找地,半年时间寻找设计方,再经过一年时间,项目将近完工,为赶客流高峰,目前该项目已正常营业,但局部还在逐步完善,室内软装也在根据业主资金情况不断添置或优化。房子因人而活,也因人而变,因人而不同。 ▼民宿空间局部,方形洞口将室外的景观引入室内
▼三层的私人室外露台 房子与人 业主用了一年时间找地,半年时间寻找设计方,再经过一年时间,项目将近完工,为赶客流高峰,目前该项目已正常营业,但局部还在逐步完善,室内软装也在根据业主资金情况不断添置或优化。房子因人而活,也因人而变,因人而不同。 ▼民宿空间局部,方形洞口将室外的景观引入室内
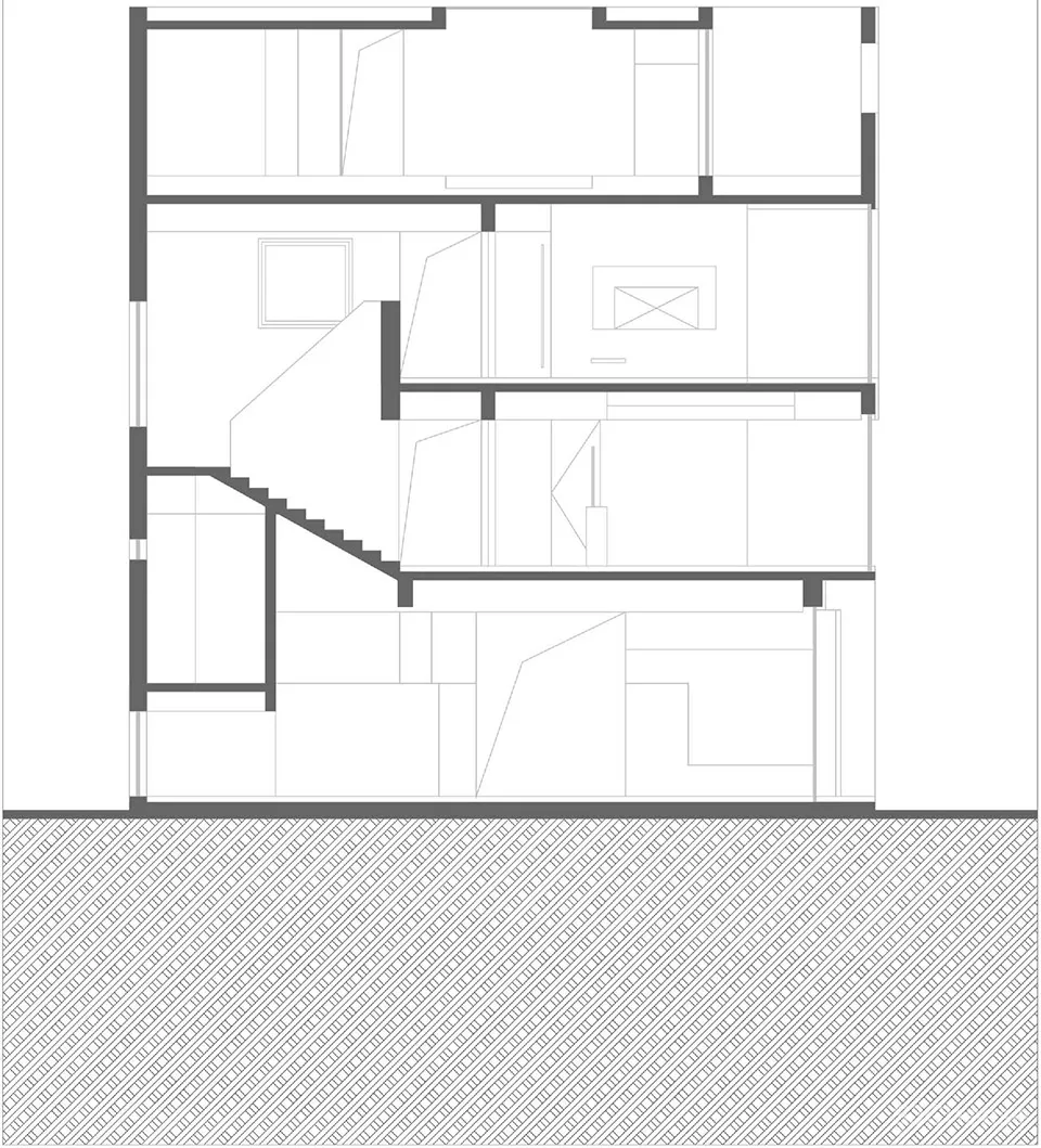
▼一层平面图 ▼二层平面图 ▼三层平面图 ▼四层平面图 ▼1-1剖面图 ▼2-2剖面图 ▼3-3剖面图 项目名称:等风来 设计方:周鑫工作室 项目设计 年份:2018 项目完成年份:2019建成 主创及设计团队:周鑫工作室 项目地址:浙江舟山 建筑面积:约400㎡ 摄影版权:木野 合作方:鑫海营造(施工方) 客户:阿冬姐弟 品牌:涂料 水磨石(德国摩根智能)
民宿 建筑 水磨石 木材 混凝土

