薄荷花园酒吧位于河北省邯郸市丛台路,是精酿啤酒品牌URBREW的直营酒吧,经营范围为啤酒、鸡尾酒、西餐。委托方对于设计的最主要要求便是:简单,less is more;酷,有质感。
原场地为一栋两层独栋建筑,一层层高5m,二层层高4.2m,酒吧布置在一层。明确功能后,我们将厨房、卫生间、办公室、独立闹吧、包房等封闭空间视为实体,穿插在整体空间之中。部分区域打通现有楼板,形成局部的三层空间。
根据对酒吧空间氛围的分析,我们将空间氛围由闹到静分为六种:躁动的闹吧、热闹的舞台、熙攘的吧台、分享性的长桌、轻松的休闲座、安静的卡座。在实体空间进行穿插,形成凹凸错落的空间后,我们将六种空间置入现有的连贯空间之中,并依照各区域的氛围生成最终的空间形态。
在选酒区可从侧面直接看到舞台区,方体包房以钢结构吊柱的形式固定在半空中。舞台区位于建筑西侧临街处,将现有的建筑外墙改造为通高的玻璃幕墙,是除了闹吧之外氛围最热闹的区域。
卡座区的座位形式以沙发卡座及散桌为主,是酒吧内最静的区域。
最东侧的金属楼梯通向夹层的闹吧,闹吧有着单独的吧台及DJ台,是酒吧中独立存在的小天地。
我们对建筑的外立面做了改造,将外立面墙体部分全部以黑色铝板进行覆盖,并将西侧舞台区换成通高的玻璃幕墙。入口两侧的开间设置成可开启的木折叠门,根据天气条件可以在开敞空间及封闭空间之间切换。







▼生成分析图
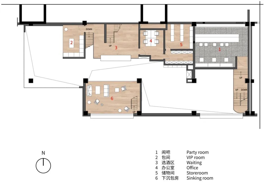
▼一层平面图
▼二层平面图
项目名称:薄荷花园酒吧
项目位置:河北邯郸
项目面积:627㎡(室内)、302㎡(室外)
主创设计:侯天天、李成、刘晓鲁
照明设计:凌俊磐
结构顾问:刘粟
摄影:刘伟
设计时间:2018年6月—2018年9月
施工时间:2018年9月—2019年1月
主要材料:涂料拍花、仿铜不锈钢、水磨石地砖
联系邮箱:houtiantian1218@163.com

