CV住宅位于一个山地私人住宅区内的一片不规则的基地上,该住宅区所在的山地位于墨西哥蒙特雷市西侧的不远处,有一部分被划分成了采石场。
鉴于地形复杂,建筑师采用了立方体作为住宅的体量,充分利用了地形特点,此外,这个立方体体量还在基地平面上分割出两个角部的三角形空间,其中一个被用作住宅在街道平面上的入口,另一个则被设计成位于上层空间的小花园。
这个立方体体量的基座由混凝土构成,坚固地嵌入山体坚硬的石头中,同时支撑着上面两层看起来较为轻质的居住空间,居住空间则采用由具有渗透性和表面纹理的隔热体块组成的外壳。经过精心的考量,建筑师在这个建筑外壳上设置了几个洞口空间,为室内空间提供了自然采光和通风,同时,建筑师还在住宅的正立面上设置了一系列矩形的小开口,从而无论是在白天还是夜晚,都能创造出一种有趣的灯光和光影效果。
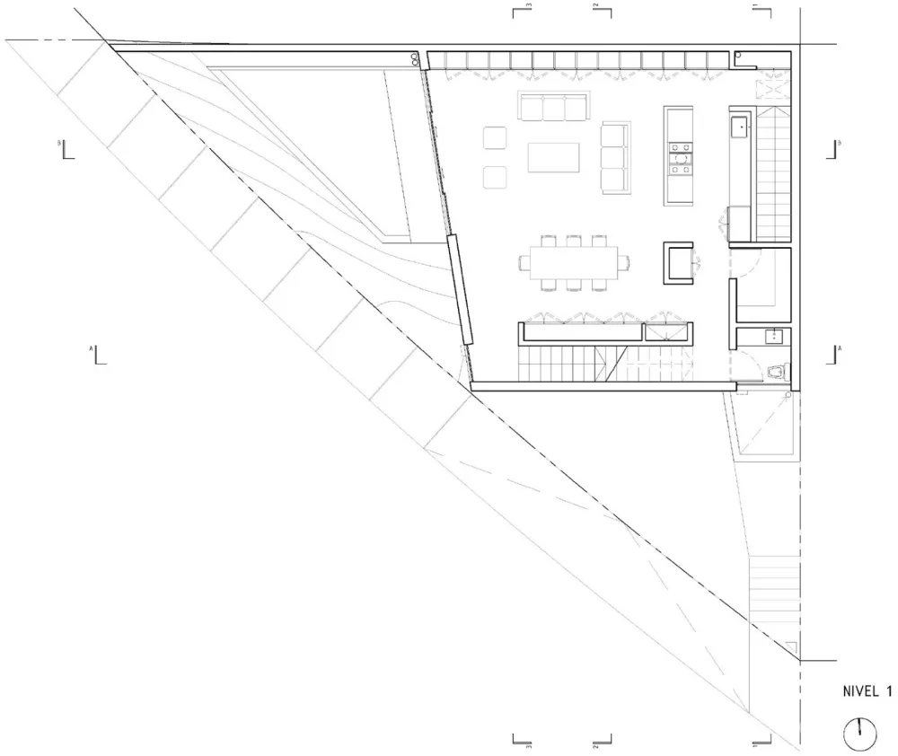
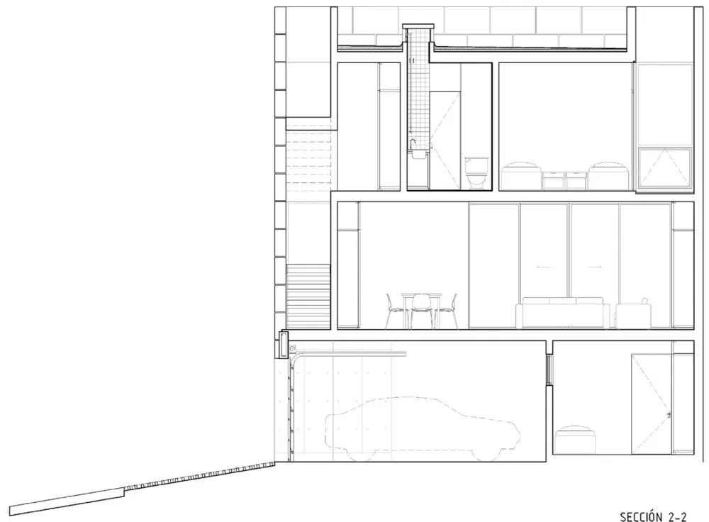
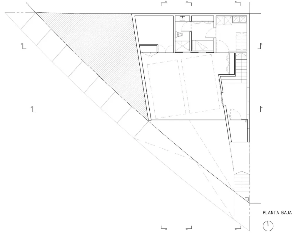
住宅共三层,还设有一个大露台。服务和储藏空间、车库和家庭工作室等皆位于首层。主人行入口打破了立方体的完整体量,创造出一个小型的门厅空间,为前来拜访的人们提供了一个休息等候区。此外,建筑师还在室内设置了一个前厅,该前厅将主人行入口和车库来向的次入口联系起来,并创造出一个通向二层的楼梯空间。
二层空间具有开放式的空间布局,包含了一系列社交公共区:厨房、餐厅和起居室空间等,后者更是通过一个大玻璃门连接到旁边的一座小花园,花园一直延伸到外部环境中,创造了一个休闲娱乐空间,此外,花园内的树还确保了空间的私密性,并提供了遮阳场所。通往三层的楼梯可以一直通向屋顶,并作为缓冲区,将南部强烈的阳光和热量阻挡在居住空间之外,使室内空间在一年中的大部分时间内都能保持相对的凉爽。
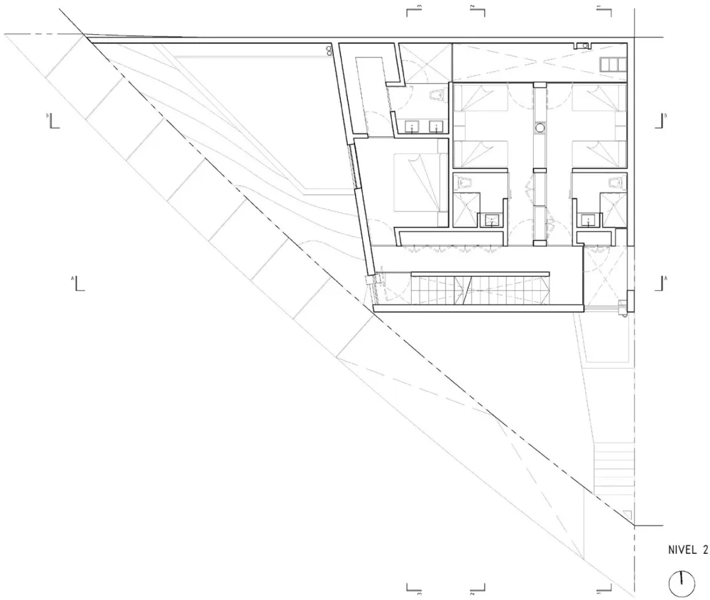
住宅三层包括一间主卧和两间次卧。在住宅的南侧,三间卧室通过一条平行于楼梯的室内走廊组织联系在一起,而在北侧,则通过一个享有自然光的长方形露台联系起来。此外,建筑师还在室内单跑楼梯的两端,即二层社交区的一端和通向屋顶的一端,设置了两个露台,从而确保了走廊上的横向通风,同时,在必要的时候,这两个露台还可以与北侧的露台结合在一起,组织室内通风。

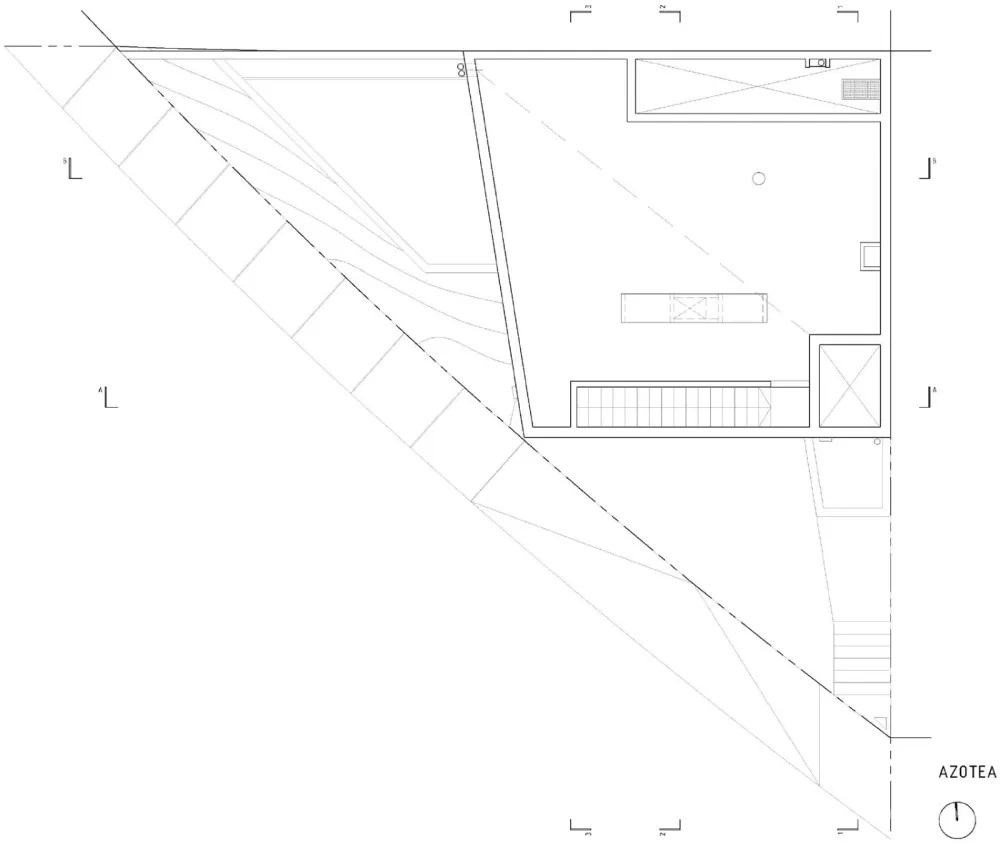
最后,室内楼梯通向了屋顶,屋顶是一个大型的开放式露台,扩大了住宅因为场地条件而受到限制的可使用空间面积。此外,由于该住宅区的地势较高,住户可以从这里俯瞰欣赏到壮丽的山谷和周围群山的自然景色,以及在群山环抱中的大都市区的城市景观。从这一点可以看出,本项目特殊的基地条件作为城市的重要组成部分,将城市结构与雄伟的自然和山脉交织在了一起。


▼住宅实体模型
▼南立面图
▼住宅空间爆炸轴测图
▼二层平面图
▼剖面图1-1
▼剖面图A-A
▼屋顶平面图
▼三层平面图
▼首层平面图
▼剖面图2-2
项目:Casa CV
建筑:S-AR +卡洛斯·瓦尔迪兹
地点:蒙特雷,新莱昂,墨西哥。
单身公寓
建筑面积:298 sqm
项目年:2015年
建筑年:2016-2019
摄影:Ana Cecilia Garza Villarreal

