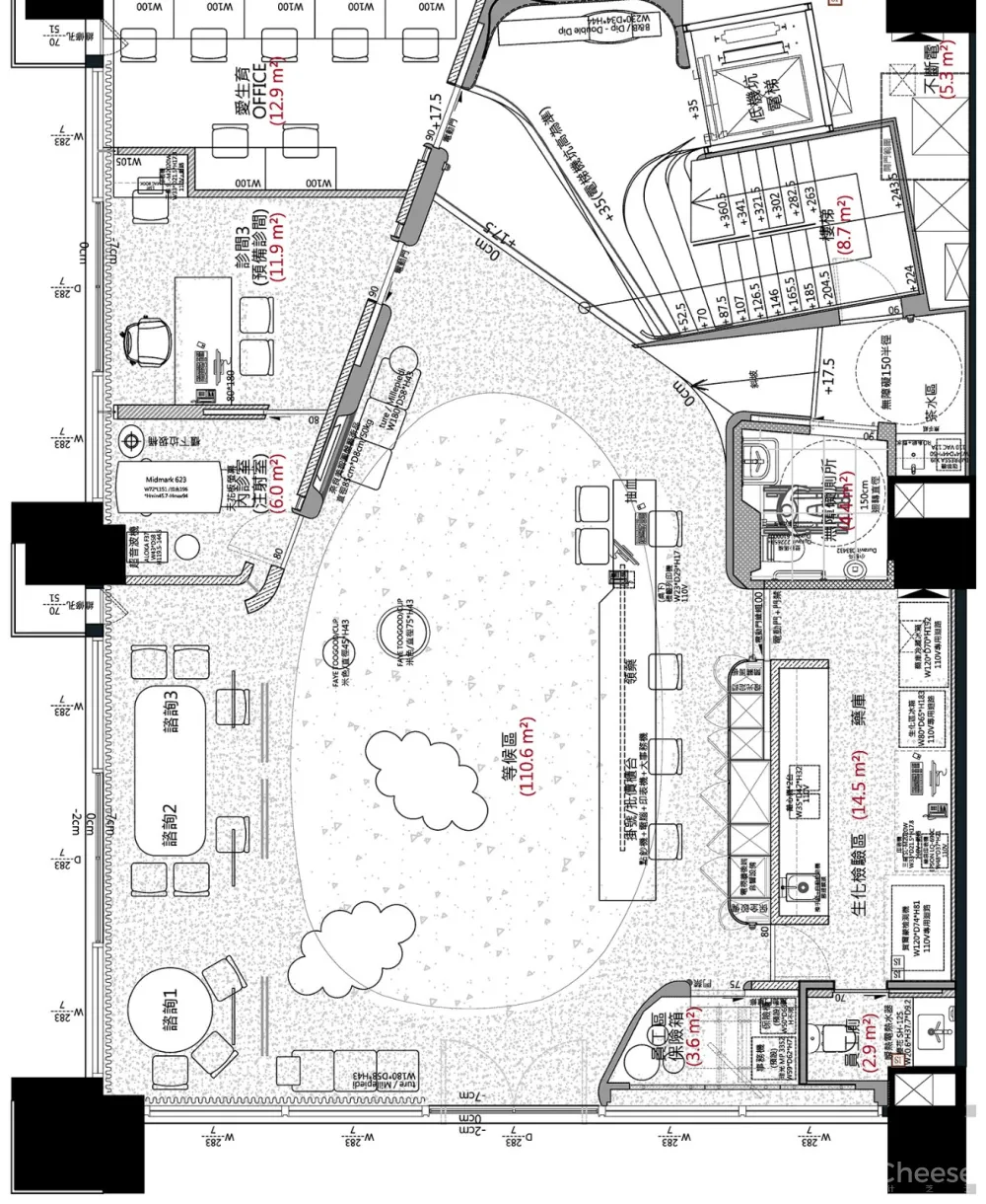
该案为生育中心设计,使用了天然木皮、石材、铁件、特殊漆等主要材料,蔓延着自然孕育的气息。希望藉由空间展现出生命孕育在母胎之中的安全感受,给予受众信心和希望。
设计师传达了一种设计理念,让生命在母胎的包覆之中成形、孵化,整体空间以介质形态存在室内建筑中。
【起源】:基因的符码
The genetic code, the origin of life.
接待柜台不止于机能,更要成为空间雕塑,同时也象征着—-生命的起源,宛如一串基因的排列编码、或是活水的源泉。让到来的人们,都能够直观地感受到优异的医科学、以及丰沛的生命力。
【介质】:卵
The ovum, the beginning of life.
在大厅中运用了多种层次的曲度墙体、弧面天花来暗示母胎的包覆,有着隐晦的亮光、有机的天然肌理。天与地的呼应,在避免封闭隔间的条件下,清楚地区划了空间功能。穿梭之中、包覆之中,宛如巢穴。
【新生】:踏上未知旅程
A new start,an unknown journey.
在通往楼上诊间的垂直动线中感受到律动、节奏,在方正的楼梯中容纳了弯曲的有机体意象。层层叠叠的量体将上升中的视线赋予稳定的方向性,让即将面对惊喜、未知旅途的人去感受到强烈的力量。迎接最美好生命的到来。
设计:唐忠汉

