新光大中心ArtPark9就生活方式的更多可能性提出“居住之问”,建筑师青山周平以“和院”作出了回复。
 
 
城市是什么?是容器,包藏每个人生活和工作的空间;是历史,在嘀答声中跨越千百载的时间;是生命,在一代一代人打磨与接续中昼夜滋长的活物,你观城市,城市也观你。
 
 
和院——新家族的家,是一个约120平米的室内空间,在项目中,我们思考的不仅仅是如何打造当代舒适的室内生活空间,更着重考虑在未来新时代——家的另一种可能。
 
 
在过去,居住模式常是祖孙几代人共同居住,几代同堂的生活模式我们将其称之为家庭的1.0版本。逐渐家庭模式变成了父母与一个孩子,在日本则是父母与两个孩子,这是家庭的2.0版本。及至现在,世界各大都市,越来越多的家庭变成一个人,这是家庭3.0的版本。
城市正在逐渐变成“一个人的城市”。在东京的核心区域,独居的老年人与年轻人占据了超过半数的比例,我们想象中的传统家庭已经在逐渐的瓦解和消失,这也即将是北京未来所要面对的事情。
在家庭1.0时代,我们有四合院和土楼;在家庭2.0时代,也有相应的两室一厅,三室一厅的住宅楼。到了家庭3.0时代,家应该是一个怎样的状态呢?
 
 
带着这样的思考,设计师青山周平与其团队展开了项目的研究。发现大部分的户型都是基于婚姻和血缘关系建立的家庭居住模式,首先打破的便是户型设计。
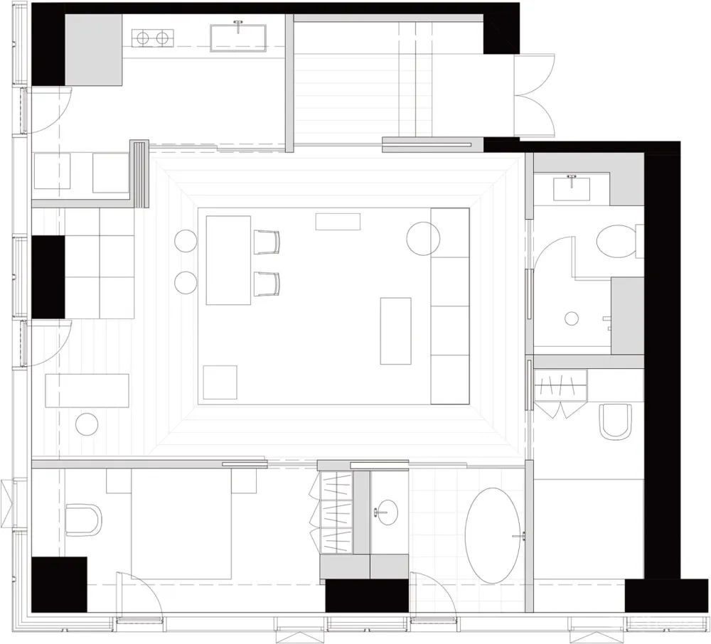
他们把原有的隔墙全部拆掉,在房子正中间设计了一个庭院式的公共空间,并把四周的回廊抬高,使庭院下凹,高度恰好成为人们休憩的座椅。
 
 
从上方俯瞰空间,似乎是四合院。如果将屋顶拿掉,就可以看到四周的卧室、卫生间、淋浴室、厨房等等,设计师将私人空间尽量压缩,将更多的空间释放到了公共区域,我们的生活便在这里展开。
 
 
新家族的家,将人们从自己私密的空间中解放,不再是一个封闭的家庭区域,而是个体时代的新家庭住宅模式:更开放的高复合空间,拥有更多的可能性。
 
 
 
 
 
 
 
 
 
 
 
 
 
 
 
 
 
 
 
 
 
 
▼平面图,房子中间设置庭院式的公共空间
 
 
设计师:青山周平
设计公司:B.L.U.E.建筑设计事务所
项目面积:117㎡
完工时间:2018.11
项目地点:北京市,通州区,新光大中心
摄影师:金伟琦、夏至


