TUESDAY AOYAMA成立于东京青山,2018年在西安开设了国内首家实体店,位于西安曲江区核心地段南湖旁的W Five Park,与W酒店同属万众国际。它是一个多领域营业业态融合再创新的复合店,经营内容包含了法式甜点、高端定制花艺及以鸡尾酒为主的酒水。虽然业态多样,但是我们希望最终可以呈现出一个干净纯粹的状态,固然需要摒弃部分展示内容,更为重要的是希望通过空间的氛围或者尺度等细节手法来改变空间内消费者的心理及行为,使其达到某种程度的放松和开放等心理变化。
现场空间是可以满足设计夹层的高度,顶面为两个落差1.3米的标高,在满足所有空间尺度合理的前提下我们一反常态的选择了在较低的一边设计了夹层,目的是希望空间的层次有足够的反差,达到视觉上的冲击以及不同空间尺度下的不同体验,最终呈现出一个反重力悬浮的金色盒子使空间分为了几个不同标高的区域。
过建筑回廊进入室内中空区后,可明显直观的感受到室内中空的高挑感,其次是夹层金色盒子带来的视觉冲击,夹层底面的镜面材质减弱了该区域的压迫感同时通过视觉上的错觉增强了空间的虚幻感,以及空间多处在墙体形成上打破了实体阴角概念,也形成多空间之间的灵动性,这样的空间丰富且虚幻的感受正是我们所希望带给每一位消费者的体验。
在楼梯位置考虑上也将其隐藏在吧台背后,并无将其设计为开放姿态,但通过明显的材质反差也使其形成了含蓄且高调的独特气质存在于空间中。



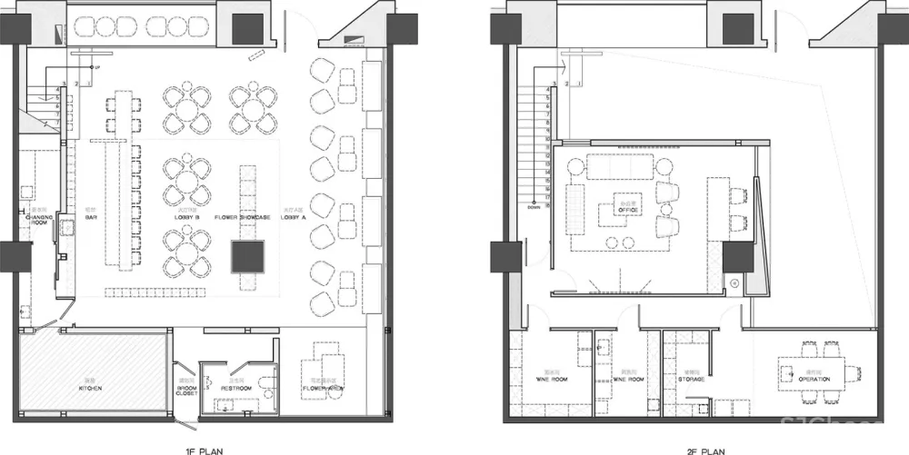
▼平面图
▼内部空间轴测
▼设计分析
项目名称:TUESDAY AOYAMA
甲 方:西安亚瑟吉恩艺术文化传播有限公司
设 计 方:马达思班(MADA s.p.a.m.)室内班
公司网站:http://www.madaspam.com
联系邮箱:jingjinpeng@madaspam.com
完成年份:2018年7月
主创设计:景金鹏
设计团队:杨勃、殷昊、夏满、关娟
项目地址:中国·西安
建筑面积:316平米
摄影版权:吴永长、王昱飞

