GRAFT工作室设计了Trilux照明公司位于德国科隆的新总部,矩形建筑的设计很大程度上受到了客户工艺的启发:光、折射和反射在整个建筑中得到了最真实的反馈,其设计体现了灯具制造的精确性。连续的交错玻璃立面从不同的角度呈现出不断变化的反射图案,并从聚光灯反射镜的美学中汲取灵感,从而优化光源的光学分布。为此,每个立面图案围绕其中心轴以相同角度旋转。是一个整体式建筑,根据视角产生不同的光和变化效果。
Trilux总部的主入口在与北边的街道交汇的拐角处设置了迎宾处,,围绕着大楼的拐角玻璃幕墙从一层上升到两层。新建筑在西部边缘形成了建筑框架,定义了新建筑和现有建筑之间的新的互动空间。Lill+Sparla的景观设计创造了一个全年都是绿色的室外广场,精致的草地与建筑的统一整体印象形成鲜明对比。
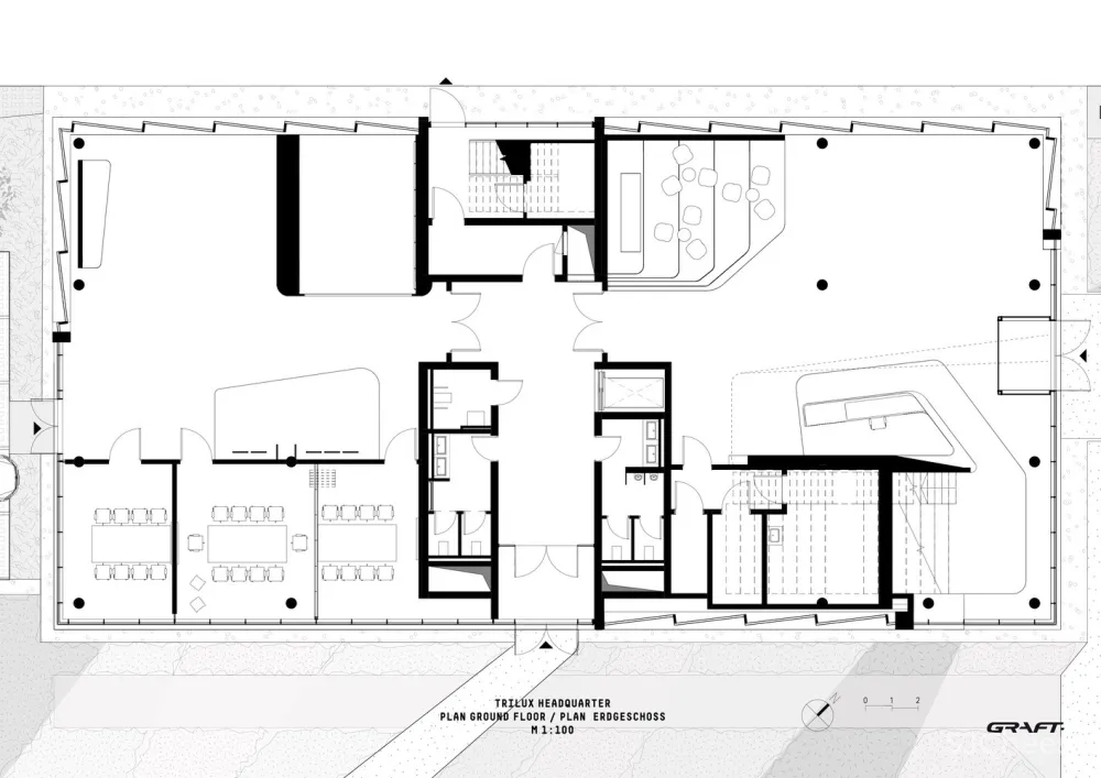
广场的主题继续在建筑的内部延续。宽敞的两层门厅和接待区将公共区域延伸到建筑内,并与一楼的画廊一起,为展览或公共活动提供了宽敞的空间。天花板上是由GRAFT和Trilux共同设计的雕塑式灯,专门为门厅设计的具有建筑和灯具美感的灯。灯具从天花板上折叠出来,在大厅上方轻柔地向下形成弧形。
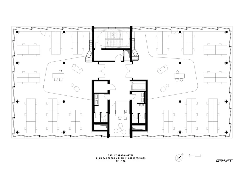
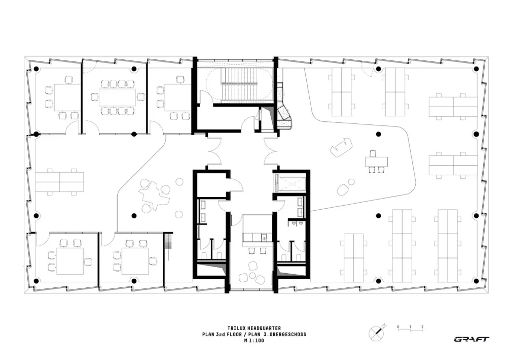
大楼的上层为公司的办公空间和Trilux产品的展览区,因此是公司技术中心的重要组成部分。办公室的上四层是流动的楼层平面,并延伸至整个建筑的程度,仅被三部电梯和卫生间组成的核心筒打断。“智能工作区”包括开放式通信区和封闭式工作区,配备有可在模组中可变组合的混合家具元件。
建筑设计:Graft Architects
项目地址:科隆,德国
主创建筑师:Allison Weiler, Sven Fuchs
项目团队:Marvin Bratke, Sebastian Gernhardt, Sara Gomez, Agata Glubiak, Thomas Grabner, Sasha Krückeberg, Yue Xiao
建筑面积:2794.0 m2
项目年份:2019
摄影师:Trilux 结构设计 Hellmann GmbH
景观建筑师:L I L L + S P A R L A Landschaftsarchitekten
灯光设计:Jack be Nimble
技术设计:Ing.-Ges. Klaus Drücke mbH & Co.KG
防火概念:IDN Brandschutz GbR
地质工程师:gbk Geologisches Büro Dr. Georg Kleinebrinker|
施工管理:GAARKO Architekten
施工单位:Günther Voullié Bauunternehmung GmbH & Co. KG
媒体:LK INTERACTIVE
室内施工:Innenausbau Pott
翻译:熊新宇

