一对来自香港的夫妻, 从事广告片拍摄导演和制片工作达三十年之久, 因工作关系走遍大中国及世界各地, 喜好设计, 喜好佛学, 喜好收藏各式有老灵魂的物件, 空间中充满着老文青生活记忆的用具及摆设。
环境概况|SITE
八角|8 Angles
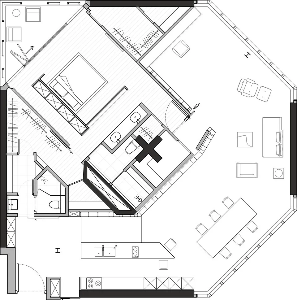
在台北新购三十年老宅,坐南朝北, 东侧临敦化南路, 位于八楼, 是栋有林荫大道景观的特殊形体大楼 – 钻石状八角形建筑物;结构是无梁楼板,中心十字柱,东西南北四面承重墙,东北东南二侧玻璃帷幕墙临林荫大道,西北角是外凸阳台临巷,西南是入口大门。克拉(Carat),色泽(Color),净度(Clarity),切割(Cut)是钻石的鉴定准则,从建筑外形钻石衍生的想法是希望空间可以从钻石4C准则找到灵感;所以藉由不同的雕刻方式在空间展现如钻石不同的切割形式与重量感;透过迴游动线安排产生的行为流动与视觉流动来演绎如钻石色泽的纯净与透澈感。
线3. 环形动线:
生活起居动线,以镀锌钢板如纸般折出的门板是入口第一印象,H型钢立柱界定玄关,从架高磨石地坪转折向上形成的中岛。
概念|CONCEPT
三线|3 Lines
以十字柱为轴心,外扩与之垂直平行墙面是私密空间与开放空间界线,此内侧墙线与建筑外侧承重墙帷幕墙形成宽约四至五米的环形区块的生活起居空间;本案设计概念便由此三条线展开。
线1. 建筑外墙:
以凿墙或浮雕不同雕刻方式创造不同肌理质感,也保留承重墙结构感,是砖石重量的表现;帷幕墙透入的光线与下望的敦南绿荫如同钻石般的纯净透澈;以上两者共同形成包裹空间外皮的表情。
线2. 起居内墙:
10x10mm金属方管以透空雕刻手法,形成不规则直横向分割结构立于被温润桦木板包覆的起居内墙前,上方架着层板与方盒承载着主人生活的点滴收藏, 从入口延展至修佛区, 是生活起居空间的背景。
空间中另一H型钢与直立式拉帘付予此区弹性-业主手写心经,以阴刻处理露出混凝土定字迹的黑铁墙面与黑铁桌板是环形动线的端景,是男主人沉思修佛的小天地。
生活起居空间可观赏室外绿荫,内部有可品茶、阅读、工作、用餐的大桌与随意坐卧的单椅。藉由以上三条线连结,形成一生活动态的场域,与八角建筑形体产生对话关係,生活的一切行为都有绿色林荫相伴,生活仿佛漂浮在树梢上。
私人空间界定|PRIVATE SPACE
开放区内侧界线的层架从入口延展至修佛区前,刻意脱出一个缝, 是往私密区的入口;从建筑西北角外凸阳台延伸到建筑中心十字柱是主人生活的私密空间;是主人睡眠更衣沐浴的空间,此区透过不同动线让空间产生延伸感;其一,透过可完全敞开的落地窗,连结至可以呼吸的阳台,感受到林荫树梢景色;其二,透过更衣室连结入口区的衣帽间至大门入口处,可让整个室内形成一迴游的动线,让主人在生活中完全感受到建筑原始的八角空间感!



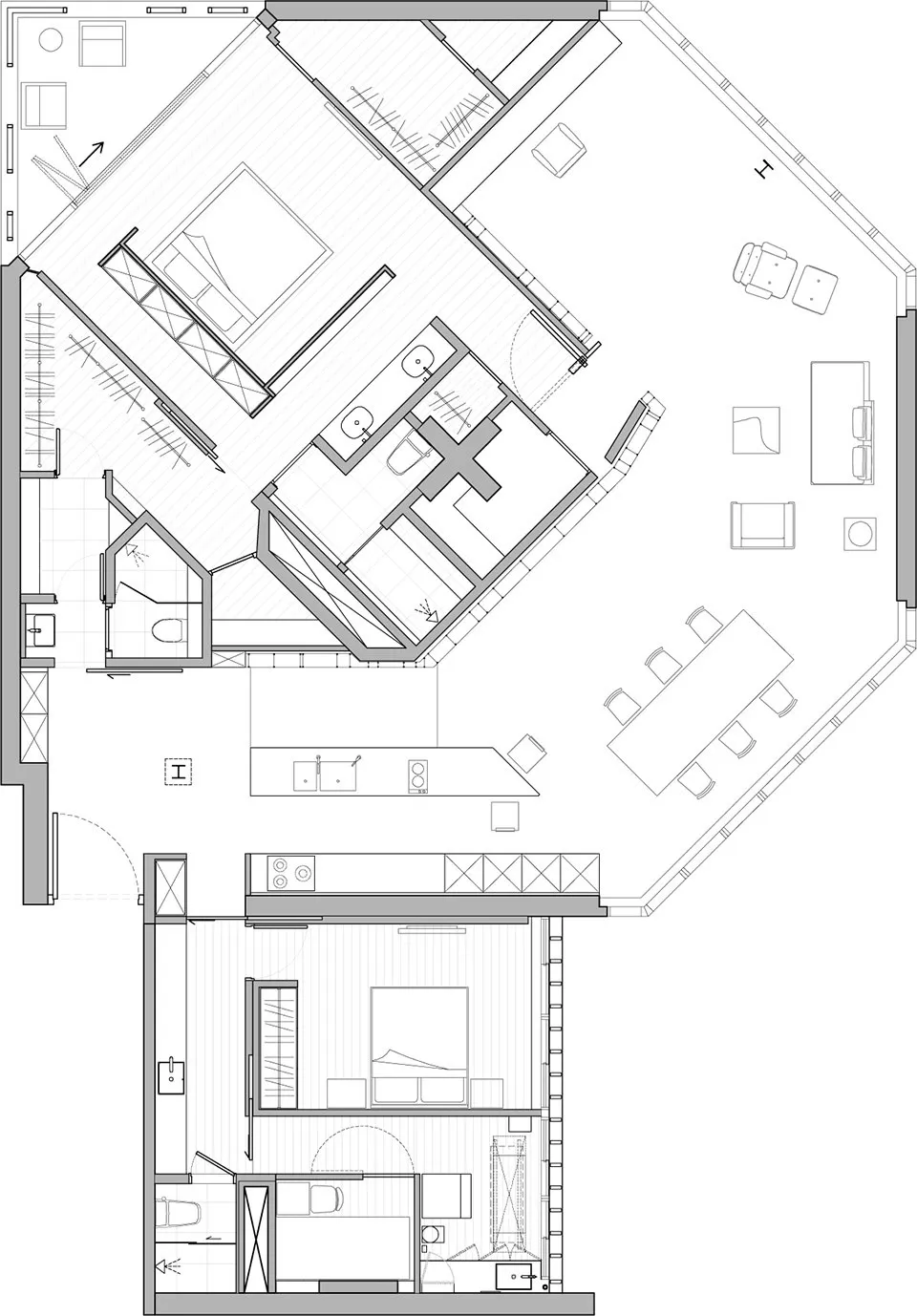
方|1 Square
八角建筑南面承重墙另连结一方形空间,所以设计之初就把此空间独立一方,做为客房及服务空间,藉由入口H型钢侧的拉门开閤与其连接,让主客可各有独立完整的空间及隐私,环形的开放空间是主客卧房的中介空间;起居内墙与建筑外墙的双轴线之间,顺应而生一抹弧线般的生活轨迹,三道曲线对映跃于窗外的绿荫葱茏,渗出悠悠人文底蕴。


▼一方设计概念
▼平面图
▼私人空间设计概念
▼三线整体设计概念
▼线 3. 以生活的行为流动持续蔓延贯穿整个空间
▼线 2. 以透雕方式制作出一道可留存记忆的墙
▼线 1. 以凿墙,浮雕,视觉穿透组成
▼以视觉流动决定公私领域,以十字柱为轴心,外扩与之垂直平行墙面界定内外
▼最好的景观(treetop)留给主要的生活空间
案名:八角·三线 + 一方
地点:台北市
设计师:何俊宏
设计施工团队:创研空间
使用材质:桦木夹板, 实木皮染色, Cameleo涂料, 帕丽石, 意大利Agglotech水磨石, 黑铁板, H型钢, 金属管, 镀锌板, 烤漆板, 金属网, 石英砖, 海岛型木地板
面积: 220米平方
摄影师:李国民

