普普艺术家Andy Warhol曾说:“在未来,每个人都有成名15分钟的机会。”当今盛行的网红文化下,饮食不再只满足口腹之欲,人们更喜欢于特别的环境中,享受空间与视觉带来的美的享受。
而位于深圳南山区海岸城的「客从何处来」便是极具代表性的网红甜品店,水相设计从15分钟理论出发,把饮食过程定义为展演行为。
入门接待入座、制作甜品、上菜以致于品尝皆是环环相扣的戏剧章节,店内所有人物皆是舞台的一份子,空间是铺陈食境的实验剧场。
360°沉浸式剧场体验,观看与被看的互动。
在社群媒体的使用习性中,人们欲在现实撷取素材化为虚拟平台上引起朋友的关注,获取真实生活的自信与自豪感,「展演」行为模糊了网路活动的边界,真实和虚拟互为倒影。
设计师以Broadway《极限震撼》沉浸式剧场为灵感,进一步解构传统用餐仪式的主客性质,当舞台环绕在身边使戏剧360°上演,观者下一秒可能变为戏剧一部分继而享受被观看的乐趣,颠覆传统舞台上下单向观看之别。
有别于常规餐厅临窗座位最具吸引力的惯性,设计师反将窗的功能拉进室内建筑,开出尺度不一如社群媒体的一幕幕框景,形成格放行为表演的聚光灯,借此突破商场店铺临街的缺点,也创造座位四周皆留走道的灵活空间。
从主厨摆盘、服务生上菜、打扮入时的用餐者入座用餐,每道框内的景皆成戏,立体而写实,实现了社群媒体熟悉的语言,也强化人们取景和预期被观看的双向乐趣。
用餐仪式化的剧场走位,开幕与谢幕
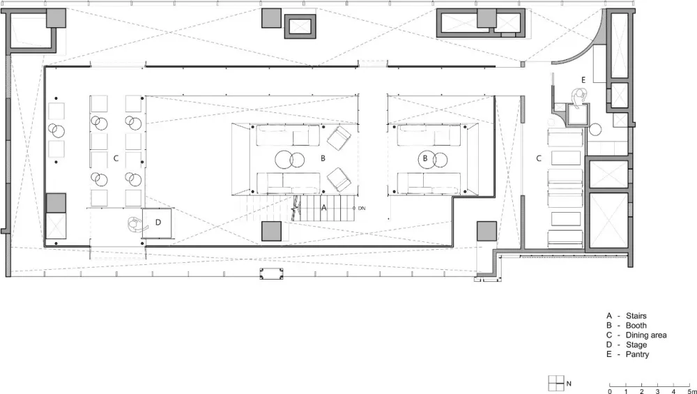
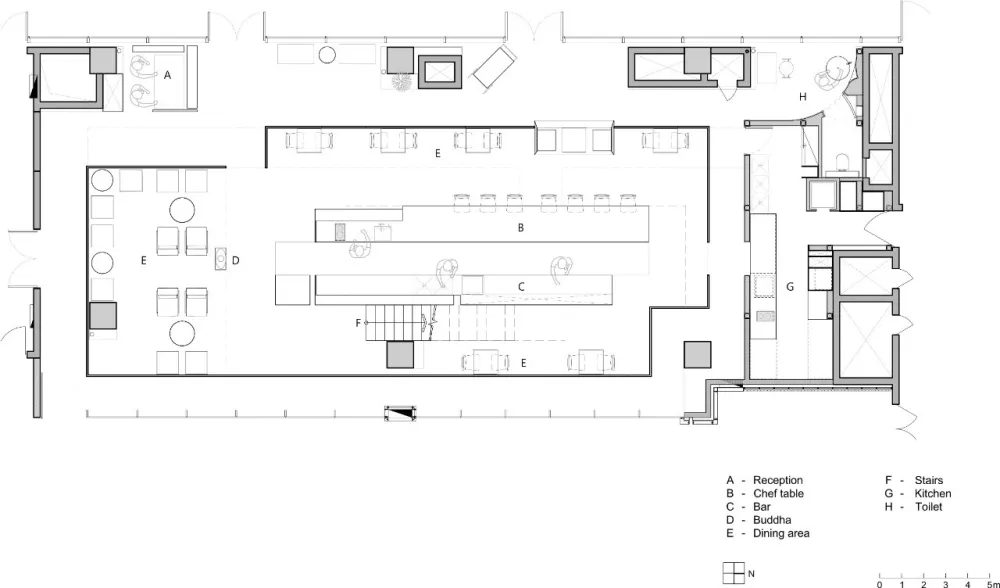
长条形的空间里,一楼以主厨吧台为核心向外环绕出回字廊道,形成多面向剧场舞台的情景,二楼阶梯及临窗的透明空中廊道,再将舞台范围拉展成立体结构,这些廊道就像是走秀伸展台,一连串惯常入座用餐仪式化作剧场走位,空间内一切举止皆赋予表演意涵。
层层廊道与框景簇拥中,状似漂浮在空间中央的巨型硃砂红盒体最是醒目,有别于其他半透明介质,这座极富存在感的VIP室嵌于视觉轴心如一座舞台,也像古典歌剧院主张隐密性的二楼包厢,是高高在上且堂皇神祕,观看与被看的双重意涵在此具象化,呼应网红文化熟悉的一则则动态宣告。
社群媒体的表象,真实与虚拟
室内建筑的表皮于此仿佛如舞台帷幕,设计师选择玻璃、冲孔网、镀锌铁板、尼龙线、不锈钢等,建构透明与半透、朦胧与厚实对比介质。
其中尼龙线排佈出隐晦质地的帷幕最具张力,尝试过不同韧性张力如鱼线、透明PVC管等材质后,设计师采用尼龙线在空间营造出疏密有间的自然线墙,不仅突破人们对墙体重量的印象,亦随角度、观看距离改变屏蔽浓淡而使树影、人影扑朔迷离。
入口廊道袅袅烟雾如梦似幻,与上万条尼龙线聚合成半透明的朦胧屏障,或固定或游离,象征着人际网路的错综复杂,呼应数位时代媒体所呈现的自我与人际面貌:既透明又隐晦,既贴近也疏离。
建立连结的同时也形塑一面墙,矛盾却又相互依存,诉说当代社群关系真实与虚拟版图难以界定的文化情境,一静一动,在任一时间点皆共构独树一帜的画面。
食境创作的表述视角,或静与或动
除了演绎网路时代真实与虚构的关係,设计师也期望这座食境剧场在不同时间轴能传递情绪变化:白昼单纯感受天光下的纯净清丽,尤以入门中心轴线末端的汉白玉石蒋家班佛像,和周遭上演的餐饮仪式形成微妙的相伴平衡,一种不变应万变的淡然,入夜后随着Buddha bar的音乐响起,佛像依旧淡定,其中或静或动,或真实或虚拟,随个人心底酝酿。
在此空间内,老榆木墙的沉、尼龙线屏幕的透,枣红的艳、水泥的雅,框景画面的静与廊道人影婆娑的动,种种对比创造冲突,也成就平衡,使展演行为让整座剧场机制运作不歇,食境秀场,每个人都有机会找到出色的创作视角。
精致甜品上桌时绝美一瞬是真实,生活饮食川流不息的剧也真实,身在剧场的人们正透过自我饮食演绎,将剧场推向虚拟朦胧的世界。
设计图纸▽
△一层平面图
△二层平面图
李智翔 水相设计总监
“设计过程与结果是难以预知的,所以必须尝试所有的可能,唯有持续的绘製,从多种的版本中找到最后的答案。「约略性质」的美感是我们保持的信念,所有的画作线条都不是用尺画出来的,我喜欢的设计不是刻意的工整,如果可以稍微有一点的「自然现条」会更接近我们想表达的空间。”-李智翔
李智翔从事设计迄今十馀年,作品揉和极简与幽默,毕业自纽约普瑞特艺术学院室内设计硕士与丹麦哥本哈根大学建筑研究。带着艺术、人文、哲学的思考,李智翔的学习养成到执业,有著建筑设计般的理性思维,亦有艺术家的叛逆本质,他喜欢在规则的例外对既有秩序重新定义,在不可预知的不准确性下发现惊奇。擅长将空间装置艺术化,喜爱由生活探索灵感的他,藉由大量艺术作品、展览与阅读吸取养分,将深刻感受转化为设计灵光。
项目名称:深圳客从何处来
空间设计:水相设计
设计团队:李智翔、葛祝纬、林其纬、戴佐颖
项目业主:客从何处来/安柯道森餐饮管理有限公司
座落位置:中国 深圳
室内面积:390 m²
空间格局:接待区、主厨桌、调酒吧檯、用餐区、vip区、DJ台、暗厨
完工时间:2019
主要材料:尼龙绳、镀锌钢板、手工漆、硬化水泥、黑檀木纹石、毛丝面不锈钢、老榆木、压克力
项目摄影:李国民


?