由建筑事务所FORMZERO所设计的盆栽屋旨在贯彻一种可持续的生活方式,并且使得住户能够过上自己种菜、自给自足的生活。在本项目中,建筑师通过多种被动设计的策略来构建一座低能耗的、被40余种可食用植被包围着的住宅。 这些植物生长在混凝土的种植箱内,充当着城市景观,值得一提的是,上文提到的混凝土种植箱不仅可以吸收保存雨水,还能够作为灌溉蓄水池。
本项目是为一对喜欢自己种菜的退休夫妇所设计的一座住宅。这座盆栽屋被植物填满,没有一个明确的轮廓界限,它既像一座花园,又像一座农场,还像一座住宅,从而重新定义了热带地区的现代住宅。
这座住宅在外观上拥有一系列阶梯式层叠的混凝土种植箱,每层空间中都种植着40余种可食用的植物,与周围环境中的建筑物形成了强烈的视觉对比。其凹进的正立面为邻里互动提供了额外的公共空间。第一个种植箱越过基地边界,围绕着一棵现有的茉莉花树建造。这个种植箱充当着城市家具,将这对夫妇和邻居的生活联系了起来。
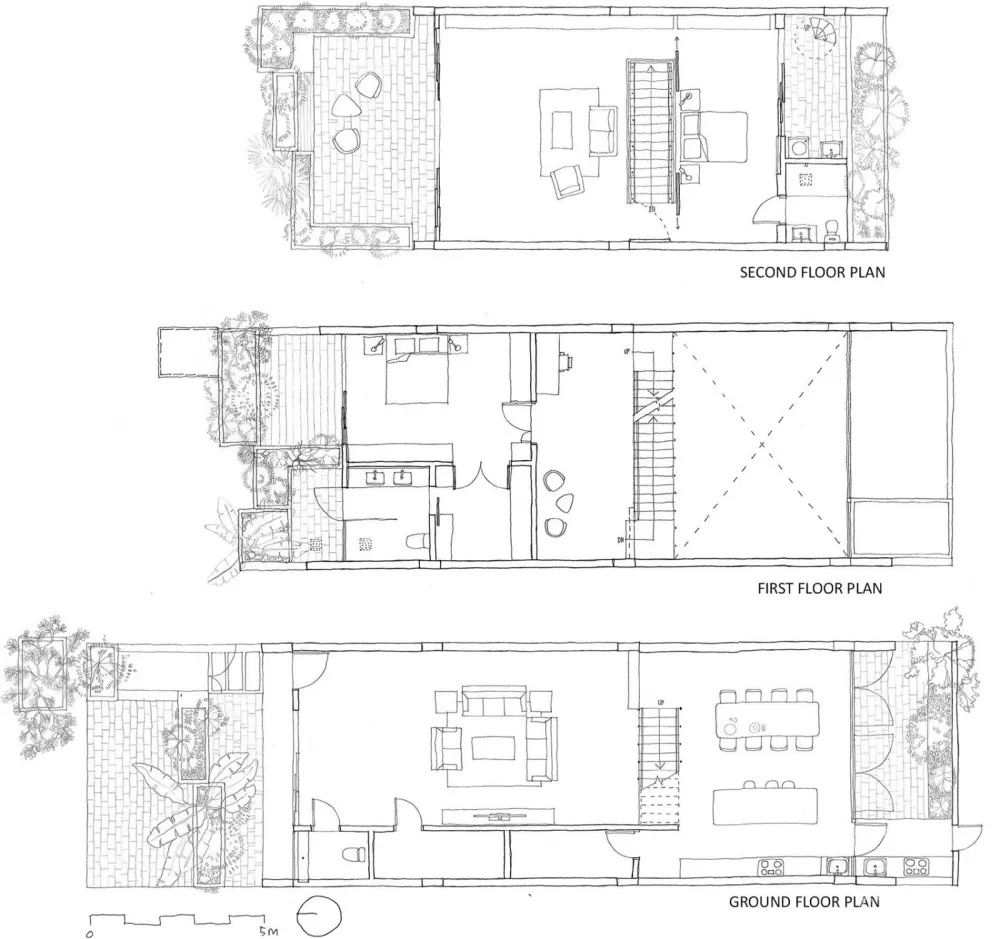
住宅的内部空间则非常热情好客,同时还表现出住户对可持续城市社区生活和自给自足的农业生活的态度。打开住宅的大门,人们可以享受自然采光和对流通风,此外,鉴于住宅首层的前后立面都是玻璃墙体和窗户,人们可以轻而易举地观察到首层空间的全貌。起居室和中央楼梯将住宅划分为前后两部分,后半部分的空间是一个双层通高的厨房和餐厅,设有朝向住宅后方室外种植空间的整面玻璃窗户。
建筑师从当地的热带住宅中汲取设计灵感,使用一种由马来西亚森美兰州(Negeri Sembilan)的Temuan人所生产的劈开的竹管作为混凝土种植箱的模具。这种竹管纹理代表了住宅抽象的有机形式,其上所附的混凝土饰面则是一种可持续、低维护成本的材料,可以很好地适应降雨和城市污染。
盆栽屋是住户生活方式的实质体现。同时,它也是一个知识平台,这对已婚的夫妇可以持续地根据自己的即时喜好来创建灌溉和种植系统。各个种植箱之间定制的灌溉系统相互连接,用以储存和循环利用营养资源和地面内的雨水。此外,这种灌溉系统还能够完全精确地控制每个种植箱内的土壤成分和水分的多少。
本项目为住户和周边的社区提供了一个了解热带地区农业生活的宝贵的体验机会。住宅的生命力将随着这对已婚夫妇生活的进程不断改善、发展和有机地生长。


▼住宅平面图
项目名称:盆栽屋
设计:建筑无型
主创设计:李诚毅
用途:住宅
地点:吉隆坡,马来西亚
施工:Jaya Bintang
摄影:Ameen Deen
短片拍摄:Ameen Deen
文字:王恩荣 & 李诚毅
图纸/摄影:Ameen Deen

