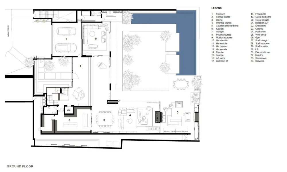
在开普敦绿树成荫的郊区,矗立着一座别具一格的住宅——不仅是现代的玻璃幕墙建筑,更是充满活力的室内设计。对于执行该项目的当地设计工作室ARRCC来说,正是房主对色彩和大量材料的喜爱,指引了他们的创作之旅。
“通过与房主广泛多样的艺术收藏品合作,我们能够创造出空间,允许艺术品和家具之间的动态对话,”ARRCC总监马克·里利(Mark Rielly)说。这一点在珍妮·米尔斯(Jenny Mills)建筑设计的住宅宽敞的大理石入口大厅里立刻就能看出来,明亮的色彩、几何形状的Emmemobili Arlequin C柜,辅之以双色绒面革沙发、棱角地毯和有机形状的侧桌。
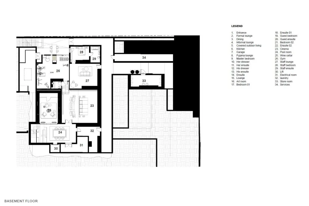
场景设置了一种受欢迎的休息感,这种感觉一直延续到家里的其他地方。“物质性是这个区域的一大特色,”ARRCC设计师昆丁吉尔曼(Quintin Gilman)说,他指的是建筑师对通往地下室的楼梯的设想。
他说:“Crema Marfil大理石、镀黄铜的玻璃栏杆和深色木材都为楼梯井创造了独特的纹理。”在楼梯墙上,激光切割,涂层钢覆层被添加,然后背光,以获得戏剧性的效果。颜色是非正式休息室的重点,深蓝色的地毯奠定了布局,而蓝绿色的靠垫和绿色的陶瓷茶几由Paola Navone为Baxter继续海蓝宝石主题。
Chevron-patterned米索尼织物在冰糕色调覆盖两个土耳其人,打破了块的颜色和添加一个触摸嬉闹的客厅,进一步加大了赌注,专门设计的DJ布斯在黑暗与光明的灰色色调意味着音乐总是生活体验的一部分。
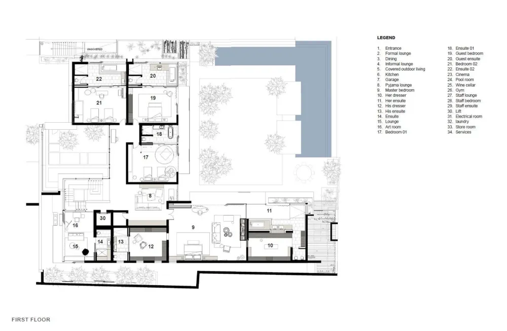
围绕壁炉,定制家具工作室OKHA的设计师亚当·考特(Adam Court)设计的格鲁布扶手椅和倚在我身上的立灯,增加了形式的并列,它们的白色为友好的室内增添了凉爽清爽的元素。彩色气球状的玻璃花瓶从奥卡的装饰配件系列进一步拥抱优雅的发挥多彩的形式。相比之下,相邻的餐厅被缩减了,让材料和引人注目的画作成为主要的吸引力。
Henge设计的法式黑骨橡木餐桌和黄铜边的黑色皮革餐椅由漂流状的胶带灯(胶带灯也是Henge设计的)主持。墙壁上的木镶板增加了这个用餐时间聚集地的深厚的熟悉感。链接到餐厅的厨房,通过滑动口袋木材门,特点是granite-and-wood计数器和选择OKHA吧台用品,包括空间、弗兰克和Neo,由钢铁、木材和皮革,和定制的棕褐色和灰色色调适合厨房的中性色调。
屋顶露台俯瞰草坪林立的游泳池,成为娱乐区的自然延伸。它的壁炉、烧烤架和披萨烤炉为户外活动提供了便利,人们可以在斑驳的阳光照射下享受户外活动。混凝土楼板的冷灰色通过安装在深色炭黑特色墙上的混凝土和天然石材面板块得到了加强。夜晚呈现在周围的辉光中,其中一些喷砂石灰华和预制混凝土功能背光,创造了微妙的忧郁效果。
这种有质感的美感也体现在打褶的扶手椅上,它们的编织图案与点缀在这个空间周围的染过的紫红色、绿松石和灰色坐垫上的螺旋形图案有关。在这个区域和圆形的六人户外餐桌之间创造了一个过渡点,悬挂的沙发在微风中轻轻摆动——提醒人们这是一个享受的家。在需要室内冬眠的日子里,位于地下室的家庭影院会发出召唤。
它配备了大量舒适的灰色躺椅、沙发和日间床,邀请全天的电影盛宴。雪茄屋兼酒窖同样迷人,桶形穹顶的天花板,配以木板形成的混凝土饰面,放大了空间的茧化和超凡脱俗的感觉。由OKHA设计的Stix咖啡桌是桶形天花板在形式和材料上的延伸,它的圆形形状模仿了圆形地毯,在拱形的头顶悬挂下创造了一个焦点。虽然人工照明为这两个房间营造了气氛,但正是阳光带来了正式的loun



位置: 南非
项目年份:2017
摄影师: Greg Cox

