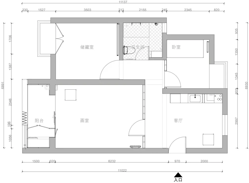
这个项目是受艺术家JNN委托设计的工作室,位于一栋小区内。空间的原始布局是80平米的两室一厅一厨一卫,入口是客厅与厨房,里面南北两个卧室。除了满足基本的睡觉功能之外,客户希望将客厅改成封闭的画室,并将大卧室改成储藏室。
设计的展开围绕着对空间中光与界面的关注。原有的厨房沿窗户布置,被整体拆除后,结合空调,排烟管道,壁暖,冰箱等设备,以一个组合橱柜的形式整体收纳在面向正门的位置,从而将窗户留给了新的客厅空间。
空间中的非承重墙与装饰面层被悉数拆除,尽可能展示其原初结构。大客厅需要被拆分成一个画室与一个小客厅,为了不至于封闭,隔墙采用了阳光板来保持光线的通透。南向阳台的光线对画室是个干扰,用胶合板将阳台包裹成了一个封闭的舱体,这里时而作为画室的延伸。
连接了两个卧室与卫生间的是一条局促的走道,不同透明度与反光度的材料在这里相互反射,渗透,消解着走道空间的封闭。透明门将储藏室与走道连成了整体,走道的破损白墙延伸至储藏室内部,勾勒出空间的轮廓





设计名称:JNN工作室(上海)
设计方:archive
项目设计时间:2018年1月
项目完成时间:2018年11月
主创及设计团队:谌利
项目地址:上海市
建筑面积:80平米
摄影版权:archive

