位于里海沿岸伊朗北部的一座别墅,有着生动的童年记忆,它从不可持续的拆除和重建中被拯救出来,只是因为居民的怀旧和愿望才得以复兴。这是一个私人住宅,位于一个有大门的家庭社区内,周围有3个类似的地块,位于克拉巴德镇。
设计策略符合客户的需求,以充分服务于用户,而不只是满足抽象实体设计的意愿。这条路甚至可以参考世界各地其他完成的模型项目,由客户在旅行或互联网搜索时策划。但这些建筑欲望是根据主导建筑的语言构思出来的,并不是源于建筑的杂耍,而是记忆和欲望的拼贴。另一方面,有两个设计标准:最小化拆除和恢复失去的北方空间感。
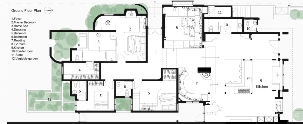
现有的建筑与当前和更广泛的背景脱节。它是一个开发人员对架构的“概念”,没有太多的架构意义。建筑的南北向和细长的朝向被循环流动打断,需要一个夹层和一个悬空的走道作为室内外之间的桥梁,从一个集中的位置,相当私密地,和一个可以看到里海景色的阳台。这个空间类似于“kootam”的乡土空间类型,在温暖的季节,它是一个室外遮阴的睡眠区域。
所有现有的空间都被重新铰接;一个占主导地位的超大厨房取代了通常用于“内向”社交活动的大客厅。由于客户对烹饪的热情,以及现有的叙事方式,这个空间得到了不同寻常的扩展,这表明客人将大部分时间花在厨房柜台上,而不是客厅。
一些表面在精加工过程中故意留下几乎未完成,以便建设者的手可以在视觉上跟踪,避免过度工作的平滑。新暴露的混凝土表面、光滑的效果图和混凝土修复的整合是“好玩的”,以保持实际状态;旧的和新的。有一些拆除,但大部分的碎片是回收和粘合在一起的家具。
电视区域的穹顶天花板是为了表达客户必要的熟悉感,但它被修改为弥漫的声音,与一个完美的穹顶的声学特性相反。
这里有家庭水疗中心,主卧室由透明的边框隔开。大自然是带进来的,相当私密。空间朝向一个小型的私人花园,触感材料和自然元素,如火、水和光,影响了它们在这里的平静存在。
在这个项目中,设计过程的有机性是一种成功的替代建筑实践方式。在这里,直到施工完成,决策才完全结束,这意味着我们回到了现场的画板(电脑),重新检查某些设计决策,并在整个过程中根据需要重新绘制草图。关键的一点是,客户在那里,并且在每一步都与架构师一起充分探索设计选项。







位置:伊朗
名称:Ravan[pak] Villa
室内设计师:Ali Ravanpak
面积: 450.0 m2
年份:2016
摄影:Mohammad Hassan Ettefagh, Hamed Farhangi

