设计结合品牌定位,打造「时尚,精致,专业」的品牌空间体验。通过光与空间进行“光合作用”,营造LE CYGNE奢美曼妙的空间意境,进入真我世界,唤醒源源不绝的活力和女性魅力。
入口通过创造景深将视觉导入到空间,入口产品展示大厅,大面积白色与弧形门洞相叠加,穿梭进入旋转光圈的弧形门洞,仿佛物质经过时间和空间的流转而产生内在变化,犹如置身于一条通往美与蜕变的“时光隧道”, 留给人无限的想象与神秘感。空间以近乎纯白色调扩容视觉,通过光影、材料、线条的相互关联,体现多样变化,同时将优雅和专业的双重属性赋予LE CYGNE。
入口门洞的两侧,则为一对一的咨询区,通过流畅的线条将两个空间相连接,体现一种柔美的张力。如摇滚音乐与爵士乐碰撞出了火花,在喧闹的朋克之下,有着唯美之感。
隧道尽头的幻彩玻璃,折射出曼妙的光影。随着光影进入纯净的大厅空间,白色的水磨石纯粹而极致。沙发背后的拱形书架,延续弧线的设计元素,倾斜的造型,打破空间平衡,体现摇滚精神。美容包间内则通过静谧的灯光设计,营造安静柔美的空间氛围,给予内心一份平静,一刻的冥想,去寻找最真实的自我!
LE CYGNE 天鹅童话,你可以在这里探寻真我,总有一个理由,喜欢的音乐,喜欢的生活方式,一杯咖啡,一本书籍,一份快乐,一份自信与美丽……


▼轴测图
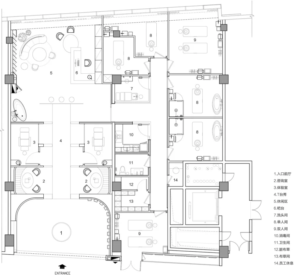
▼平面图
项目名称:LE CYGNE天鹅童话肌肤形体管理中心
设计方:YAO DESIGN 耀设计
项目设计 & 完成年份:2019年1月
主创设计师:朱寿耀
设计团队:陈烽&陈晔
软装团队:梁玲娜&陈烽
项目地址:杭州省江干区平安金融中心2楼
建筑面积:280平方米
摄影版权:李迪

