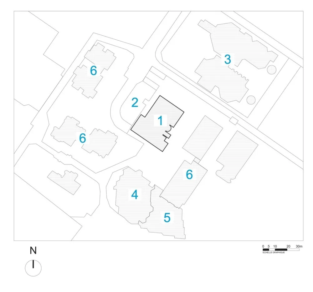
新埃朗库尔音乐学校已经在圣马雷斯社区的前基督教中心住下,圣昆廷·恩·伊夫林新城的创建中心之一。该建筑最初是一个敬拜的房子,简单,没有装饰和内向的建设,因为它的功能需要和平与安静。Philippe Deslandes在1974年到1977年间建造了它,希望它能体现简单、模块化和匿名性的特性。
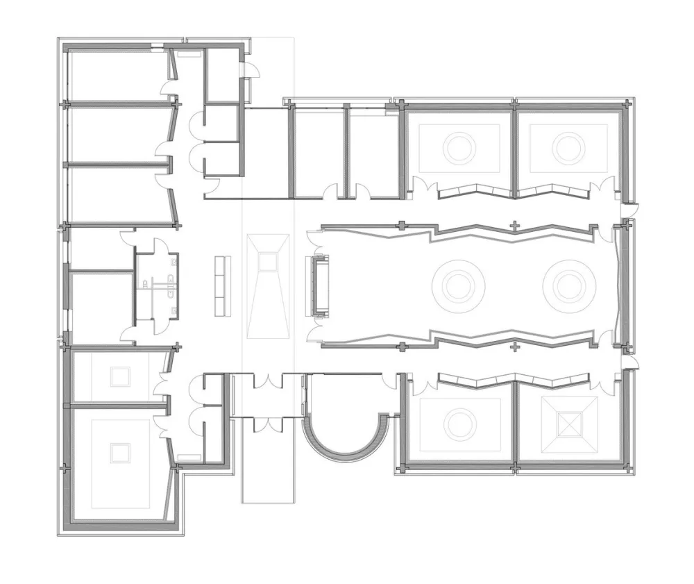
混凝土和砖是贯穿整个学校的两种材料。建筑的中心位置和开放的位置使得它很容易在视觉上定位到社区,这有助于它适应音乐学校的新职业,既是文化生活的焦点,也是一个温暖和邀请人的聚会场所。
在改造项目中使用砖使得保留建筑原有的建筑原则和它的内向和私人性质成为可能。
建筑师选择完全用新砖无缝地覆盖所有立面,将窗户前的墙壁视为“moucharabiehs”,通过包裹体的完整材料统一来平衡体量的复杂性。手工成型的砖是用无砂浆技术铺设的。颜色的细微差别使这连续的皮肤充满活力。
到了晚上,闪烁的室内照明系统表达了这个学习和实践机构的柔软和宁静。第五立面对周围所有更高的公寓住宅可见,被视为深蓝色的合成草坪,唤起了蓝色的音符,立即表明了该设施的身份,并在滨海空地的中心形成了一片颜色。
采光井以柔和的自然光充满室内,平衡了穿透moucharabiehs的自然光,赋予每个房间更大的私密性。建筑师试图通过对室内空间的和谐、明亮和吸引人的处理,将建筑的简朴外观转变为更吸引年轻人的东西。他们通过关注循环的流动性、体量的质量、光线和材料来实现这一点,从而将建筑变成一个和谐的快乐和满足的空间。
克制和内在性是这个改造项目的特点,它不寻求突出,而是轻轻地恢复它在城市中心的位置,赋予它更大和持久的尊严,点燃欲望和好奇心,鼓励人们进入。





位置:埃兰科特,法国
面积:900.0 m2
年份:2018
摄影师:Luc Boegly

