Haworth Tompkins事务所为英国剑桥的佩斯学校打造了全新的Peter Hall表演艺术中心。这是一座自然通风的建筑,包含一座可容纳400人的礼堂、一间灵活的大厅空间以及完善的后台设施。
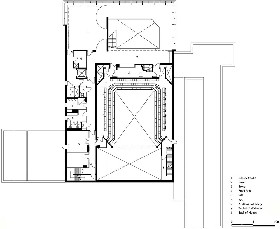
佩斯学校的音乐和戏剧活动十分广泛,既有的设施已经不能满足日渐增长的需要。表演艺术中心以校友Peter Hall(1941-1949年在校)的名字命名,他在国家剧院担任主管,并与Haworth Tompkins事务所有着长期的合作。新建成的艺术中心包含一座可容纳400人的礼堂、一座带有大型排练室和教学室的灵活大厅,一个展览空间,全套教室,以及更衣室、工作坊等一系列完善的后台辅助设施。
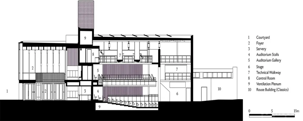
三层高的、环布着走廊的大厅覆盖以“斜肋构架”的木制屋顶,带来自然光照和俯瞰景观庭院的视野,将成为整个校园的新焦点。在平常的教学日,大厅将作为学生和工作人员的咖啡馆使用,在活动期间则成为汇集观众的礼堂门厅。高耸而透明的空间横跨了整个庭院的宽度,为建筑带来双向的视野,模糊了室内与室外的界限。
大厅中的艺术挂毯是由格拉斯哥艺术家Victoria Morton特别为该项目设计的,她与学生共同合作,探索了学校的档案和历史。该作品是在爱丁堡的Dovecot Studios被制作出来。它被悬挂在大厅的显眼位置,从入口和上方的几个楼层都可以清楚地看到。
礼堂是一个有着细腻木质肌理的深色空间,与浅色调的门厅形成鲜明的对比,同时为舞蹈、戏剧、集会、音乐和演讲活动提供了优雅而适宜的场地。观众席被设置在舞台周围,在必要时也可调整为传统式的布局。礼堂座椅采用了自然色系的羊毛软垫,与校园所在的景观暗中形成呼应。完备的后台设施能够让学生们体验到表演和制作节目的方方面面,并得到当地蓬勃发展的剧团的助益。
针对为校园所做的剧院设计,建筑团队采用了高度耐用,且能够随着时间的推移显出质感的材料,例如粗糙而温暖的手工砖、预制混凝土和木结构等。
全方位的自然通风、充足的太阳光照和用于制热和制冷的大型地源热泵共同确保了最低的能源消耗。其他的可持续元素还包括古典文学院的绿色屋顶以及礼堂顶部的光伏板。礼堂和画廊工作室通过屋顶上细长的送风口实现自然通风。大厅、工作室和教室的高窗还可以根据天气和室外气温的变化自动开启和关闭。



▼横剖面图
▼二层平面图
▼纵剖面图
▼首层平面图
▼场地平面图
地址:剑桥希尔斯路,CB2 8QF
项目开工日期:2016年2月
竣工日期:2018年3月
建筑成本:960万英镑
建筑面积:2340m2
设计团队:霍沃思汤普金斯
杰西卡·戴利,西蒙·里基茨,史蒂夫·汤普金斯,罗杰·沃茨,汤姆·威尔逊

