本项目由BOSI和JIMEI GROUP领导的设计团队合作完成,VR之星·虚拟现实主题乐园属于室内娱乐空间,是全国最大即VR室内娱乐和展览展示与一体的综合空间。在这个不可逆的时代潮流中,用设计的思维解读科技、艺术和文化,让“科技·趋势·未来·生活”呈现不一样的视角。
“一年以前,我们就在思考如何为这个星球带来一座绝无仅有、奇妙而有趣的室内乐园。我们试图使用VR在时间和空间的穿越能力,并且结合光电和建筑空间,构造了一座深度沉浸感的奇幻世界。”
入口|Entrance
人是衡量一切的尺度。设计师将空间节奏感作为空间设计的重要环节,利用空间尺度、光线、材质变化,为观众营造出不同的感官体验。大厅作为人群密集的流通空间,也作为室内体验的门户,是设计的重要节点,设计师将服务前台以“岛”的形式安置于大厅中央,形状如未来飞船,飞船中心设置屏幕,向过往游客传达服务信息,形式充满未来感。整体空间以白蓝灰为主色调,材质简单纯粹,细腻而富有变化,是对科技、未来、设计的解读。
过渡区|Transition Zone
过渡区是连接大厅与内部空间的节点,设计师将空间的尺度缩小,力求创造一种包裹感,区别于前后两个空间,同时希望体验者穿过这个“时空隧道”,感到“豁然开朗”。
中庭|Atrium
中庭区域是本次设计的重中之重,设计师将此空间定位为整个体验乐园的信息集成中心,并先后做出几版内容承载方案,是项目的点睛之笔。
VR娱乐区|VR entertainment area
VR STAR PARK 并不是单纯意义上的游乐园,也区别于传统的展示空间,更不是一个设备综合展会,它要求多领域、跨专业的融合,而且,在业界没有成功案例可寻。每台设备都有自己完整独特的主题,是单独存在的个体,设计师要做的恰恰是将这些风格迥异、主题多样的设备集合在一起,以理性的空间逻辑,调动观众感性的情绪节奏,从而达到空间与体验的高度融合。
原场地层高较低,狭窄、压抑,柱网结构复杂且不易拆除。设计师与结构师在进行大量测算模拟后,将三层楼板打通,巧妙利用现场柱位,创造出现令人惊叹的视觉空间感受。对于整体空间来讲,既可以体现设备的科技之美,观众又能够通过明确的线条,体验到来自设计工作者的力量。
中庭贯穿三层空间,如同未来空间基站,以通电玻璃为主要媒介,除了对整个空间的科技氛围进行渲染外,还承载南昌文化虚拟印象展现、场内游乐竞赛实时排名榜单宣告,以及在项目正式对外运营后,将对观众头像进行采集融合展示,且通过定位捕捉技术,每一位到达中庭的体验者,都可与之产生互动。
中庭贯穿三层空间,如同未来空间基站,以通电玻璃为主要媒介,除了对整个空间的科技氛围进行渲染外,还承载南昌文化虚拟印象展现、场内游乐竞赛实时排名榜单宣告,以及在项目正式对外运营后,将对观众头像进行采集融合展示,且通过定位捕捉技术,每一位到达中庭的体验者,都可与之产生互动。
▼剖面图
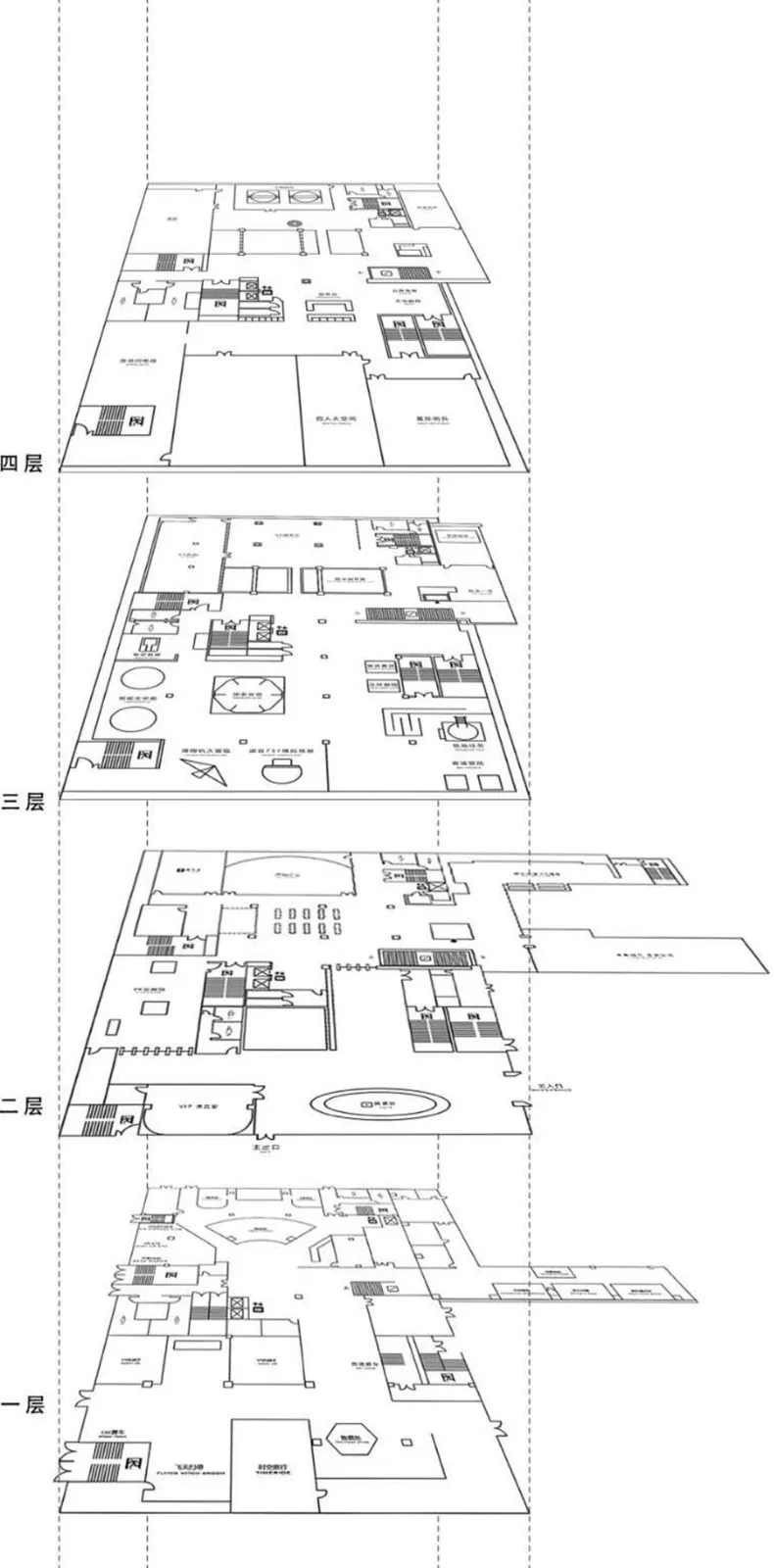
▼平面图
▼主题设定原则
▼结构分析
项目名称:VR之星·虚拟现实主题乐园
建筑公司:博斯空间(北京)工程设计有限公司
设计周期:2018.3—2018.6
建造周期:2018.7—2018.10
主创及设计团队:方伦磊(艺术总监),肖烨(创意总监),赵同庆(设计总监),石雅文(设计总监)
项目地址:江西省南昌市红谷滩新区九龙湖片区南昌VR产业基地中心2号裙楼
建筑面积:10600平方米
摄影版权:博斯空间(北京)工程设计有限公司
合作方:广东省集美设计工程有限公司
客户:南昌虚拟现实主题乐园有限公司
品牌:GRG,冲孔铝板,铝合金灯带,烤漆玻璃,通电玻璃

