ETC兴趣屋位于一个住宅区,占地150平方米,为满足业主孩子们想要私人篮球场的愿望而建。三个孩子爱好打篮球,他们的朋友经常聚在球场共度时光。
业主选中 Rakta Studio 建筑公司来设计一座“兴趣屋”,它将日本风格的设计理念与 Rakta Studio 自身特色的热带简约风格相结合。
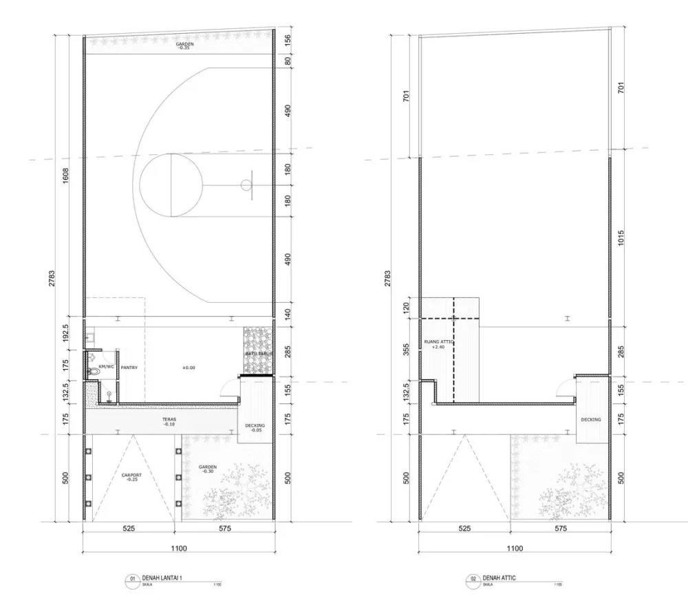
ETC兴趣屋拥有以下的空间功能:客厅,厨房,卫生间和车库。它还拥有一个种满青草和观赏植物的花园,为使用者提供了清爽的空气和舒适的感受。观赏植物盆栽也被放置在建筑的一侧,面对着作为分隔墙的铁格栅。
内墙面装饰有篮球比赛的黑色剪影图像,表明了建筑作为篮球场地的功能。这面墙也紧邻着一个简单的现代厨房。
在下午晚些时候,优美的光线的投射在玄关的地面上,散发出微妙的感觉,也美化了空间。房间的一角有一个竹制吊椅,可以成为轻松观看篮球比赛的位置或者休息的场所。


ETC 兴趣屋伫立在其他的住宅之间,是其中最独特的一座,总是吸引着路人的注意
建筑师 Rakta Studio
地址 Bandung, Bandung City, West Java, 印度尼西亚
类别 娱乐训练场馆
主创建筑师 Vidor Saputro, Ronald Adikusumo
建筑面积 150.0 平方米
项目年份 2018
摄影师 KIE

