项目位于天津市西青区中北镇侯台,建筑面积约8000㎡。原有建筑是一座闲置多年的5层钢筋混凝土框架结构办公楼,项目要求将其改造为一座既具现代感又不失温馨雅致的养老护理中心。办公建筑改造为养老建筑,是老龄化形势日益严峻下城市更新中的一个缩影。但是养老改造,变更的不仅仅是用地性质,更大的挑战在于不同性质建筑类型内在的矛盾性。
在本案中,这种功能间的矛盾尤为明显:由于项目原址是办公楼,无论是楼体的立面开窗形式、内部柱网的结构序列,还是采光通风性能等诸多方面,无一满足养老项目的建造标准
而设计切入点,恰恰源自这种复杂的矛盾;改造的过程,则是通过巧妙合理的设计,化解矛盾优化整体品质的过程。
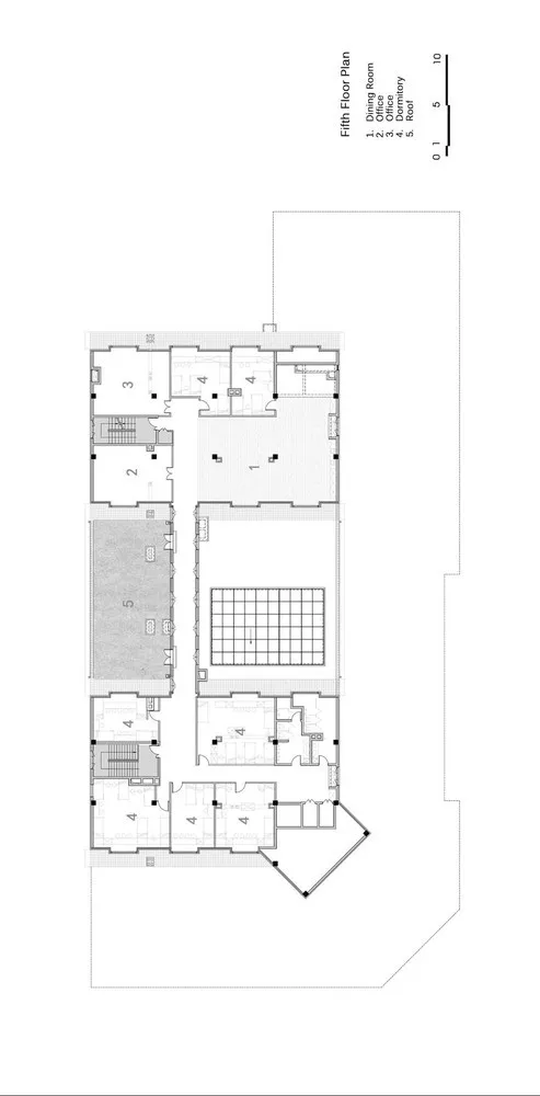
首要应对的是原有柱网造成的空间划分问题。经多轮空间分配比例计算后,设计师逐步优化了平面布置策略,形成了“从融入到消失”的解决方案。最终,原有的96根柱子大部分被分配到卧室以外的空间里,巧妙地融入了洗手间及公共区域中。有效的平面策略,避免了对主体结构的过度调整,更提升了空间整体利用效率,让老人起居环境更为宽敞舒适和便利。
为打造最优质的居室品质,设计师在协调平面的基础上,对老人居室进行了系统的整体设计,充分适应后续建造、使用的需求。与此同时,老人居室环状布置,充分最优采光条件;后勤配套空间集中设置于采光不利但邻近居室的地方,减少流线交叉,保证服务效率.
空间配置合理高效,是养老设计的基本要求;而空间体验与品质,则是考量养老设计的核心。为营造更佳的采光环境和让人更放松的公共空间,设计师将采光较差的3、4、5层中间区域全部垂直打通,形成一个非常宽阔且造型柔和的中庭。
为营造更具亲和力和归属感的空间氛围,设计师在通高中庭内置入了五大道最典型的文化元素“院”空间。“院”的置入,将天津地域文化、建筑改造特质与最核心的“人”串接在了一起,塑造了独具亲切感与包容性的空间属性。设计师倾心打造的“院”空间,对于提升空间品质的作用不言而喻。“院”因承载了这座城市老人们曾经的回忆,而为空间注入了场景感与故事性;加之空间高耸,呈现垂直性与上升感,塑造了空间的雕塑感和纪念性。
中庭内“树”的设置则调和了过分硬朗的雕塑感,既形成了场景化气质,也让空间有了向心感。由此,阅读区,休息区,就餐区,棋牌室等一系列公共空间围绕树渐次展开,共同构成充满温馨与舒适的社区客厅空间。“秋树”的气质又统领着整个内部色彩与材质系统,通过大量运用木色、暖色系,营造了温和的空间性格,并结合全部采用有倒圆角设计的暖色实木家具,让整个空间温馨雅致柔和动人,流露出建筑师在整个设计环节浓厚细腻的人文关怀。
除运用合宜的色系色调和充足的阳光营造出美好视觉感受外,设计师为了更切合适老化需求,还引入了全面、丰富的细节设计。2.1米宽走廊便于老人双向通过,配防滑地胶、结构线条柔和处理、所有家具倒圆角等适老化细节处理保证老人行走安全。
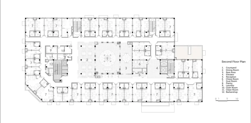
以象牙白搭配温暖橘为主色调的室内设计,以绿色的清新活跃的色彩元素,与窗外温暖的阳光交相呼应,高贵中有着优雅,低调里透着温馨。养老中心使用的主体为老人和服务人员,设计师除了为前者营造良好的空间品质外,亦需让后者的照护效率均得以保证。为此,设计师围绕中庭设置公共服务空间,其与更为私密老人用房区的过渡空间则设置休息区域及服务台,满足过渡区;服务台则位于T型护理动线的连接中心点,保证服务视觉及护理半径。
由内而外的全过程设计和精细的空间内涵推敲,让怡园既呈现出高品质的总体氛围也展示了感人的丰富细节;从室内到室外、由空间到时间,无不体现设计以人为本的精神内核。优秀的养老建筑,需要设计师全程用心营造。我们期待,在我国老龄化持续加深的城市更新中,能有更多优秀作品涌现。



建筑师 上海天华建筑设计
地址 侯台保山西道与碧欣路交口, 中北镇, 西青区, 天津市, 中国
类别 更新项目
主创建筑师 闫锋;方淳;赵亚娇;许春臣;蔡俊;钱丹;刘蒙;耿蓝天;翟博泓;申弘毅
建筑面积 8000.0 平方米
项目年份 2018
摄影师 张辉


很不错的案例,谢谢分享