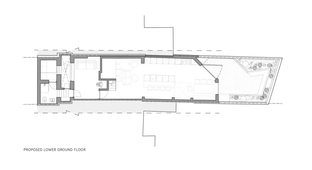
这是Fraher建筑事务所与他们的室内装修公司Findlay Fraher合作的第一个项目。他们共同将项目从初始推进到竣工完成,并成为设计和建造行业的设计标杆。Fraher事务所对原有建筑的各方面进行了重新分析来规划最有效的空间使用方式,并在各个楼层打造出富有意义的场所。客户希望对整栋建筑进行完全翻修,并加入一个下沉地面层及对阁楼进行扩建。
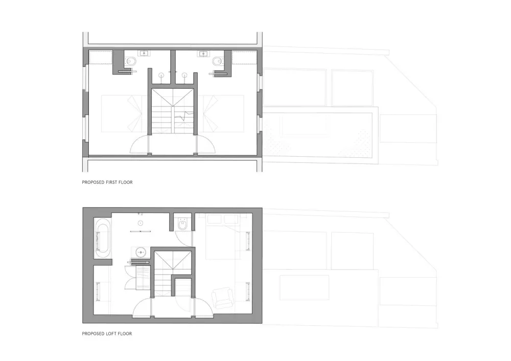
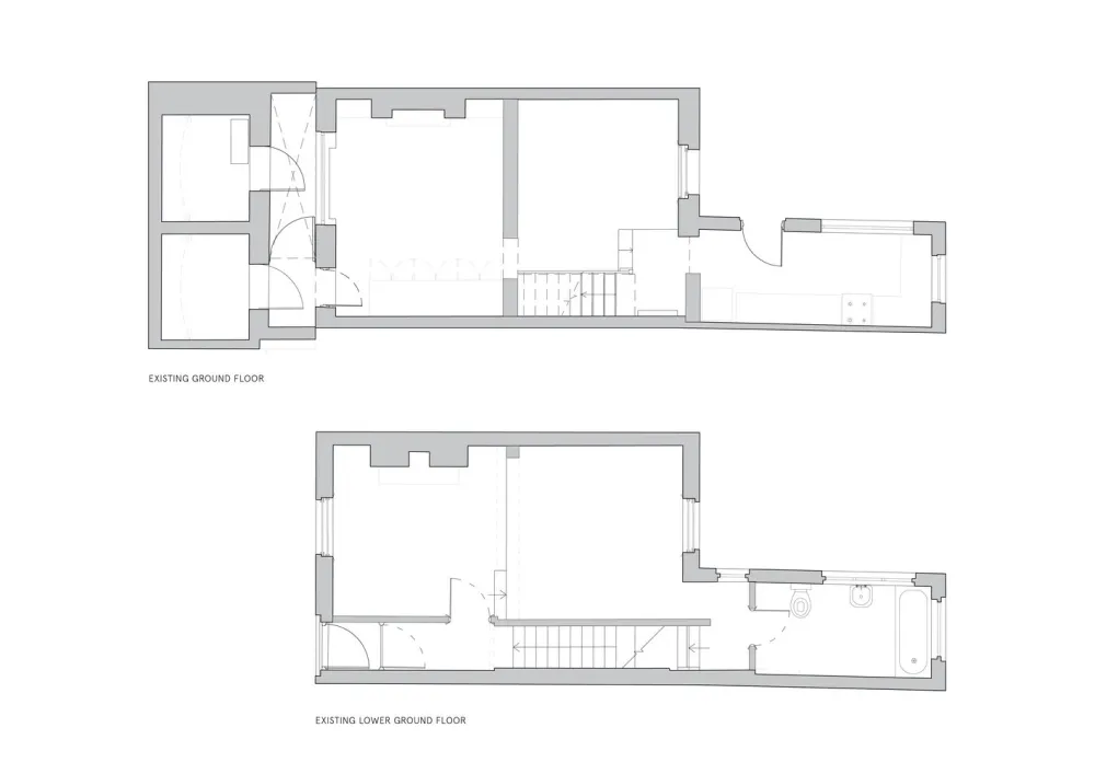
原有楼梯的位置给建筑内部的竖向流线设计带来了挑战。组合下沉地面层后的首层与其他楼层失去了连接。这些现状给了建筑师尝试重新定位楼梯间的机会,来让它成为家具的特色部分,并贯穿建筑的中部。这还使平面空间可以开放来打造出开阔有活力的生活区。楼梯延伸穿过建筑的每个楼层,打造出一个集约流动空间,同时保有观看每个生活区的视野。
原有的储煤砖拱房被打开,并将原有地面下沉,打造出一个浸没式淋浴浴室和为整栋房屋服务的功能空间。建筑师抓紧每个机会将室内空间最大化的同时将对花园的侵占降到最小。Fraher建筑事务所为这个项目提供了全套RIBA 1-7建筑服务。



建筑师 Fraher Architects
地址 伦敦, 英国
类别 别墅室内
主创建筑师 Joe Fraher, Lizzie Fraher
项目年份 2018
摄影师 Adam Scott

