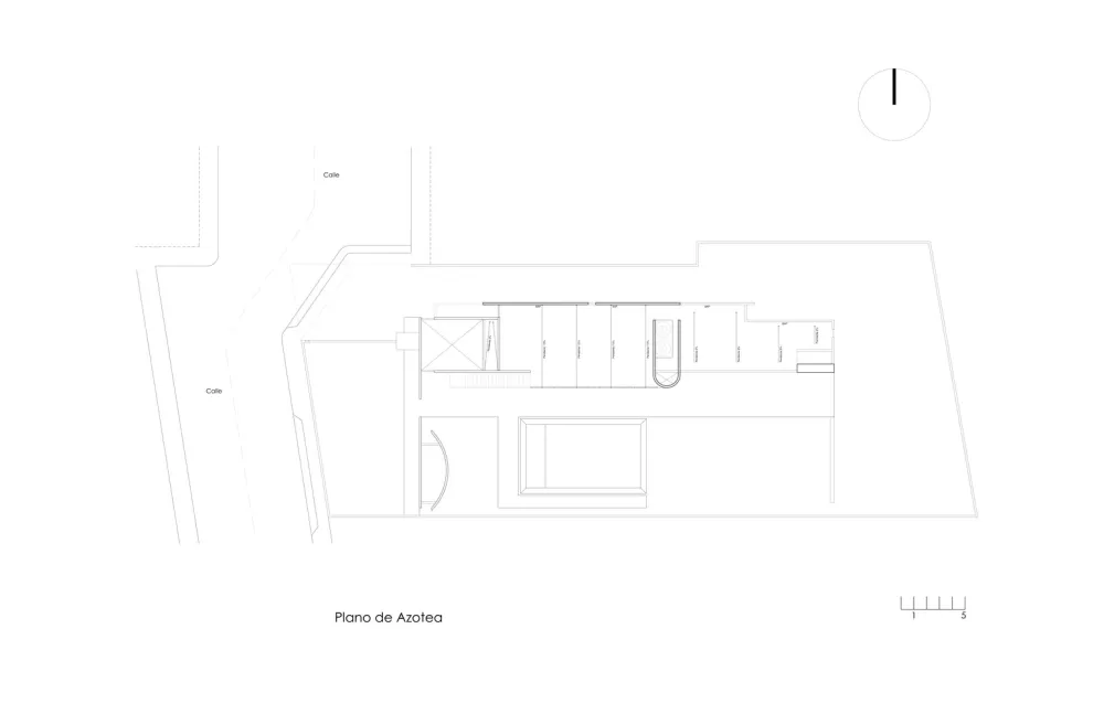
这个住宅的主要想法是利用场地的长期感觉,创造一个开放的住宅。这样,我们就可以以不同的方式穿过它,利用所有的空间,享受不同的视角和光影游戏。
在地块的南部边界建造了一个相当大的水池,因此决定将公共区域的住宅贯穿整个前世。紧随其后的空间是房间,这些房间被一个圆柱形的体块分隔开,这个体块将建筑一分为二,在公共空间和私人空间之间创造了一个漫无边际的边界。
这所房子的规划是基本的,并且增加了165平方米的建筑面积。梁在整个房屋中以相同的方向和相同的楼板水平支撑,方便了施工的成本和时间。
白色是决定用来作为房子的最后装饰的颜色,只有在特定的体量中使用了楚克姆和红土作为对比元素和视觉上的最后点缀。


位置:墨西哥
设计团队:Julio Enrique Garrido Lizarraga, Alejandro Torre Espinosa
面积:165.0 m2
摄影师:Diego Ayuso (CinemaHD)

