2017年9月墨西哥地震后,来自国内外的多个建筑团队、设计师以及合作者加入到了由PienZa Sostenible支持发起的名为“ReConstruir México”的项目之中,旨在通过合作实现有意识的、可持续的住宅重建。悲剧发生17个月之后,PienZa Sostenible 在众多捐助者、机构以及志愿人员的支持下,已在6个州建造了150多个重建住宅项目,来改善受灾社区居民的生活质量。这场灾害不仅对这些社区遗产造成了严重影响,还引发了严重的社会脆弱性与物质剥夺等情况。
自2017年8月至今,在墨西哥的 Ocuilan共有16套住房实现交付。该项目由#LoveArmyMéxico# 发动,并得到了Fundación Origen等组织的支持,由40多个建筑团队合作设计完成了50套独栋住宅以及社区中心等。
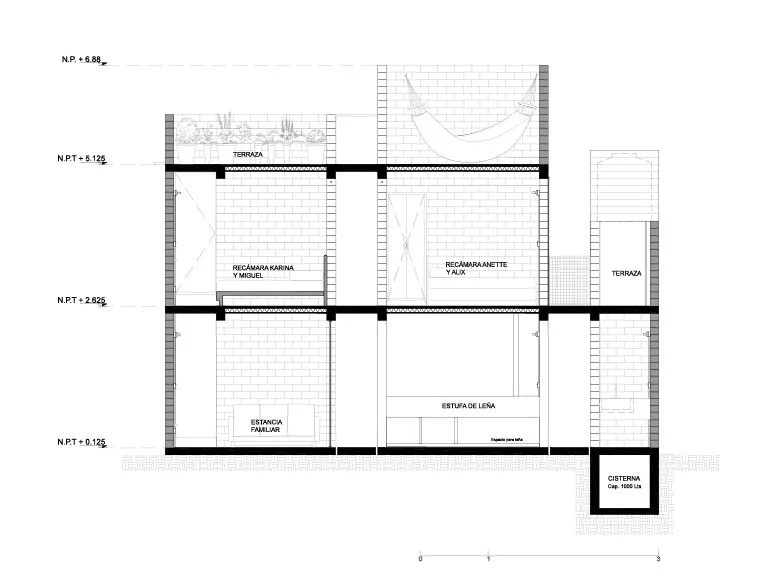
在这样的背景下,应Fundación PienZa Sostenible 以及 Love Army México等组织的要求,我们在村镇 Ocuilán de Arteaga 为 Guzmán 一家设计了一套住宅,家族总用地面积为4305ft²(约400㎡)。过去的房屋被划分为了五个面积相等的区域,兄弟姐妹各占有一个。其中的Guzmán夫妇在他们807ft²(约75㎡)的地块内最初有一座不太结实的木结构建筑,长宽约16 x 13 英尺,由金属板覆盖,没有任何的隔离作用,并带有一个附加厕所,内为裸露的土地。Karina与丈夫Miguel Ángel以及他们的一双儿女就住在这座房子里。
我们同Guzmán一家讨论了新家的布局,想知道他们的需求。他们要求有两个房间,一个小客厅以及一个最好带有屋顶的室外燃木炉。
如果我们当时设计了一栋一层高的房屋(约48㎡),那么他们将没有可供活动的开放空间。因此,我们决定建造一座两层高的房屋,将各层平面缩小到263ft²(约25㎡),并在场地内留出能够种植树木的空间,进而在屋顶设置露台空间作为家人的活动空间,在那里他们可以欣赏周边城镇和附近的田野景致,以及周围的火山景观。
此外,在讨论中还引出了与户外区域相关的话题:Karina在户外厨房做饭时希望可以看到在野外玩耍的孩子们。因此我们将厨房作为布局的中心,在那里可以看到周围的一切。这样,当Karina做饭时,她可以看到田野,看到孩子们在玩耍,还可以与家人和邻居进行互动。
原先的附加厕所为所有家庭共用。我们试图尊重这一用途,将厕所是作为一个独立设施进行建造,形成一个带有完整浴室的私密空间。
我们用混凝土做为基础,用抛光水泥进行地面处理,并对墙体的钢筋混凝土板安装垂直加固部件。每一堵墙的压缩土砖均为现场制作,门窗则以当地的松木为原材料。我们希望设计能够完全适应Guzmán 家族的需求,为他们建造一个全新的、更有安全感的家,以提供更好的居住品质。


建筑师 Francisco Pardo Arquitecto
地址 Ocuilan de Arteaga, 墨西哥
类别 独立住宅
主创建筑师 Francisco Pardo
面积 49.0 m2
项目年份 2018
摄影师 Jaime Navarro, Pablo Astorga, Fernanda Olivares

