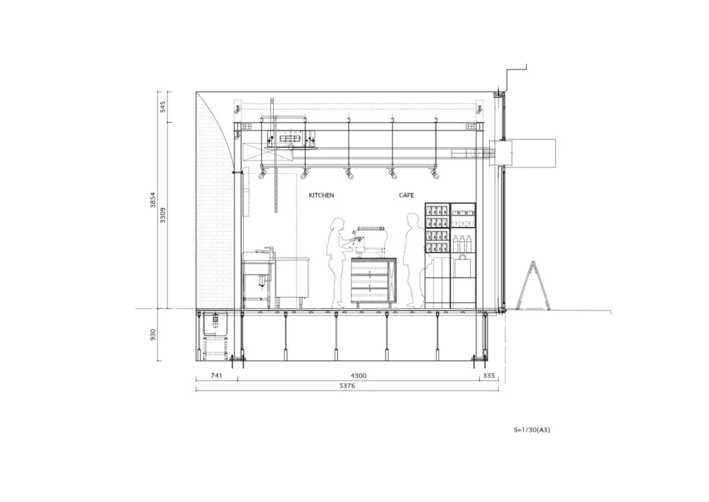
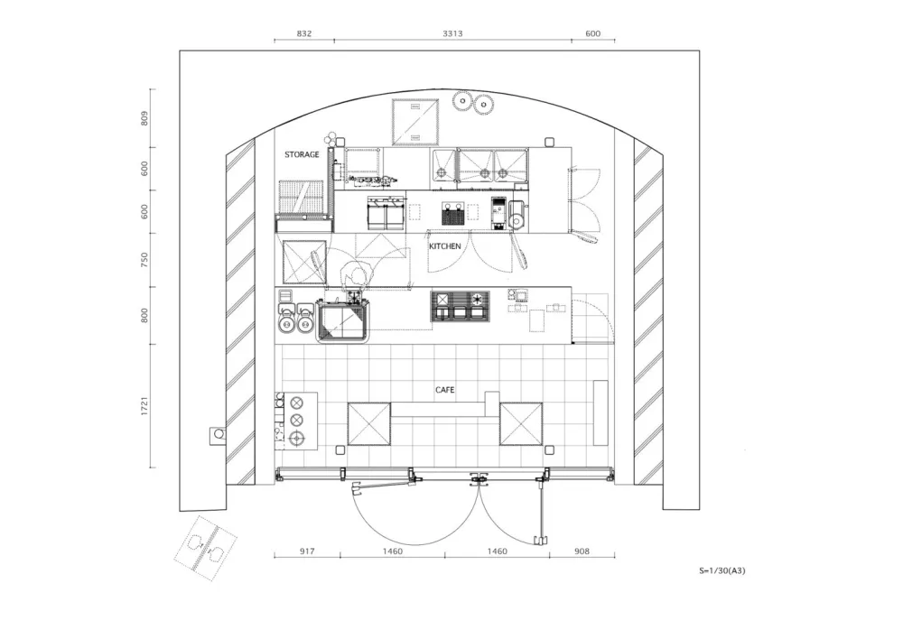
这家位于Kanda Manseibashi的小咖啡馆是日本开的第11家蓝瓶咖啡店。这是他们最小的店铺,建筑面积25平方米,也是第一家没有座位的外卖咖啡厅。
它坐落在一座有百年历史的铁路桥下(为中央铁路),由砖砌而成。我们的设计重点是如何将咖啡馆融入到这个有着悠久历史的迷人的现有环境中。
我们拆除了墙壁和天花板上现有的石膏板饰面,并在空间中融入了由红砖和混凝土构成的裸露结构。
构成计数器的白色体块被放置,就像被包裹在实体结构框架中一样。我们希望这个小咖啡馆能继续融入这个城市。

设计:Schemata Architects
位置:日本
照片:Takumi Ota

