极简主义是简洁和明确,追求的是一种纯粹的、无杂质的艺术效果。less is more,即最简单的形式、最基本的处理方法、最理性的设计手段求得最深入人心的艺术感受,此为极简主义宣言。
1.
43㎡
2.
66㎡
3.
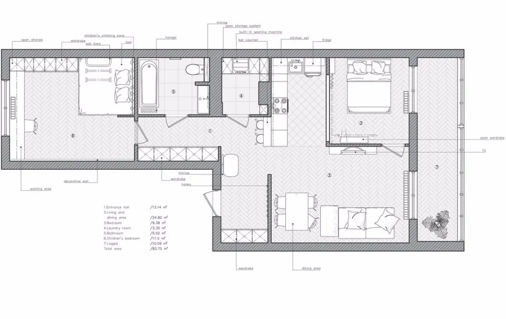
83㎡
4.
36㎡
设计:Barinov Andrey

