谢尔顿马歇尔住宅是一家四口的城市住宅,位于堪萨斯市中心的西侧。该住宅的主要结构面积不到2000平方英尺,在努力增强城市活力的市中心社区的背景下,它提出了一个令人信服的质量重于数量的论点。
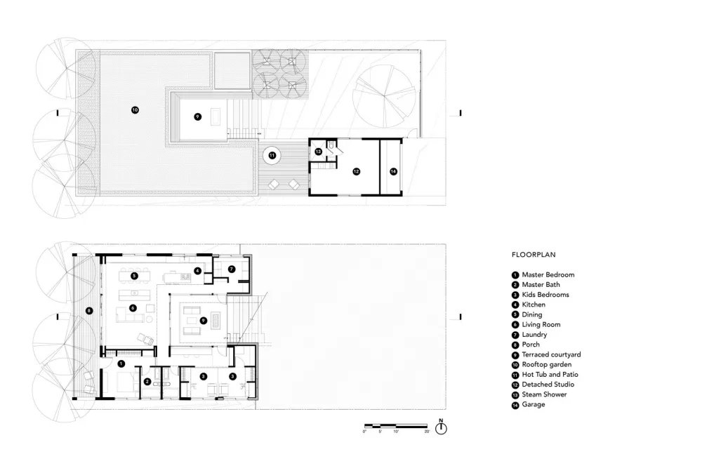
住宅的布局是一个“U”形的平面,围绕东面的入口庭院和西面遮阴的全长门廊组织。入口庭院比后院低6英尺-0英寸,而前廊戏剧性地漂浮在树林中,比麦迪逊大街高20英尺-0英寸。
大型滑动玻璃门和纱门将厨房、餐厅和客厅与庭院和门廊连接起来,为整个住宅提供了充足的交叉通风,在傍晚时分享受夏日微风。该住宅利用自然采光,提供100%的白天照明,并使用可调光的荧光海湾照明和有限的嵌入式卤素照明灯具进行夜间照明。
主卧室和浴室套房的比例适合城市住宅,并开放到前廊享受宁静的西侧夜晚。孩子们的卧室被设计成灵活的布局,相互开放,如果需要的话,入口庭院作为一个单卧室套房。手工制作的阁楼床组织功能壁橱空间和家庭作业站下面。
谢尔顿马歇尔住宅独特的基地部分使其内部成为一个城市避难所;一个安静的家庭反思的地方,在一个砂质,城市社区。
下面塞在一侧,徘徊在另一方面,室内空间和室外庭院的透明特性打开彼此慷慨地在雪松复合结构,精心编辑周围的外部环境,蒸馏火车和大风的声音通过滑动玻璃墙壁和斑驳的西方日落邻落叶树的四肢。然而,当从小巷进入时,房子很大程度上是看不见的:房子的公共空间逐步展开,诗意地悬浮在地面和屋顶移植的草原生态系统之间。
Shelton Marshall住宅最终是对场地的仔细研究,一方面紧紧地依偎在场地中,另一方面毫不费力地漂浮在场地之上。它通过为周围社区的亲密环境提供一个安静、谦逊和意想不到的存在,来庆祝家庭生活的宁静亲密。

位置:美国
年份:2014
面积:2750.0 m2
摄影师:Mike Sinclair

