办公大楼
Office Building
「Santander Digital Generation」,是西班牙最大的银行「桑坦德银行」为自己的技术开发团队而设计改造的办公总部。
项目位于巴西,经由改造旧建筑而来,总面积达到 47500㎡,由 ENTRE Arquitetos 和 TODOS Arquitetura 两家设计事务所共同完成。
整个项目虽然面积巨大,但设计师通过设置出 4 个空间,让其成为可以容纳 2000 名员工进行工作以及日常生活的人性化、高效率办公场所。
这 4 个空间各有特色,功能鲜明;分别是第一大门 First Gate、创造实验室 COLAB、主办公楼 Big Data 以及户外空间 Pracas。
下面就分别来看看这 4 个空间的设计。
01.
第一大门 First Gate
面积丨3400㎡
First Gate 是整个项目的第一个空间,是整个办公场所与外部城市的联系点。
建筑的外立面和入口,都由多功能金属外壳环绕,轻盈而实用。大楼中央的红色外观,起到引导员工和访客进入的作用。
红色作为整个 First Gate 环境中的主要颜色,经过精心的设计与应用,为整个空间带来优雅和现代感的氛围。
室内红色的穿孔金属结构像「云」一样轻盈,弱隔断的设置方法让室内的接待区、会议空间显得轻松。
家具也具备了多样性的特点,从扶手椅到大沙发,可以实现多种组合与形式,能适应各种各样不同性质的工作会议与访谈。
更正式的会议室有着更大的空间,并且被安排到了周边的位置。会议桌上方安装了特殊造型大灯。
门厅与礼堂配置可叠放的椅子和可拆卸的舞台,偌大的空间泛用性十足。一旁紧接着通往户外广场的入口。
设计团队还请到了巴西艺术家 Onio 来为墙面增添五颜六色的图画,让氛围更加亲切而且活力十足。
First Gate 的二楼是工作区,采用了开放式空间设计,并且铺满了红色的地毯。
在空间的中心有一个被称为「供应模块」的红色工作站,用于存储耗材、打印机,可分类的垃圾桶也被放在了这里。
除了开放式的工作区,也提供较为私密的工作空间,可以用来开会以及更加静心地工作,而且员工可以在这里的玻璃上随心所欲的记录。
02.
创造实验室 COLAB
面积丨800㎡
项目的第二个空间,是被称为 COLAB 的创新实验室,专门设计给创意团队所使用,由众多个名为「LAB」的小房间以及中央的公共厨房组成。
中央厨房有着明快、干净利落的设计语言,并且利用图形视觉传达出品牌精神,黑色的瓷砖墙十分有个性。
裸露的天花板还有好几块穿孔金属板,能起到隔板与调节光源的作用,而且十分易于维护。
这个空间的设计灵感来自于「村庄」的概念,利用不同的颜色赋予每个 LAB 不同的功能。
从专注的个人工作区、小型演示区到集体的头脑风暴区,应有尽有
各个 LAB 分布在周围,每个 LAB 都有着不同类型的家具和空间布局。
多种多样的形式摆脱了烦闷的工作氛围,加强团队成员之间更好的互动,赋予更多新的工作方式和无限的可能性。
平面图
03.
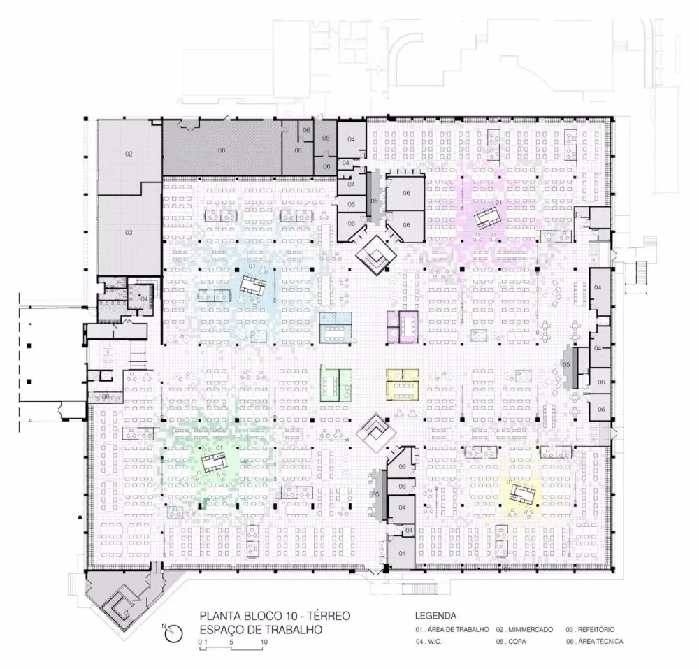
主办公楼 Big Data
面积丨16500㎡
来到第三个空间——主办公楼 Big Data。这是整个项目中功能最复杂也最重要的空间。
这里集结了大多数的员工,近千人。因此设计的重点是要建立更加紧密的团队合作,同时要保证每个分区相互的独立性与私密性。
在 Big Data 中,设计师将 2 层楼(每层近 8000㎡)每层的空间,又细分为 4 个小空间,并形成有利于设置合理人流路径的正方形区域。
再来,用 4 个主要的颜色:蓝色、黄色、紫色和绿色用来区分空间。不同的颜色提供了更直观的「视觉代码」,让员工可以随时轻松地「定位」。
室内的空间顶部配有多彩的声学挡板,既能划分区域,又能起到一定的隔音效果。
为了平衡开放性与私密性,在整体采用开放式布局的前提下,还增加了许许多个有着不同功能的小房间,并称为「功能模块」。
私密工作区、电话间、非正式会议空间…… 这些「功能模块」形成了一系列有机的架构,最终组合成一个高效率的整体。
而且员工同样可以在玻璃表面随意书写、绘画,随时记录自己的工作灵感或者备忘清单。
在 4 个小空间的正中央,你都能看到前面在 First Lab 工作区就介绍过的「供应模块」,用来存放耗材、打印机和分类垃圾箱。
某些供应模块甚至还提供了二层,让员工可以在这里开会、工作、休息。
值得一提的是,在改造的过程中,原建筑的天花板衬里被拆除,露出了金属结构。办公室便可以利用这当中的开口,充分引入自然光,降低人工照明的成本。
这样处理也让室内的空间视觉上更加宽敞、舒适,楼板之间设置的开口又能增加一层与二层之间的联系。
在休息区能看到插图画家 Fabrizio Lenci 的画作,赋予空间更加多彩活泼的氛围。
平面图
04.
户外空间 Pracas
面积丨27000㎡
最后,自然就得来到室外看看了,这里被称为 Pracas 或 Externas。
这一块大型绿色区域,可以用来承载额外的工作机能,使外层空间更加生活、充满活力。
下图这个架构模块被称为「Plugins」,散落地放在建筑群之间的路径上。这里提供白板、插座和 Wi-Fi,让员工可以在这里工作、会议。
户外的地上有一条绿色的主道路,这是连接各个楼宇之间的规划路径。
各种户外家具让人们可以直接在户外休息、举行会议。
户外餐厅设置在一片树木之下,并且铺上了木地板。在这里提供咖啡、食物甚至还有超市。
另外,在餐厅内你还能看到同样来自于插画师 Fabrizio Lenci 的绘画作品。
在整个办公大楼的项目中,设计师让开放式布局作为主角,同时通过多种模块的组合搭配保证私密性, 同时也不忘户外空间的创新与利用。
这种设计,才能创造出带有策略性的多功能办公空间,让人无比心动!
图片来源于事务所官网:www.entrearquitetos.com / todosarquitetura.com

