Emiliano hotel巴西,里约热内卢到达埃米利亚诺酒店,像一个从圣保罗,它暴露的签名工作室亚瑟Casas -该项目的初步框架共同创作的美国建筑师乍得奥本海姆。
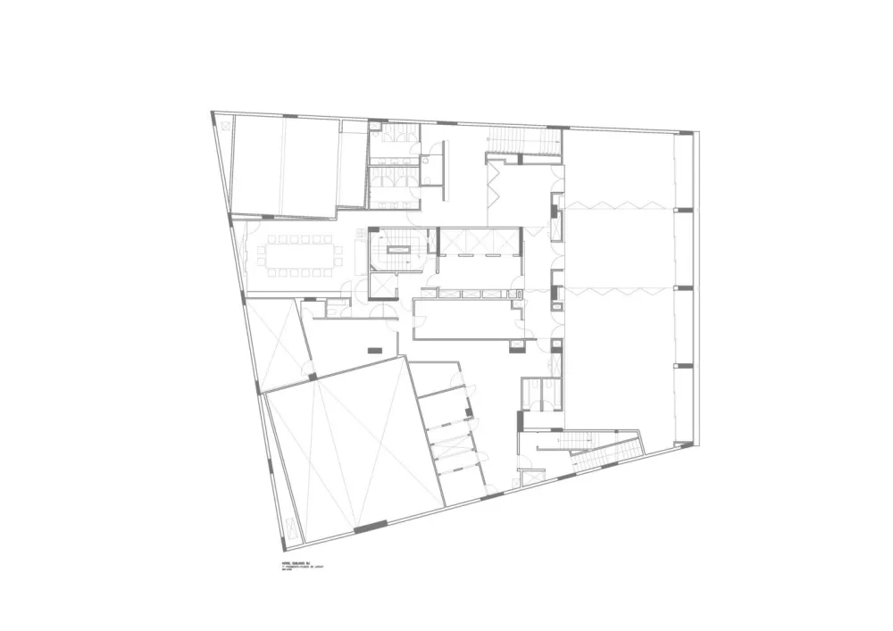
建筑的当代建筑位于科帕卡巴纳海滩前,以自然光为主,增强了视野,并将客人与这座神奇的城市连接起来。为了满足客户在简报中提出的项目要求,该项目可以满足五星级酒店的标准,其一楼可以供客人享用,也可以不供客人享用,因此在入口处设置了一个酒吧。然后,人流以两种不同的方式被重新引导:一种前往餐厅或商务中心,另一种前往接待处,那里有一个供客人使用的私人区域。
酒店还设有水疗中心,位于11楼,毗邻桑拿、特殊淋浴和健身房,并提供位于屋顶的休闲区,那里安装了一个无限边缘的游泳池和露台。此外,这最后一层楼允许从莱梅到科帕卡巴纳堡的华丽景色。
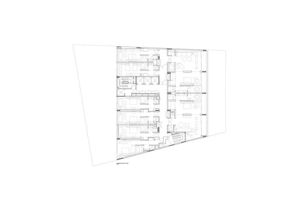
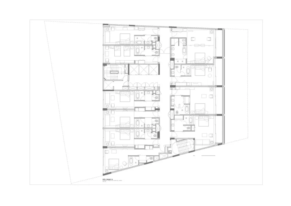
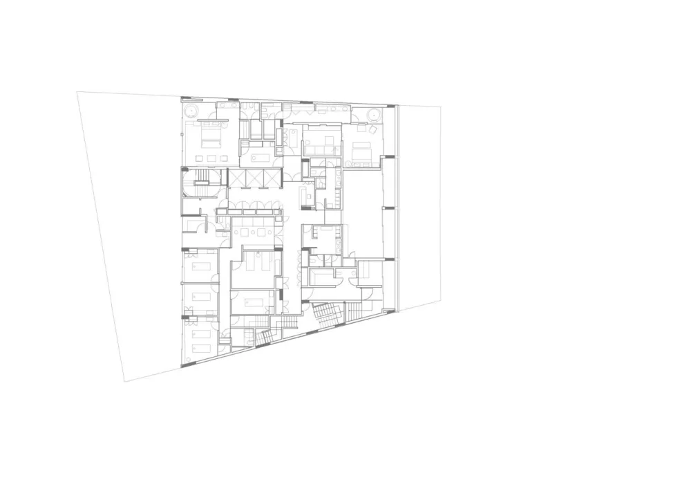
根据海滩附近建筑高度和距离的限制,该建筑分为12层,其中有90套公寓,面积从42平方米到120平方米不等。

Arthur Casas工作室为建筑创造了一个类似皮肤的表面,一个典型的巴西建筑穿孔设计,打破了沿着海岸建筑的混凝土块的连续性。立面的玻璃纤维面板产生了不同的视觉配置。即使面板是关闭的,阳光和风仍然可以通过,确保客人的隐私和海景。

室内设计由亚瑟·卡萨斯工作室设计,向巴西现代主义致敬,灵感来自于在酒店大堂展出的景观设计师兼艺术家罗伯托·伯勒·马克思的艺术作品。使用的面料和质地的家具在接待区和房间画在色调的绿色块,而装饰包括碎片在巴西主要的名字设计的50年代,如里约热内卢原生塞尔吉奥•罗德里格斯以及当代设计师,如意大利本地Paola Lenti。表面也标志着100%巴西材料的浅色调,包括藤,木材,白色巴拉那大理石,花岗岩和石头。

亚瑟·卡萨斯也画了电梯里的三维木板。景观通过屋顶和餐厅的垂直花园出现在室内。

因此,该建筑项目是对州首府自然美景的一种敬意,并邀请客人以尽可能最好的方式享受Emiliano里约热内卢的服务和环境。


位置:里约热内卢,巴西
建筑师:亚瑟·卡萨斯
面积: 9734.0 m2
摄影师:Fernando Guerra | FG+SG

