城里人们蜂拥到乡村消费乡愁,原地建筑的建筑师李冀却带着儿时的乡野记忆深入都市,幻想着只身挑战钢筋水泥丛林的快意。不论人类是否已经注定被锁入混凝土的格子牢笼,我们依旧渴望在梦中召唤一次来自远方自然的欢畅逆袭。
这本是位于北京城区一栋7层住宅楼首层的一套普通住房,因其标准的混凝土剪力墙结构、常见的户型、背靠商铺带来的稍高层高,成为了这次冒险行动的理想样本。
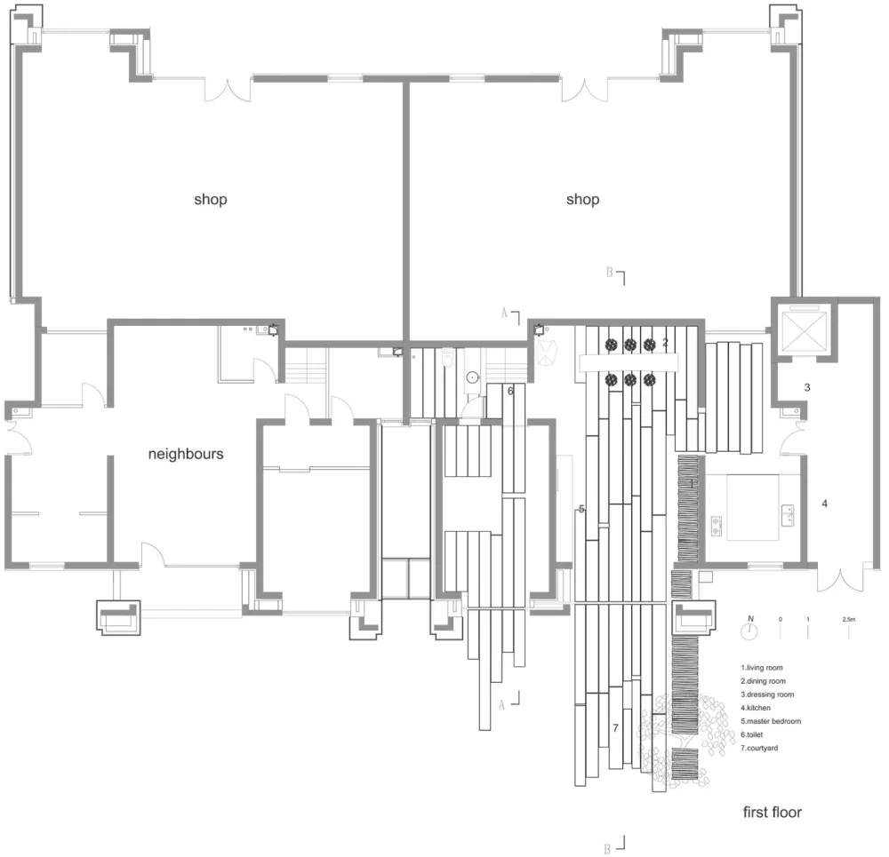
建筑师先将房屋内部所有轻质隔墙去除,只留下高耸的承重结构,让都市混凝土丛林的真实骨骼得以显露。朝向庭院一面的客厅和主卧室,都以大幅的滑动隐藏门打破原来封闭隔离的边界,宽厚的天然木板从室外花园一直铺进屋里,在混凝土墙体丛林之间穿行汇聚,自然的气息涌入、充盈了建筑内部,进而形成自由流动的内在庭园。内与外、生活与自然的隔阂都被消解,居家生活发生在室内庭园里,而室外花园则是延伸出去的客厅。下班回家成为一次心灵放松的意外旅程——经过被繁复装修密实包裹的公共过厅之后,推门而入的瞬间,重新回归自然。
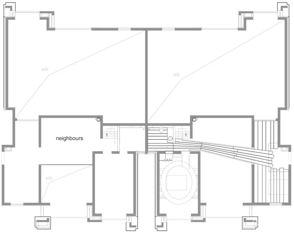
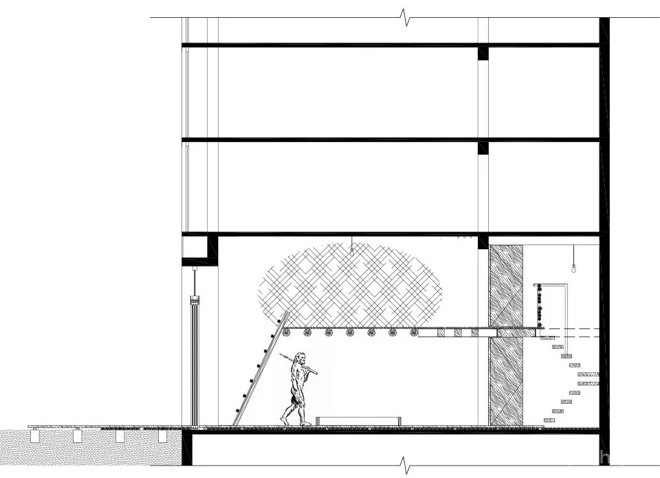
一些未经刨削的粗大树干,带着瘤节穿空架设,两端以特制的钢埋件与混凝土墙侧壁榫接在一起,形成几组漂浮在高处的空间。一座由树木与工字钢组合构建的悬空栈桥从混凝土墙体之间飞跨而过,将空间连接在一起。
还有什么比在混凝土丛林的半空中编造一个异想天开的鸟巢树屋,更能解放我们的心灵与想象力呢?它才是我们心中儿童卧室应该的样子呀,想来睡在里面晚上做的梦都会不一样吧。不单是自家的孩子,每一个到过这里的孩子都喜欢得不得了,常有不愿意走就在这里一起过夜的。除了共用的楼梯,树屋还通向一个树干绑扎的独立爬梯,狭小空间里立体的游历探索的路径,被孩子们当作了捉迷藏的快乐游乐场。这个远离乡野树林的树屋,如同在岩石上生长的藤蔓,在钢筋水泥丛林里牢牢扎下自己的根。
屋里没有装饰,家具和生活用品也都保持简朴和节制。留着树木自然轮廓的宽厚木板是地面的主要材料,每一块都独一无二,不同形态和清晰纹路诉说着每一棵树木的生命与尊严。赤脚踩在地上、或者直接在木板上铺垫为床,都是与自然的一次亲密接触,让人时常产生伸手触摸那些脚下的木板和头顶粗大木梁的冲动。在靠墙堆放的柴堆上靠垫而坐,比适合“北京瘫”的沙发更能让人保持清醒的生活。以一整块C形铁件制成的壁炉,可以在冬日提供额外的温暖。这里也许并不支持无节制的娱乐,却为身心的宁静与灵性的滋补提供了最适宜的居所。
“大地之上,无处不是奥林匹斯山”,如若梭罗此言不虚,他的小木屋就不仅仅可以立于瓦尔登湖畔,在都市的夹缝之中也一定能够无畏地生长。




▼剖面图B-B
▼2层平面图
▼首层平面图
项目名称:都市里的自然之家
地址:中国,北京,海淀区
建筑师:原地建筑
主持建筑师:李冀
设计团队:李冀、廉辉
建筑面积: 170 平方米
项目年份:2018
摄影师:夏至

