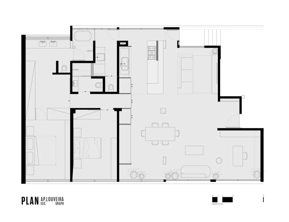
位于圣保罗最具标志性的现代主义建筑之一的Louveira大楼(Vilanova Artigas -1946 | 1950), 150平方米的公寓在过去的几十年里经历了多次翻新,完全失去了原有的特色。公寓获得了一种新的生活,重新配置了空间,恢复了50年代和60年代巴西建筑的典型装饰特征。
该项目旨在增强公寓的资产,同时满足新业主的需求,并与她的生活空间建立情感联系。混凝土、白色瓷砖、mashrabiya、地板的抛光混凝土饰面都是呼应建筑原始身份的元素,同时它们也让法比亚娜想起了她长大的圣保罗内州的家庭住宅。
空间的大小被调整,以促进流体循环和空间的多用途使用,并引入大量的自然光线和通风。一个巨大的混凝土和木架在视觉上统一了(不同部分)的生活空间,同时将它们与更私密的区域分开。工业风格和复古风格的混合为潮湿地区定下了基调。主浴室铺满了粉红色的地砖。它的特点是一个修复的古董搪瓷水槽,以及手工制作的铜管用于柜,淋浴头和水龙头。
在主卧里,浴室被肢解了四件。双梳妆台被整合进壁橱空间,卫生间被放置在瓷砖壁橱中,旧洗衣房的一部分成为沐浴在自然光下的宽敞淋浴房。在构思过程中,与业主的协同作用和互动是至关重要的,以确保公寓将反映她的生活方式,满足她的需求,是一个正确的环境,以珍惜她的记忆和未来的经验。











位置:巴西
首席建筑师:Flavio Miranda
设计团队:Flavio Miranda, Fabiana Zanin, Adriana Benguela, Marcelo Rosenbaum
年份:2015
摄影师:Ricardo Bassetti

