设计师说
89方商品房是目前房产市场的主力军,也是大部分青年群体的最佳选择,特别是在一线二线城市。因为我本人也是刚好在这个年龄阶段,所以非常理解现在年轻人对于购房的压力,以及购房后对于未来美好生活的憧憬。
我常常收到这类的设计问卷,(墨菲,我希望我家厨房和客厅要有吧台,我要一个开敞式厨房,我希望有个榻榻米。墨菲,我希望我的书房既能办公又能K歌还能看电影。墨菲,我希望我的书房可以满足我偶尔网络直播的需求隔音一定要最好,我家还要有垃圾处理器,洗碗机,蒸箱烤箱双开门冰箱等等..)因为这类屋主大多都是第一次经历装修,希望把自己认为最好的,最时尚的,最新颖的,自己没有尝试过的统统都搬进自己的新家。
遇到这样的客户我第一步做的就是分析屋主现在的生活场景,解码他们真正的需求,而后和屋主一起做加减法,把真正的需求留下,把钱砸在关键点上,从而优化屋主的生活状态。
客厅 & 餐厅
LIVING ROOM & DINING ROOM
先来说说本案屋主的基本情况吧,屋主夫妻是一对年轻的情侣,即将步入婚姻的殿堂,房子是屋主作为婚房使用的。男屋主是IT男,不过平时工作主要在家里。男业主也是集众IT男的优点,喜欢烹饪,喜欢宅家。女主人则是外向的东北小姐姐,活泼开朗。
业主二人对于这个家,对于以后的生活有太多的想象。所以我在做这个项目的时候,和业主二人沟通了很久,最终确定以轻熟作为本案风格的核心。打造这类空间,我的设计表达可以用这几个词概括:诗意,幻想,浪漫,优雅。
首先我们进入餐厅区域,餐桌的尺寸是:2100*900mm,餐桌选用的材质是粗糙的水泥台面和金属桌角,它属于定制产品;餐椅选用了两种类型的组合,千鸟格的布艺餐椅和玛萨拉酒红色丝绒餐椅,这个组合的搭配无论是色彩上还是造型上,都可以使空间表达出前卫的时尚和人文质感。
另外需要强调的是,软装选取时要注意材质的关联性,举个简单的例子,沙发抱枕面料的选取要注意和餐椅的面料的统一性,同样地面的颜色与顶面的色彩保持一定的和谐度。
接下来说说客厅吊顶,现在一般家庭装修都会用中央空调或风管机(风管机需要充足外机位,一个内机对应一个外机,中央空调则是一个外机多个内机)壁挂或是柜式空调非常占用空间,一般不考虑。空调内机位置选取在设计上非常关键,即要保证空调的功能不受影响,又要注意吊顶的优化(内机都需要做吊顶,工业风等风格除外)。
本案中,餐厅的空调出风口我放在入户门左侧。吊顶宽度为650mm,餐厅和客厅顶面,我没有吊顶,为原顶涂刷白色乳胶漆的形式。这样做有两个好处,其一是空间高度不受影响,因为目前大部分商品房住宅层高有限,且没有人会喜欢压抑的空间。其二也就是预算考虑。
本案还有一个非常值得强调的点,就是踢脚线的运用。在本案,我选用了300mm高的黑白根大理石并用10mm宽的不锈钢条收口,加强空间的风格属性,往往这些细节的表现把握了整体空间的气质。
房门做了通高设计的处理手法,阵列式的房门带有一种独有的仪式感,房门内部的比例尺寸需要前期有一个很好的把控,值得提及的是一扇套装门的价格不到3000哦(购于杭州线下实体店)。
我觉得很多屋主,包括一些设计师会非常关注卫生间的门,我们通常看到的门都会有所谓的门檐,尤其卫生间的门,一般来说卫生间需要吊300mm的吊顶用来装排气扇。
我这边的处理方法是采用传统集成吊顶的方式,但为了做到材质的统一性,特别在内部用挡板的设计作为集成吊顶和门片的隐藏式设计,才能做到通高效果;材质上用的是2公分铁艺结合钻石玻璃,不过特别要提醒注意的一点是踢脚线收口以及钻石玻璃的打胶处理。
客厅区域我没有再用吊灯,如果再用吊灯会增加空间的复杂度,会有点点凌乱。这边要提到的是空间的量化比例,不要过于追求形式,一定要从结合空间的宏观比例出发,做到过犹不及。
这是入户门打开后的视角拍摄的,也是进入家的第一视角。工作一天的你,打开门,自己的家这样展现在你面前,是否会让你一天的疲惫和烦恼一扫而空呢?进入家开始享受两个人的世界。我自己特别喜欢餐桌上边的插花,这是业主特地在拍毕业照前一天去购买的,玫瑰特别选了饱和度比较低的,有宫廷感,插花配中古的烛台特别搭。
地板采用的是进口强化地板,我比较喜欢用强化地板,主要是考虑到纹理,颜色以及性价比。有很多业主对于强化地板有很深的误解,不环保是它被人拒之门外的多的理由。其实大家可以多去了解一下。业主刚开始在选择的时候,觉得地板的颜色偏深,想换稍微浅点的颜色,被我强硬的拒绝了。
有时候设计师一定要坚持自己的观点,因为你是凭专业选择的,而业主更多是凭感觉。学画画出身的应该都清楚素描球理论,这个空间,其实就是参考了这个理论,黑白灰分开空间才会有层次,这里的黑色面就是地板需要的颜色;
主沙发购于淘宝,质感和坐感都非常不错。有很多业主会拒绝网购家具,其实现在很多家具厂家都上淘宝了,所以质量都不错。当然如果不放心的话,就需要像我一样负责的设计师帮你把关喽,嘿嘿!!!
不过在淘宝帮业主挑选家具,其实非常的累,一天坐下来眼睛和腰都受不了,不过也要感谢马爸爸能让我们这些注重设计效果的设计师有更多发挥空间,让设计费收的心安理得。
空间富有诗意,让生活不停的制造爱的惊喜,往后余生,充满爱的幻想。
开放式厨房
OPEN KITCHEN
厨房用了火星人集成灶(Tip:有蒸箱款或消毒柜,价格差不多1万左右,集成灶的优点是排油烟效果好以及释放更多的储物空间,顶上多一组吊柜)
另外燃气热水器放在了室外(Tip:能率室外机还是不错的,价格6000左右,室外机需要有顶,不能淋雨哦)
橱柜采用的黑色模压面板,其实对于设计来讲黑白灰属于无色阶的色彩,所以空间当彩度比较高的情况下,尤其当下空间运用了千禧色与墨绿色的结合,可以考虑黑白;另外一点是在空间设计中要考虑到整体设计,避免空间过于零散,所以瓷砖的选择同样是大规格的;
瓷砖的贴法,我有特别设计过,贴到三分之二处。千禧色延伸到墙面,避免承重墙带来的压迫感。
主卧墙面色彩上的运用,我非常的满意,业主小姐姐也是喜欢的不得了,不知道各位住友觉得怎么样?
床头背景用了克莱因蓝搭配千禧色来交织空间的色彩,墙面还是沿用了30mm的石膏线条,框塑出不同的画框来去产生一些立体视觉,这样能有很饱满的纹理,整体造价又极具性价比。(Tip:但是各位小伙伴其实我还是建议用PU线条,容易打理,常规的2.5公分的价格是40-50元)。
羽毛纹理的墙纸,在这个空间里也是功不可没,三种色彩有了很好的交织,久看不腻。(Tip:这个墙纸是比利时的价格有些高,但还是阻挡不了我的喜欢。因为比利时的墙纸设计感很强,相比而言美国的壁纸就差一些,一般纯纸居多,风格相对呆板,缺少灵动。)
看到这张图片的植物,我又要夸夸屋主小姐姐的执行力。针葵一直是我比较喜欢的植物,但是总是找不到很满意的形态,小姐姐竟然买到了品相如此漂亮的,让我佩服的不行。
另外在讲一下窗帘,虽然窗帘在空间中起到的视觉性相对层级较低,但是还是要再次强调,细节的表现就是体现在一些微小的事物上,当初其实在选择窗帘的时候有2个方向,一个是高精密的绸缎类,相对比较网红,太精致了,最后PASS;另外一款就是照片上的这款,很有有复古的斑驳质感,价格在130-150元/米,全屋窗帘花费在7000左右。
这个角度特别喜欢,壁灯的方式有很多种,在墙面我采用了并列的方式去进行壁挂,很有韵律感。(Tip:壁灯是海淘的,国外的电压和国内不一样,所以灯泡是淘宝上买的)
隔板材质的选择上,特别强调下,我采用了柚木,柚木在我看来是最具表现人文情怀并且具有古典的美感。(Tip:同样在对于橡木 榉木 黑胡桃 柚木来讲,在轻熟风的表现下我更喜欢用柚木)
午后坐在窗边,敲敲代码,我想没有任何一个IT男能拒绝这种氛围吧?小小的自恋一下。
浴 室
BATHROOM
继续讲解本案的主卧卫生间,女业主从最初就有一个很强的诉求就想要一个浴缸,所以在设计最初,我就一直在寻找满足这个空间格局且美观的浴缸。这款圆形浴缸直径是1200mm,虽然不大,但是深度够深,所以舒适度上没有问题;
浴缸和台面都采用了大花白纹理的大理石,这款大理石是和小姐姐跑了好几次才找到如此质感的,价格在600每平左右;卫生间的墙面同样采用了600*1200的大砖,价格好像是300多每平(Tip:通常在选择砖的时候要注意它的柔光程度),壁龛的设计为生活提供了便利(Tip:如果在条件的允许下,做一些灯光设计氛围更舒服)
台盆上面的不是镜子!不是镜子!不是镜子!是我特别的设计。我希望主卫与主卧之间的连接产生了一个独一无二的生活视野,能够想象到会产生不同预期的互动,材质上同样运用了1公分的不锈钢和钢化玻璃(Tip:注意在运用圆形的造型下,一定要注意墙面打磨的平整度)这个被朋友笑称是情趣设计,我也是无言以对。
浴缸的特写,这个尺寸的圆形浴缸还是很舒服的。舒适度也是我们设计师必须要考虑的重点,千万别追求设计而牺牲舒适性,因为业主每天都要使用,我想没有任何设计师希望被业主天天记恨的吧?哈哈~~
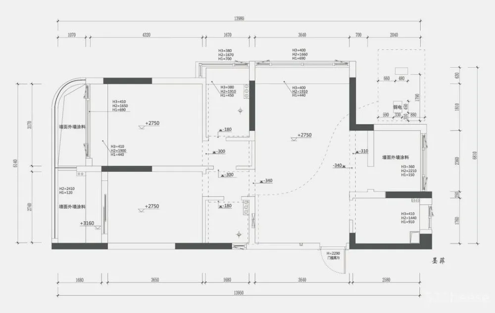
平面设计图
墨 菲
墨菲空间研究社1号研究员
设计理念:空间,是生活的比喻!
奖项:2018拓者杯居住空间设计大赛 金奖
户型:2室2厅2卫
设计单位:墨菲空间研究社
设计师:墨菲
建筑面积:89㎡
房屋位置:杭州
总投入:38W

