这家位于亚特兰大的法国餐厅兼酒吧将石头、木制品和蓝色流行乐融为一体,当地的AI3餐厅旨在唤起厨师在普罗旺斯的童年回忆。
当地的建筑和设计工作室为大厨尼克·莱希(Nick Leahy)设计了AIX餐厅和Tin Tin酒吧。莱希在法国南部普罗旺斯的艾克斯长大。
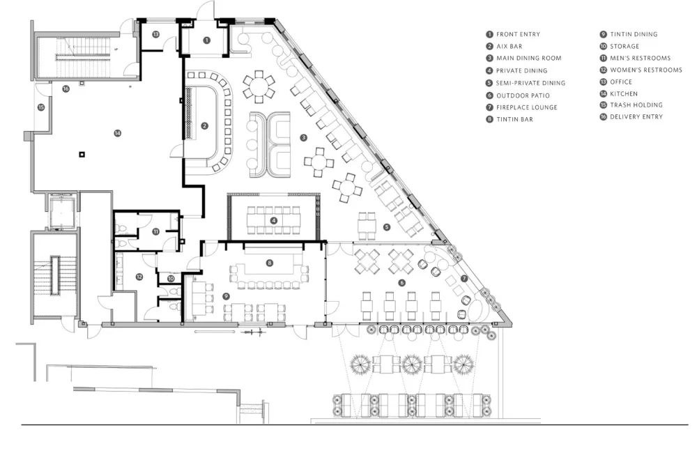
两人共用一间厨房,但在设计上意图截然不同——艾克斯有一种更正式但更质朴的美学,而酒吧则故意更休闲。
染色的木梁,宽阔的橡木地板,天然的石墙是这家餐厅的特色。木头和石膏的瞬间也能唤起一种陈旧的感觉,伴随着青铜和黄铜的流行,以及苍白、灰褐色和灰色的色调。
玻璃沿着面向AIX的倾斜墙壁运行,以带来充足的自然光。窗户的内部设置了一条长凳,最大化了座位空间,其他不同形状的桌子填满了餐厅。
AIX的一个焦点是一个独立的卷,它的两边都有摊位,还有一个板条状的串珠状安装,其中圆形的销钉一直延伸到天花板。
AI3合伙人露西•艾肯-约翰逊(Lucy Aiken-Johnson)表示:“这个艺术装置的灵感来自法国的petanque游戏,用于在视觉上划分酒吧和餐厅。”“这幅作品就像一个算盘,木耳蜗网(球)穿在钢丝上,创造了一个抽象的图案,并进一步利用了自然和现代材料的并列。”
在这个中心体量的后面是一个圆形的酒吧,后面是一面玫瑰金色的镜子。深蓝色皮革吧台凳提供了座位,与构成地板的黑色、黄色和白色石头色调形成对比。
完成AIX的是一个钢和玻璃结构,包括一个酒窖和一个私人餐厅。Tin Tin wine bar位于这个酒窖的后面,色彩更加丰富,营造出更加休闲的环境。例如,白色瓷砖地板具有几何普罗旺斯蓝色图案。
头顶上是一些带有铬灯泡的玫瑰色弧形灯具,与隔壁AIX使用的金属色调相呼应。
Tin Tin通往一处封闭的露台,露台上有混凝土地板、一座壁炉、深蓝色天花板和户外桌椅。AIX和Tin Tin一起占据了亚特兰大牲畜饲养场的一个三角形地块,这是一个位于城市西侧或西城区的多功能商业开发项目。
设计时间:2019年
项目位置:亚特兰大,美国
摄影师:Andrew Thomas Lee

