在荷兰的Hague’sVogelwijk区有一栋极简风格的别墅,该设计与周围的1927年砖墙风格的建筑形成可鲜明的对比。与此同时,也凸显出了别墅本身的隐藏价值。
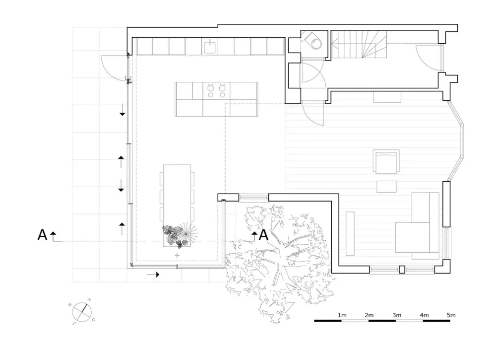
该别墅的前院中原本有一棵无花果树,然而,在旧别墅中是看不到这棵美丽的果树的。由于新别墅扩建,所以新增加的玻璃盒子与现有的无花果树产生了交集,这样就在无花果树周围创造出了一个半封闭的室外空间。由于这个新空间的引入,沿着无花果树展开的新、旧世界中又多了一个第三世界。
这个旧别墅扩建出来的延展空间在别墅与周围古老建筑的建筑风格上起到了平衡的作用。
现有建筑保持了1927年左右的新艺术风格和阿姆斯特丹学院风格。而扩建部分展现了极简风格中砖墙建筑的特点。花园中的玻璃盒子有着极简风的屋顶平台以及玻璃立面。从房屋内部似乎看不见扩建的玻璃盒子,所以玻璃盒子的屋顶看上去像是漂浮在空中一样。玻璃立面可以打开形成一个更大的角落,坐在这里的餐桌旁会给人一种在户外用餐的感觉。这个餐厅与在旧别墅中缺少自然光的现代厨房和餐厅形成了鲜明的对比。
室内的混凝土地板和新厨房墙都将作为新旧别墅的连接。混合了新旧风格的地板和厨房会将人引入到旧别墅中。

建筑师 Bloot Architecture
地址 La Haya, 荷兰
类别 独立住宅
主创建筑师 Tjeerd Bloothoofd
建筑面积 51.0 平方米
项目年份 2018
摄影师 Christian Van Der Kooy

