纽约工作室GRT Architects增加了经过修复的蓝色浴缸和绿色橱柜,以更新布鲁克林20世纪早期的联排别墅。
GRT建筑事务所翻修的四层砖砌住宅位于展望莱弗茨花园附近,该地区靠近布鲁克林的展望公园,以安静的街道和许多历史悠久的住宅为特色。该项目名为“展望莱弗茨花园联排别墅”(Prospect Lefferts Garden Townhouse),最初由建筑师威廉·M·米勒(William M Miller)于1910年完成,融合了罗马风格和新文艺复兴元素。
在它建成后的几年里,为了满足不同业主的需求,不断进行修改和升级。GRT建筑事务所在一份项目描述中说:“在某种程度上,在建筑后部增加了两层,1940年一楼变成了医生的办公室。”
GRT建筑事务所设计了4100平方英尺(381平方米)住宅的翻新,以表达对这些历史细节的敬意,同时也提供了更新方面的连续性。
工作室说:“这是一场新与旧、当代与历史之间的精心编排的戏剧,其结果既庆祝了两者,又满足了我们现代客户的需求。”“在设计历史建筑时,我们首先要树立一种新旧观念。”
住宅的许多木制细节被保留下来,包括原始的拼花木地板、许多壁炉、一个传统的木制楼梯、精心制作的墙板和装饰。原本已经过时的天蓝色搪瓷浴缸也被赋予了新的生命。
补充这些旧的细节是白色的墙壁,作为一个空白的背景,为一些新的绿色口音。
厨房里的绿色油毡橱柜装饰着金色的细节,包括一个由Forbo Marmoleum制作的闪闪发光的岛台。三角形的黄铜拉手是由GRT建筑师定制的,用于整个家庭。
GRT建筑事务所说:“我们特意创造了一个具有现代感的厨房,与它的历史框架形成对比。”其他金色细节包括未经处理的黄铜框架,它包裹了客厅和餐厅之间的新扩大的入口,占据了住宅的第二层。在就餐区,工作室用哑光白色装饰。
工作室说:“我们没有尝试与现有的历史模型相匹配,而是选择了最小的装饰,黄铜镶嵌和宽阔的黄铜门槛标志着新的开放。”楼上的一个开口也扩大了,可以看到整个住宅的景色。另一条视线靠近厨房,允许自然光从一个大窗户倾泻进来。
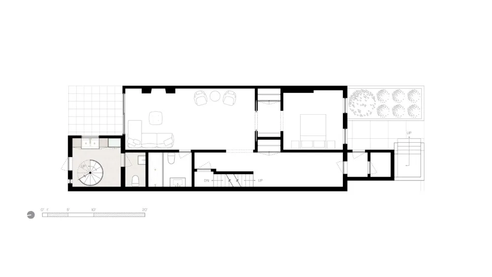
联排别墅的一个焦点是一个白色的金属螺旋楼梯,它被添加到房子的后部。楼梯位于最低一层的存储区,最近增加了两层。通过一扇新的玻璃门可以进入后花园。“由于地标建筑需要一种字面上的方法来保护立面,我们设置了一个梯度,从面向街道的无形改善到面向后方的明显的新元素,”工作室说。
休息室、浴室和卧室也位于较低的楼层。三层位于主要生活空间之上,完全用于主浴室和办公室。一个步入式衣橱将两个空间连接在一起,不需要通过楼梯井。胶合板橱柜门被处理成淡绿色,以突出木纹,补充整个色调的青翠。
展望莱弗茨花园联排别墅的顶层包括卧室、办公室和休息室。储物空间、浴室和洗衣房完成了这一层。浴室的地板上覆盖着绿色的水泥砖。为了延续新旧之间的对比,GRT建筑事务所在室内布置了许多世纪中期的家具和Raco和Andrew Neyer设计的新灯具。
RT建筑事务所——位于布鲁克林的绿点社区——选择了类似的世纪中期口音来翻新格林堡地区的一座连排别墅,在那里它还添加了一个凹槽玻璃楼梯井,以及熏衣草和白色的流行色。工作室还参与了曼哈顿的改造项目,包括将一栋19世纪建筑的顶层改造成一间带有粉色厨房和深蓝色休息厅的办公室,并修复了时尚塔的装饰性外观。
设计团队:Rus Mehta, Tal Schori, Andrew Barkhouse and Sharif Anous of GRT Architects
General contrac
项目位置:布鲁克林,纽约
总承包商:Black Square Builders
设计时间:2019年
摄影师:Nicole Franzen

