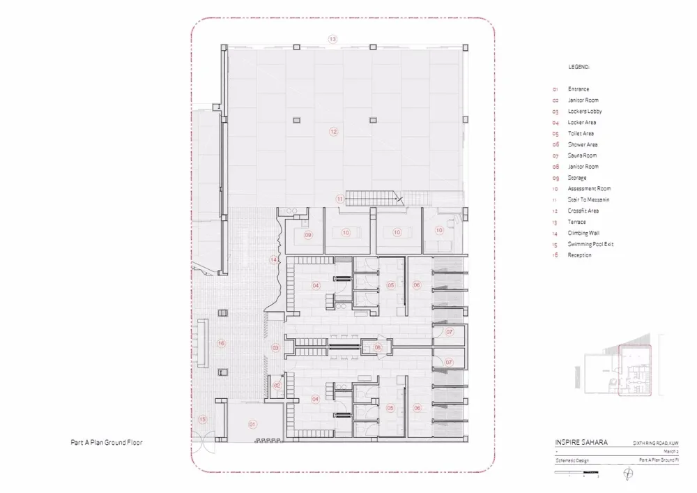
该项目位于指环街6号,临近狩猎&马术俱乐部。该设计的总面积约为1300平方米。这个空间原本是一个较大的现有建筑的一部分,包括一个现有的儿童和奥铃匹克游泳池、两个室外网球场和一个排球场,以及一个现有的独立附属建筑,其中包括接待室、储物柜和干湿区域及两个壁球场。
客户计划开发一个新的健身房空间,包括一个团体健身室、Crossfit Box、一个食品服务区、桑拿、更衣室和带淋浴和厕所的更衣室、行政和理疗室。
挑战
最大的挑战是项目的快速发展。客户面临着租期短的难题。这意味着新空间的设计必须与现有构建的拆除同时进行。此外,设计师没有任何的现有建筑图纸。也就是说,设计师们不知道具体可保留和使用的现有结构构件的位置。因此,只有等拆除旧建筑是才能看到该建筑的构架。除此之外,我们还面临着预算紧张的问题,因此设计师就原有框架基础,在该框架上构筑现有的框架。根据设计预算,我们只能雇用一家专业机构和低级承包商。
干预
由于该场地曾经是壁球场,因此场地中有许多立柱。我们决定在Crossfit区域内使用一半这样的元素,从而利用现有的结构来支撑和悬挂所需的设备,如绳索、吊环、拉杆等设备。这个结构的另一半被包含在男女卫生间、淋浴、更衣室和储藏室中。整体设计与现有立柱所形结合,形成了合理的空间分隔。
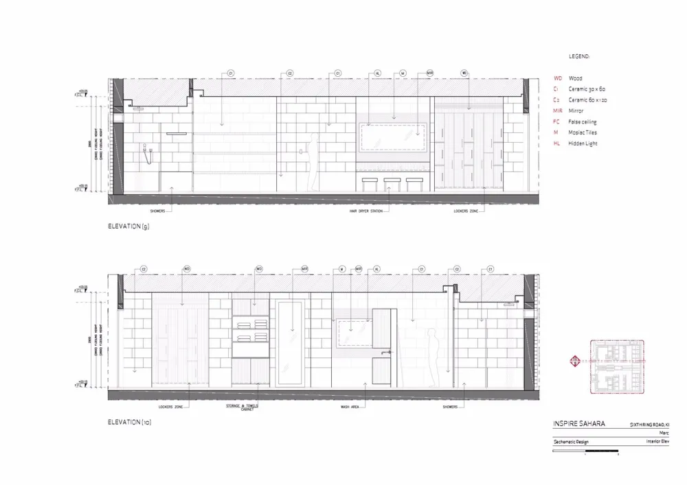
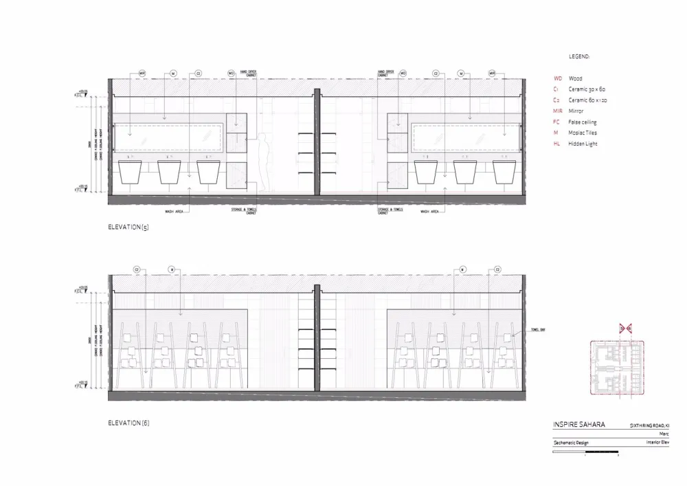
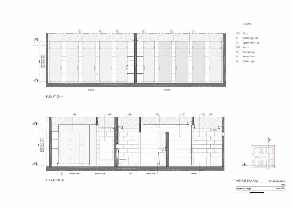
建材的选择也是一个重要的决定。我们集中使用高端饰面和材料,主要在更衣室区域和浴室的有限空间内使用高端灯具、平板陶瓷、玻璃、嵌入式灯具和精致的细节设计。我们团队认为,与粗糙自然风的健身空间比较起来,但凡涉及到这些注重卫生的空间时,客户对这一区域的期望值会有所提高。此外,该区域大约占整个空间的20%,因此可以将预算中的20%用于这一部分的室内精装修,剩下的80%可以再生母性爱为主要材料,搭配不精确的细木工形成完全粗犷原始风格,以减少承包商团队的负荷。机电设备外置,可以给人带来工业感,同时方便维护和使用。此外,回收的木材和体育馆的原始外立面材料让整体建筑可以像一个成品材料一样优雅地老化。三年后,这个空间看起来和开张当天完全一样,另一方面,任何维修都可以以最低的成本进行,因此木材可以在任何废料厂找到。
该项目临近一个美丽的游泳池和带有高尔夫球场的赛道,这意味着周边的景观得以保持,并通过最大化构成内部空间外部边缘的滑动玻璃立面来突出。
最终的效果简单大方。二次利用模板墙和柜台的自然粗糙纹理与金属天花板和空调管道光滑的白色完成面形成了美丽的对比。游泳池上方的由二次利用的木板制成的大跨度天蓬,不仅遮蔽了游泳池,而且还防止了体育馆主场馆立面上的眩光和热量的吸收。
建筑师 Alhumaidhi Architects
地址 Sáhara, 科威特
类别 游泳池
项目年份 2015
摄影师 Nelson Garrido
厂家 Martini Light, Technal, MARAZZI

