这家小型精品酒店位于墨西哥图卢姆,在树木之间拔地而起。为了保护场地70%的植被,工作室在现有的树木丛中建造了客房。每座建筑都有一个倾斜的木屋顶,内衬棕榈叶,白色的墙壁由楚克姆制成——一种来自墨西哥尤卡坦地区的灰泥,由石灰石和楚克姆树的树脂混合而成。
设计师的目标是使用耐久自然的材料,随着时间的推移,建筑可以获得个性和更深的归属感。建筑群的不同体量散布在地块上,在树木和石径之间,给人一种置身于玛雅丛林中的小村庄的感觉。
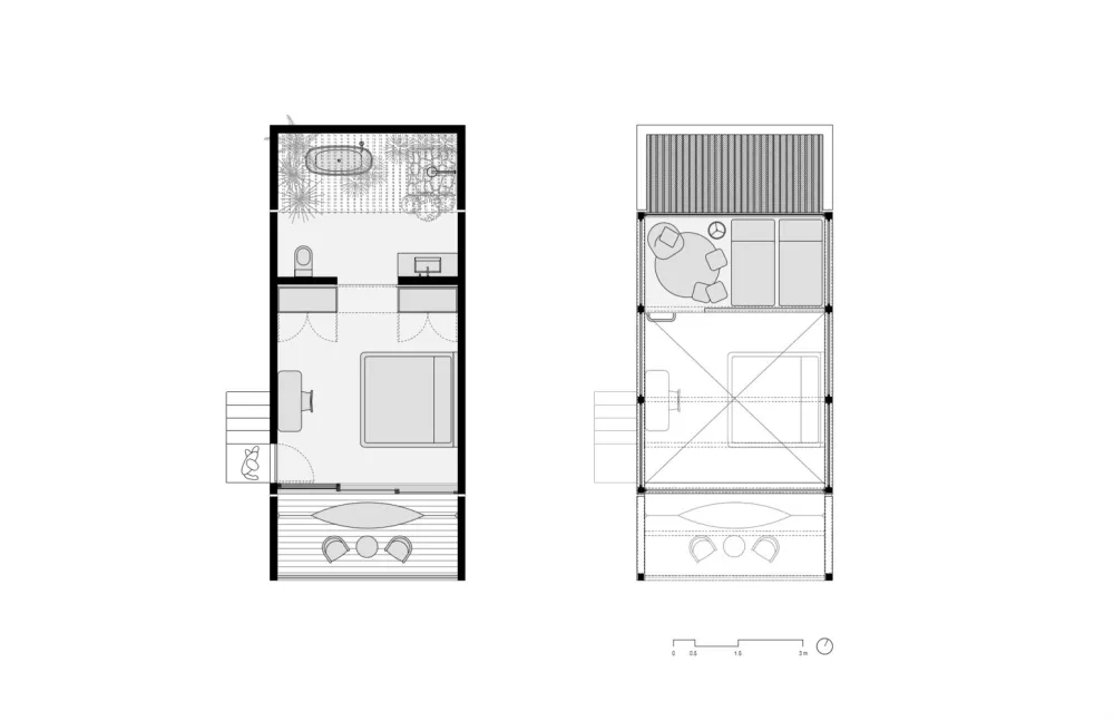
所有的项目都是由当地的材料,低维护和自然纹理组成,为建筑提供了温暖的氛围。墙壁上的一种特殊装饰是“楚克姆”(chukum),这是玛雅地区的一种灰泥,使用树脂赋予其独特的颜色、外观和耐用性。
屋顶的底部是由棕榈叶织成的金色纺织品,这是工作室选择的,因为它能够让自然光全天照射进来。
内部有两层高的卧室,床垫用简单的石质底座支撑。除此之外,装饰被限制在树桩边的桌子和暴露的灯泡吊灯上,这些吊灯是用一根粗绳从天花板上悬挂下来的。小屋前面的大玻璃面板可以向后滑动,进入带有流苏吊床的户外小露台,客人可以躺在那里放松。
工作室建立了第五个小屋来容纳酒店的公共区域。厨房和餐厅的内部通往一个阳光躺椅平台。相邻的瑜伽室前面是板条木屏风,悬挑在泳池上方,泳池中央有两个成熟的皂荚。
图卢姆地区的酒店越来越多,以满足因其悠久的历史和未受破坏的海滩而来此旅游的游客的需求。
酒店名称:Jungle Keva hotel
设计时间:2019年
建筑设计:Jaque Studio (Jesus Acosta, Fernando Abogado, Everardo Castro, Victor Rosete)
结构设计:HAL Ingenieria
灯光设计:Entorno Taller Paisaje
景观设计:Entorno Taller Paisaje
设计面积:428.0 m2
项目位置:图卢姆,墨西哥(Tulum, Q.R., Mexico)
摄影师:Cesar Béjar
工程师:HAL Ingeniería
客户:Kendall Inman

