命之为【埕】,必有其公共性、分享性、共创性。交大浩然图书馆陪伴交大学子们成长,而阅读本身也就是校园内蕴的重释与再现。交大知识埕(图书期刊空间) 将是让台湾交大 “进入” 阅读美学X翻转教育的一个起始点。
翻转下一世代校园阅读场域美感经验
传统大专院校中,图书馆一直扮演提供学子搜集国际学识资讯与阅读学习的重要场域,以台湾的校园发展而言,早期多着重实质满足人员使用机能而忽略图书馆应以呈现的校园空间定位与美感。
随着时代生活品质的提升与学术科技的演进,知识与讯息的传递已不再藉由传统书面纸本,而是透过网路、云端与各式多元技术即可大量搜集。沿此脉络,我们期许交大图书馆三楼期刊阅读空间之空间改造可翻转传统定义之空间架构,以建筑空间美学融合当代科技艺术,给予图书馆下一个世代之空间新定位。
回应既有空间涵构/新旧共构
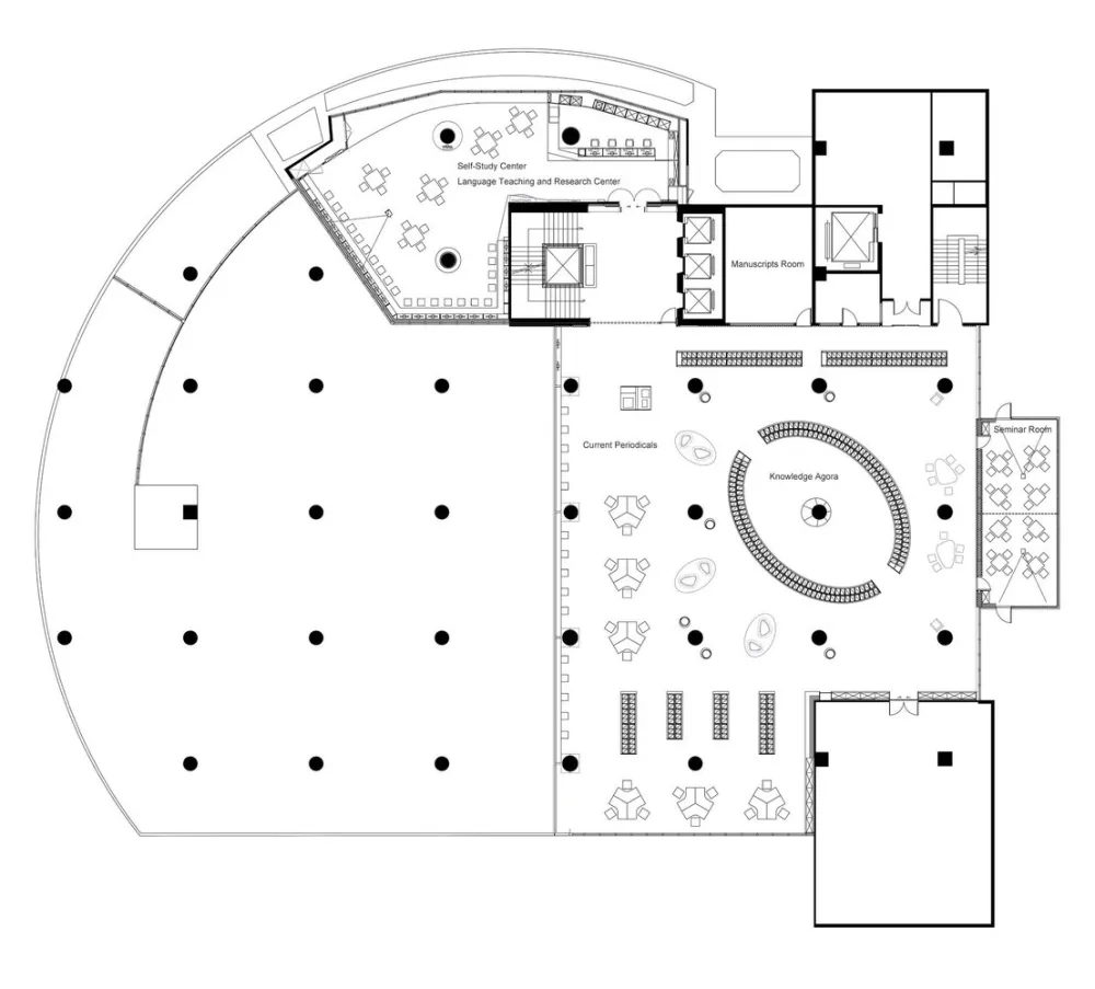
本案设计整合图书馆大厅入口与3楼期刊室之挑空尺度关系,以兼容内外在限制条件发想设计创意,藉由人员阅览驻足之动线效能回应既有空间新旧涵构。
设计上期刊区建置椭圆广场,藉由大尺度弧形意象与期刊书架矩阵动线勾勒其轴线关系,并由建筑物2、3楼的挑空尺度来串连图书馆新旧共构所衍生之动静态阅读交互串联性,重构浩然图书馆新旧共存的公共阅读场域。
而语言教学与研究中心附设自习中心以空间斜角量体区划使用属性,并藉由复合多元之金属与木质素材序列组合以呈现细致的空间本质,以纯粹的曲线与矩阵架构勾勒出化繁为简之阅读空间语汇。
建筑师 WAarchi
地址 (光复校区)东区大学路1001号, 新竹市, 台湾
类别 室内建筑
主创建筑师 许伟扬
设计团队 UPGA@WAarchi International Design Co., Ltd.
建筑面积 1000.0 m2
项目年份 2018
摄影师 李国民

