本项目始于2015年,直至2018年才完工。它是一个专为老年人设计的医疗保健住宅,包括10间双人间和4间单人间,所有的房间都配有自己独立的私人设施
本项目旨在满足现有医疗保健中心对额外床位的需求,因此建筑师从功能上考虑,在现有建筑和扩建部分之间建立了内部联系和必要的交通流线。
建筑师从可用的基地面积以及与现有建筑的连接需要等方面为出发点,拟定了扩建部分的体量,以便使实际操作时的功能区面积得以最小化。因此,本项目便以上述概念为基本原则,同时以使用者的真实需求为设计依据进行设计。通过将卧室体量延伸出外表皮,建筑的主立面被打破,形成了一个异形的、雕塑般的立面。至此,这座医疗护理中心变得极具特色,从某种程度上讲甚至是独一无二,从周边环境中脱颖而出,恰恰符合了该中心对每位老人的期待——每个人都是特色鲜明的独立个体。本项目始终将其患者和使用者的需求作为首要参考因素,因此在设计上开大窗,使室内的住户能够最大限度地欣赏到室外的景观。室内的层高是2.7米,逐渐向室外延伸转变,直至外立面,其上洞口的高度已经达到3.5米/4.5米。这一举措使得阳光可以照进室内,而这在以前是不可能实现的。由此产生的几何复杂性定义并标记了建筑的形象,同时引入垂直元素的表达,从而与其周边环境中的树木建立联系,并使建筑自身可以在街道景观中脱颖而出。总而言之,建筑师通过对功能性空间、住户的生活和使用需求、以及建筑和其周边城市网络的关系的研究和分析,设计出了这个熠熠生辉的医疗护理中心。



▼立面图
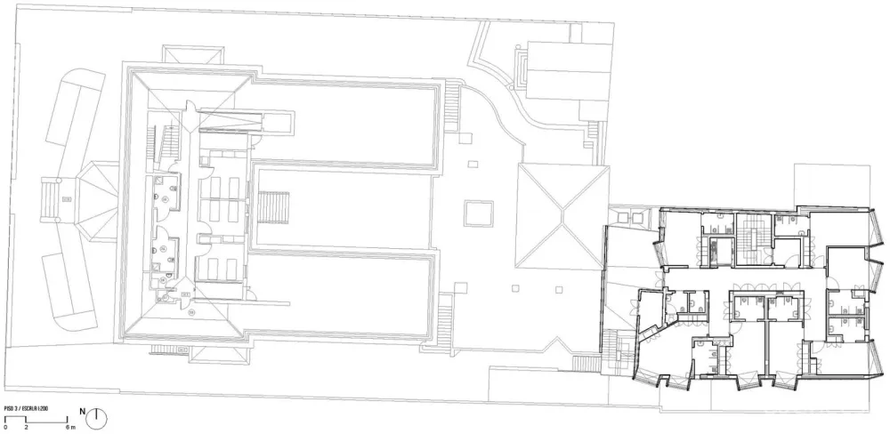
▼三层平面图
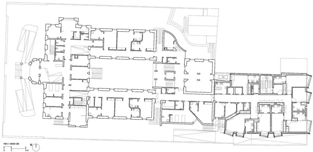
▼二层平面图
▼一层平面图
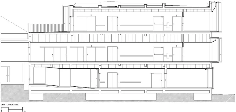
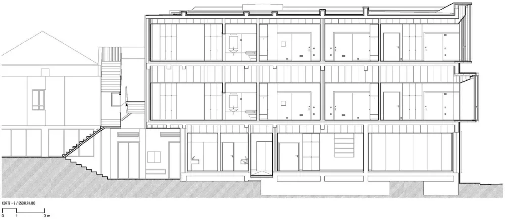
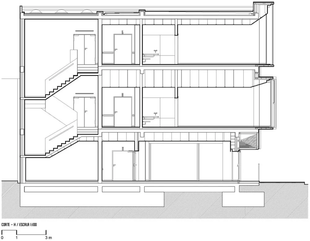
▼剖面图
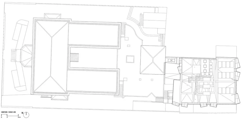
▼屋顶平面
设计公司:Nuno Piedade Alexandre
位置:葡萄牙
类型:建筑
材料:玻璃
标签:expansion Ponte de Sor 扩建


现在这个浮躁的世界,能细心整理一些东西发上来的越来越少了。要么就是敷衍的图片,要么就是枯燥的文字。之后就是AI生成的预制菜类的打包便捷快餐了。感谢楼主的分享,让我能在大智能无人化来临之前,看到同类发出的项目。有幸与您互动,缘分1