塞维利亚以阳光明媚的西班牙度假胜地而闻名,但它的中心建筑并不理想。尽管历史上它很漂亮,但多年的过度建设留下了一堆拥挤和腐朽的建筑,偶尔点缀着一些绿色植物和最近的翻修。
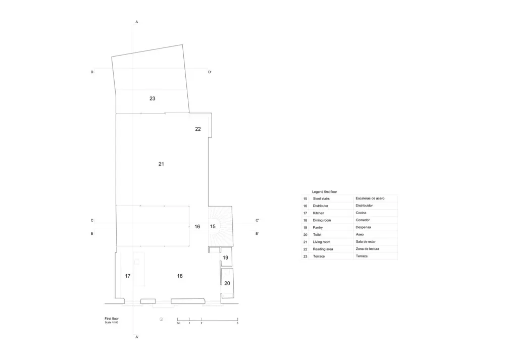
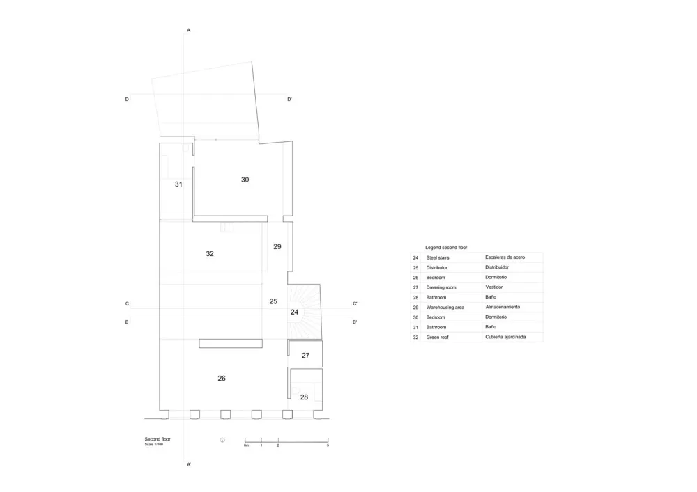
建筑师harald schonegger和Inmaculada González试图恢复这样一个历史街区作为自己和家里两个成年的孩子。为了创造一些非常需要的开放空间,他们围绕一个室内庭院建造了住宅,分为两个主要部分,居住安排横跨四层,允许独立的家庭生活。
甚至还有两个分开的厨房,这样父母和孩子就可以随心所欲地分开和走到一起——这是两全其美的。一座古老的钢螺旋楼梯蜿蜒穿过所有四层,它的雕塑形式突出在包裹它的全高玻璃立面后面。
双层的南北立面允许交叉通风和阳光,这在人口密集的历史中心是一种罕见的奢侈。庭院与一楼的客厅齐平,通高的玻璃门打开,创造出一种宽敞的室内外空间的感觉。
为了尽可能地回收以前在城市环境中失去的绿色植物,每一层都包括了树木和藤蔓,种植在庭院中,爬过庭院墙壁,并蔓延到屋顶花园。建筑师特别选择了落叶树,随着植物随着季节的变化,给房子带来了一种与环境融为一体的永恒感觉。
保留下来的木梁和一间厨房里的乡村百叶窗,是这座房子以前传统建筑风格的唯一内部暗示。故意铺上不平整的石材庭院与环绕它的光滑的不锈钢和玻璃外墙形成对比。面对街道,建筑师保持了传统的白色立面,以免与周围环境产生冲突。就好像当代绿洲是他们的小秘密。
设计公司:HARALD SCHÖNEGGER & INMACULADA GONZÁLEZ
项目位置:塞维利亚,西班牙
设计时间:2019年

