被视作珍宝的原建筑由 C.C. Sainsbury 于1957年建造,是战争服务计划( War Services program )中的一个特例,用于支援退伍老兵住房安置。业主一直在寻找喜爱的东西来为日渐扩展的家庭添砖加瓦。
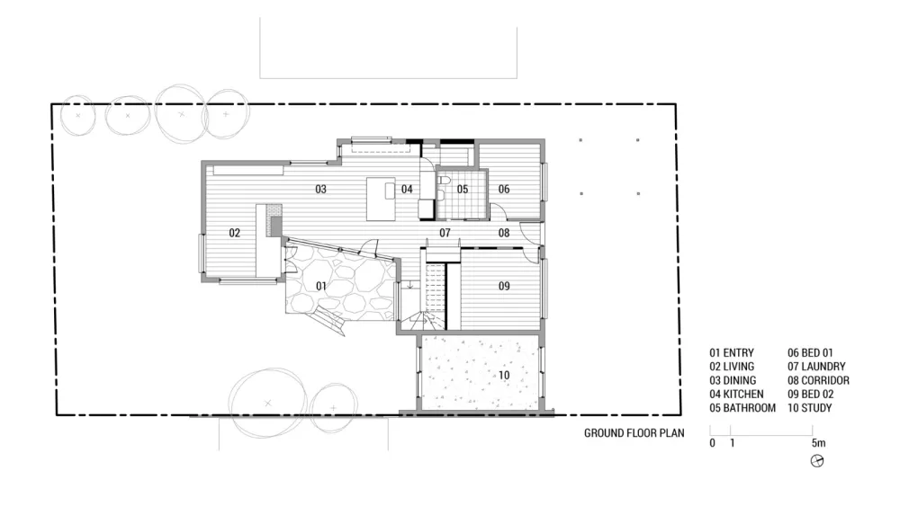
我们的任务书包括两间相同的儿童卧室,浴室,厨房,储藏室和洗衣间。业主要求设计可以更加开放以展示他们收藏的书籍以及艺术品。
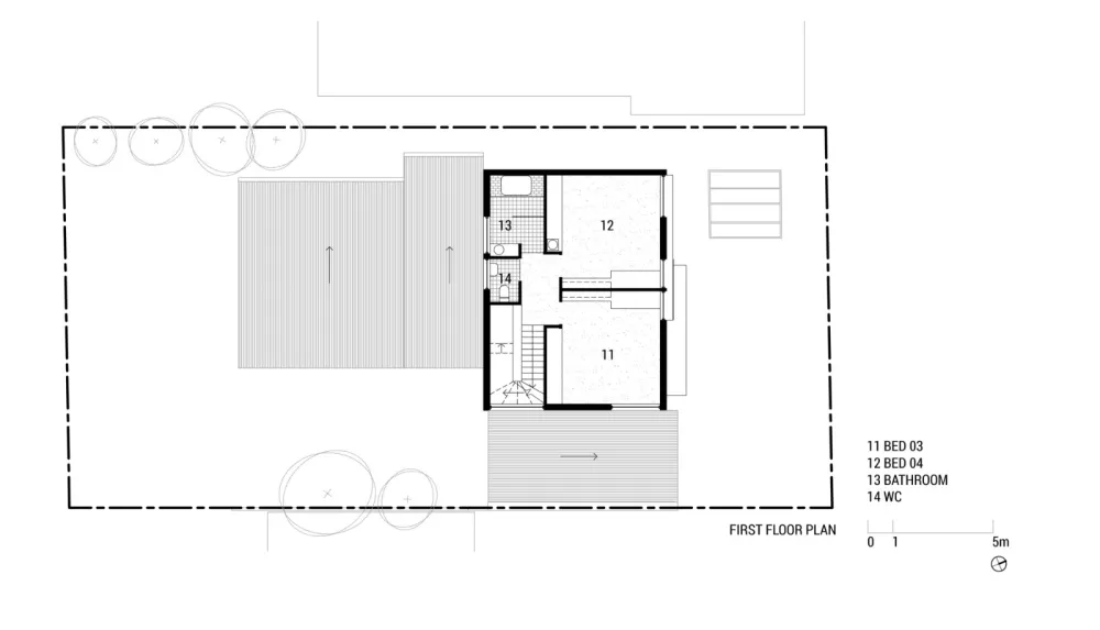
建筑的坡屋顶和深出檐对二层加建来说是个挑战。我们希望在使用现代技术创造统一连贯感的同时尽可能保留原建筑的感觉。
增建部分保持与原建筑坡顶相同的角度以形成和谐的构成,在材料上我们选用带槽耐候钢版来回应现有木质细节,并完成了原建筑砖色调的过渡。
随着建筑通往北庭院走廊的打通,房屋后部设计也渐渐明晰起来。楼梯位于临近入口的方向,使得面北房间被保留下来并成为中心。
建筑北面和西面的房子看起来气势高昂,东面则是一个修剪整洁的小庭院。通过窗户以及穿孔板可以获得很好的视野。位于加建二层东面最高处的窗子形成对一棵高大白桦树的框景,成为楼层间视野中心。
楼梯围绕一扇现有低窗盘旋而上,经过展示很多小雕塑和书籍的细木展柜。通过细木展柜的陈列我们轻松地掩盖了其后杂乱的洗衣房和储藏室。细木展柜由三合板组装( 有害物质低释放,由PEFC+FSC 联合认证)并包含了集成灯具以及集成或回收利用的把手。
增建部分的倾斜体块在儿童卧室的中央重叠产生了三角形窗户,引入了光照和天景。被动式太阳能设计通过屋檐和纱窗结合在一起,两间卧室都采用了开放式窗户以及吊扇来促进通风。
在原建筑充满活力的现代化特点基础上,我们希望增建部分可以继续保有这项传统并使它更为持久。
建筑师 Foomann Architects
地址 Ormond, 澳大利亚
类别 加建项目
建筑面积 175.0 平方米
项目年份 2018
摄影师 Willem-Dirk du Toit
厂家 ILVE 施工 Fido Projects
能源顾问 Urban Digestor
工程师 David Jones Structural Consultants
场地面积 460.0 平方米

