巴西工作室Pascali Semerdjian Arquitetos翻修了圣保罗一栋20世纪60年代建筑内的公寓,增加了一个半圆形的木制图书馆来容纳业主的大量藏书。
Pascali Semerdjian的改造保留了公寓原有的混凝土结构,与新的白色表面、木制家具和橱柜形成对比,并以黄铜为基调来定义新配置的空间。
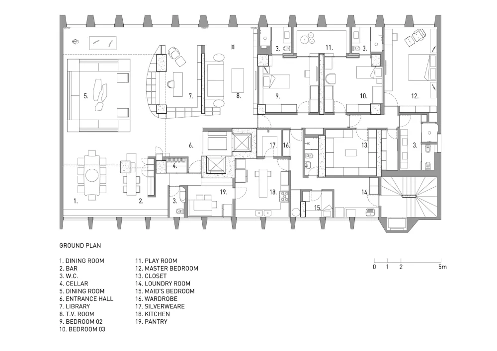
在这些新细节中,有一组从地板到天花板的木书架呈u型排列。它的主人可以在它的四周或里面储存书籍,那里有一个阅读角落。
“我们很快就明白,这个空间应该是一个重要的建筑体量,它应该是项目的精神,”Pascali Semerdjian说。
书架形成了公寓的中心特色,周围的区域包括一个下沉式客厅,以及一个开放式厨房和餐厅。一个悬挑的木质吧台悬挂在现有的结构柱上,面向餐厅。这为客人创造了一个“以一种更朴实无华的方式坐下来聚会”的地方。
“我们试图分离一些体量,如主要结构的酒吧和圆形图书馆,以加强它们作为建筑元素,并将它们作为公寓的间接光源,”Pascali Semerdjian说。
VLP公寓面积381.72平方米,有一个生产厨房,用于举办大型聚会,一个早餐角落,当居住者希望更随意地用餐,和一个居住的女佣套房。
还有三间卧室,可以通过走廊进入。两个是儿童房,旁边是一个共享的游戏区,主卧位于大厅的尽头。
Pascali Semerdjian还为住宅设计了所有的橱柜和嵌入式家具,包括餐具柜、沙发和边桌,以及电视架。大理石边桌,浴室的梳妆台,似乎是挂在黄铜杆上的,也在其他物品之列。
圣保罗最近翻修的其他公寓包括一座世纪中叶的住宅和一套24平方米的可移动墙壁公寓,前者是为前房主的孙子翻新的。
Pascali Smerdjian Arquitetos由Domingos Pascali和Sarkis Smerdjian于2010年创立。该公司的其他项目包括圣保罗的一所砖房,窗户色彩鲜艳。
设计公司:Pascali Semerdjian Arquitetos
设计团队:Domingos Pascali e Sarkis Semerdjian, Linda Matolli
承包商:LAER
摄影师:Ricardo Bassetti

