dodgehouse是位于葡萄牙里斯本的一个小型住宅,由Leopold Banchini 和 Daniel Zamarbide设计。该住宅位于历史悠久的城市中心里斯本,在热门的莫拉里亚社区。
十年前袭击葡萄牙的危机造成了令人难以置信的废弃空间密度。波尔图和里斯本这两个主要城市的废墟和封闭的建筑景观吸引了寻求南方浪漫主义的国际社会。从那时起,这两个城市采取实际行动来更新他们的历史中心,大量的这些废弃的房子已经被翻新,其质量是不可否认的,这可能是由于葡萄牙建筑师的敏感和培养的方法。
这种封闭的建筑景观以大量不透明的立面为特色,隐藏着内部,仿佛这些建筑的生命已经消失或处于冻结状态,等待着更好的时机再次打开窗户,让阳光进来。
里斯本的封闭房屋有双重意义:一方面是Irving Gill(欧文·吉尔)的建筑。他作为实践基础所建立的独特的现代性似乎完美地呼应了葡萄牙的背景(就像吉尔的建筑被理解为是从加利福尼亚的传教发展而来的一样)。
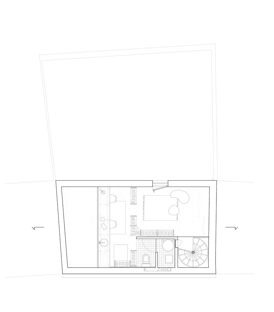
另一方面,作为封闭式住宅设计和建造时间的痕迹,它更倾向于闭上眼睛,保持不透明的立面,并押注于一个不太具有市场价值的特征,空间、空隙和拒绝土地利用效率的室内体量。在一个相当小的地块内(大约40平方米的底层,总共94平方米),封闭式建筑拥有一个强大的内部和一个沉思的空间,提出了一个多样性的室内外空间延伸到一个庭院。
三间卧室位于四层叠加的楼层上。低成本的建筑技术和简单的材料被特别选择来建造一个负担得起的住宅。当地采购的瓷砖和石头用于家具、墙壁和地板。外壳采用粗水泥砌块,配合定制的简单金属加工。
阶梯式的部分在小体量中产生了一个宽敞的全高居住空间,与所有楼层直接相连。朝向街道,保留了原有的历史立面;让人想起里斯本快速变化的市中心。显然,该项目也回应了功能需求的复杂性,将住宅变成了“机器居住者”,再次有意而强烈地利用现代主义的历史及其可居住的类型学。
设计公司:Daniel Zamarbide, Leopold Banchini
项目位置:Lisboa, Portugal
主创设计:Leopold Banchini and Daniel Zamarbide
建筑面积:94.0 m2
占地面积:40.0 m2
设计时间:2019
摄影师:Dylan Perrenoud

