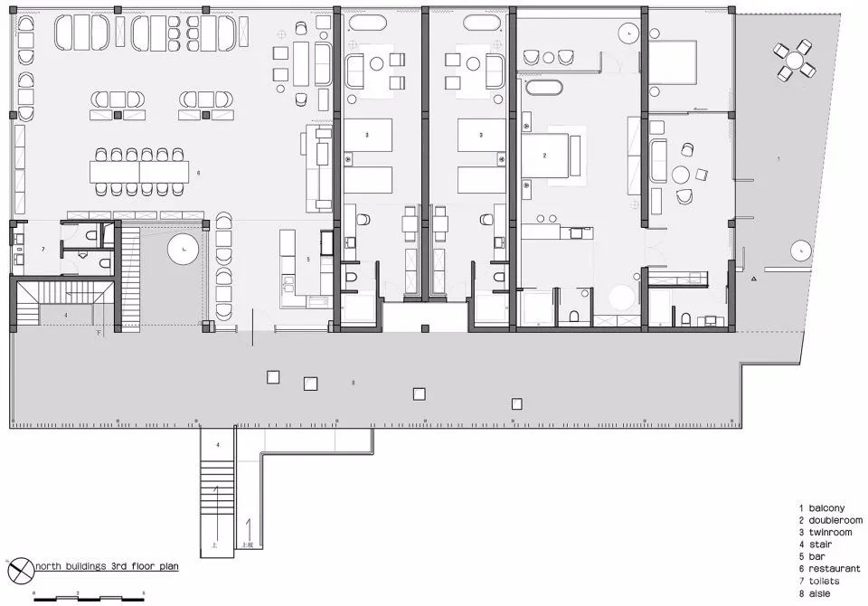
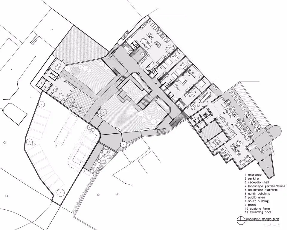
项目场地由两个独立建筑和硬化庭院构成,总占地面积约2500平方,按方向把两幢建筑称为南楼和北楼。庭院部分位于建筑的西南面,建筑东北向面海,两栋建筑之间有个间隙空间呈倒梯形,如果将整个场地分为三级高差阶梯,第一级阶梯是庭院场地区域,第二级阶梯为建筑落地面,第三级阶梯为井字格状的鲍鱼池。其实在场地中还有两个被隐藏的高差层级,凝固的建筑顶面和随着潮汐变化的海平面。第一次在还是全毛胚的建筑现场让人印象最深的是海洋的气息。当风穿过建筑吹在身上的时候,整个建筑仿佛都在随着海浪翻动游弋。
在设计之初,设计师首要解决的是怎么合理地将两个独立的建筑按功能需要融合成一个整体。由于整个项目场地与建筑的高差层级式特点,流线的规划将贯穿整个建筑立面的设计当中,包括进入建筑的双导向楼梯和坡道;三楼过道设计师通过黑色的竖向隔断与木色波浪墙面来抵消长过道带来的单调性;还可以途经庭院直接到达餐厅的直跑楼梯看到曲面墙的光影变化;三楼的天井设计既可以作为公共空间采光也是通往建筑顶面唯一通道。
在设计过程中建筑,室内与周边环境的融合与碰撞将是整个项目设计的核心,如何抓住让人能记得住的场所焦点,在室内空间中营造不同的看海方式和互动性,响应周边环境变化而发生的空间演变才是最有魅力的,每个房间都预留可以打开的窗户,海风才是跟大海最直接的接触,在空间细节设计上强化设计的方式与细部构成。
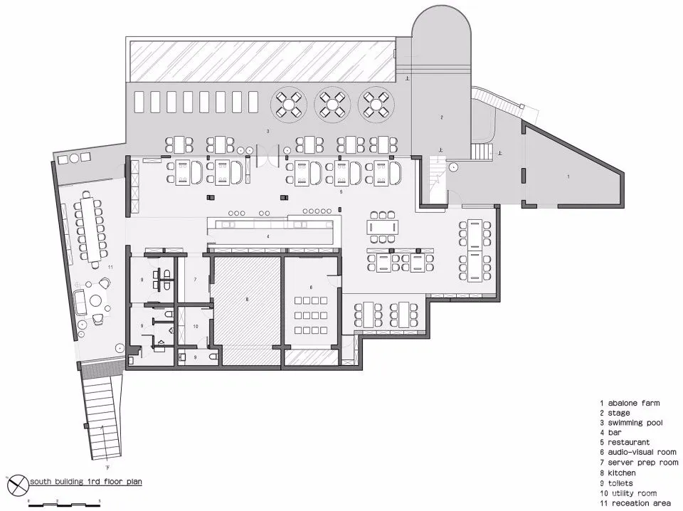
改造完后整个项目拥有20间独立客房,配有南楼一楼的海景餐厅与位于北楼三楼的咖啡厅两个室内公共活动区域,户外景观区域,无边泳池,屋顶露台等。
项目定位设计型酒店,整体建筑以自然主义风格为主,保留了建筑周边的植物,将南面的松树融合成为建筑的一部分,保留海面前端的鲍鱼池作为建筑的自然景观,兼顾实用的意义,既可以作为餐厅最新鲜的食材供应又是地方特有的一道风景,在建筑外立面与房间的处理上进行不同类型的划分,有直接推拉打开的大落地玻璃窗,有面朝大海的飘窗和浴缸,有面朝大海的露台吧台,还有面朝大海的餐厅和泳池,让看到的所有的部分既是室内的也是室外的。
在室内设计方面抛弃传统风格的装饰,以空间表达结合功能的构成形式作为新的设计语言,在房间功能平面布置上更趋开放型布局,在材质的选择上也更偏向自然材质的运用,带有化石浅米色石材,红樱桃木实木飘窗,实木地板,水磨石…等。
设计初衷其实更希望的是一种生活方式的融入,所以在空间中预留了很多收藏事物的内凹空间和层板空间的设计,建筑空间的完美呈现除了建造的过程以外更需要的是时光打磨。随着建造的开始到结束,望着远处的海面还是那片海面,空间本身的变化带给人的改变又如同海洋气息一般,以看不见的姿态影响着来过的人们。有时只是在想如果让空间本身直接变成生活或者精神层面的外延部分,再让这种思维的空间反作用于在空间里的其他人,这时候空间本身就成为一种媒介,用来沟通,交流,被解读,空间本身只有拥有这种特质,空间才可以重塑生活。软装设计上更多体现的定位配套的选择,设计师品牌在空间中随处可以见,可以看到Tom dixon\Stellar Works\HAY的PALISSADE系列\Muuto\normann等产品。
项目名称:朴宿·栖澜海居
室内设计:静谧设计研究室
项目主创:林世明、李霞
设计团队:林谟银、王培瑶、吴月欣
项目拍摄:稳摄影
项目地点:青岛崂山区
项目规模:约2500平方,建筑占地1200平方
完工时间:2018年2月
项目类型:精品酒店
主要材料:黄铜/红樱桃实木/德米大理石/水磨石/肌理涂料


棒棒的设计,谢谢分享